← Back to Cheshire West and Chester Council

Status

Awaiting decision Change of use
Received
Last month
New dwellings
0

Full Proposal

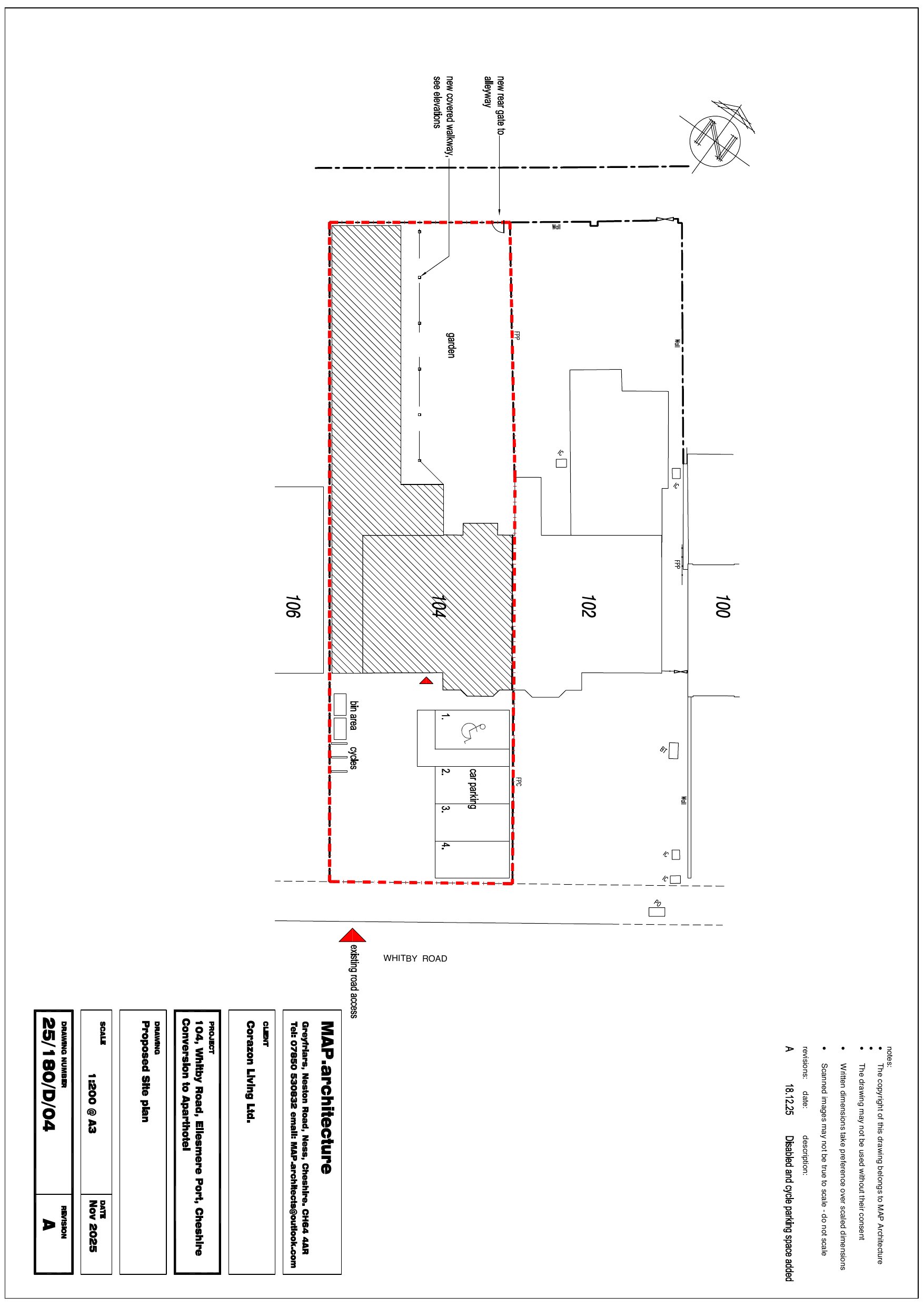
Change of use from Class E (Office use) to Class C1 (Aparthotel)

Documents

APPLICATION FORM - WITHOUT PERSONAL DATA
Application Form
Not archived · Council Link
EXISTING ELEVATIONS - FRONT AND SIDE
Drawing
Not archived · Council Link
EXISTING ELEVATIONS - REAR AND SIDE
Drawing
Not archived · Council Link
EXISTING FLOOR PLANS
Drawing
Not archived · Council Link
Drawing
Archived · Council Link
LOCATION PLAN
Drawing
Not archived · Council Link
PLANNING STATEMENT
Document
Not archived · Council Link
PROPOSED ELEVATIONS - FRONT AND SIDE
Drawing
Not archived · Council Link
PROPOSED ELEVATIONS - REAR AND SIDE
Drawing
Not archived · Council Link
Drawing
Archived · Council Link
Drawing
Archived · Council Link
TRANSPORT ASSESSMENT
Document
Not archived · Council Link
TRANSPORT LINK PLAN
Drawing
Not archived · Council Link

Take Action

Make your voice heard. Authorities need to hear from people who support new homes.

✉️ Write Email in Support View on Council Portal