← Back to Chesterfield Borough Council

Status

Awaiting decision New housing
Received
14 May 2025
New dwellings
10

Full Proposal

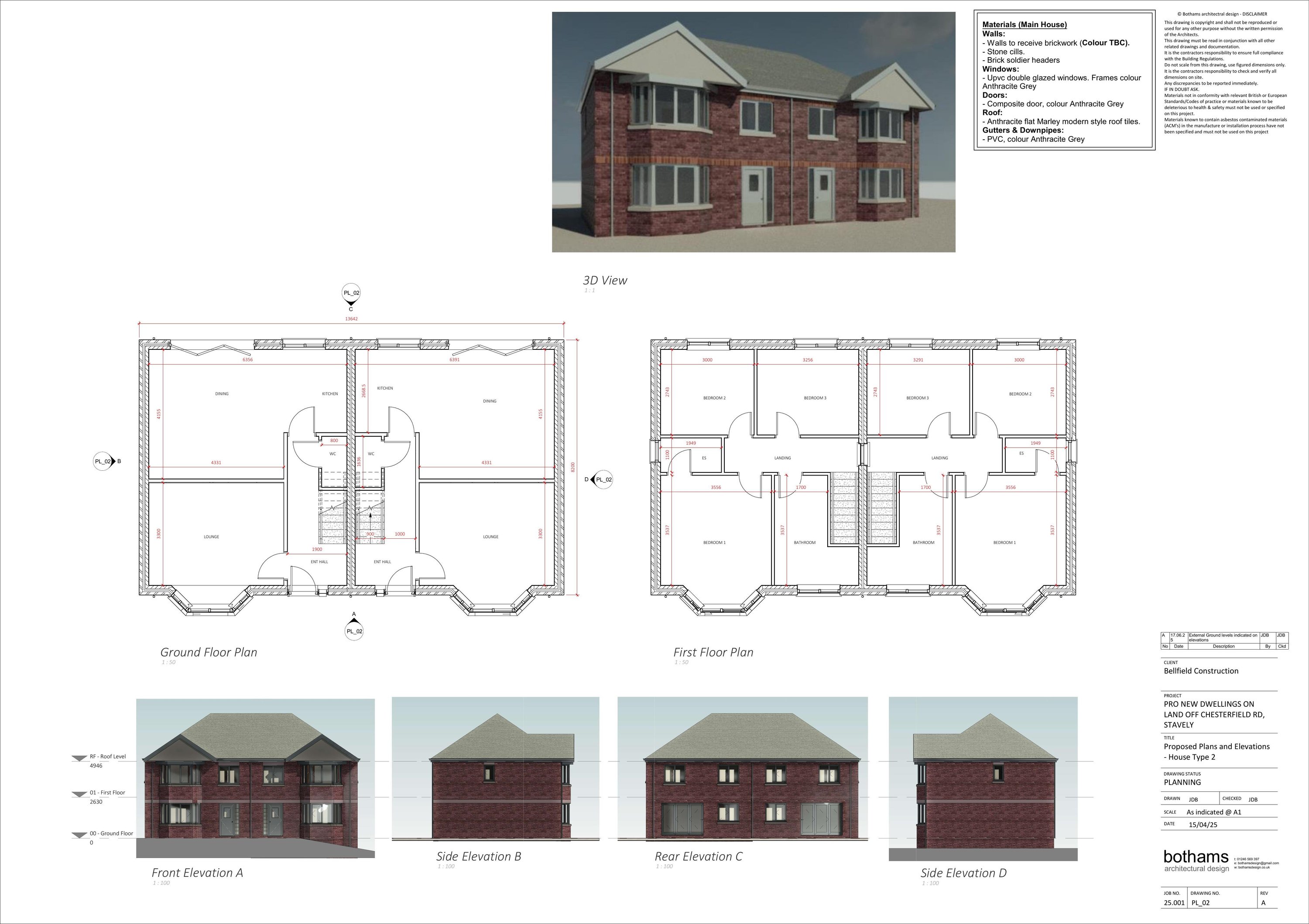
Erection of 2 detached dwellings, 2 pairs of semi-detached dwellings and 6 terraced dwellings

Documents

APPLICATIONFORMREDACTED
Application Form
Not archived · Council Link
BASELINE HABITAT PLAN
Drawing
Not archived · Council Link
BNG ASSESSMENT
Background Documents
Not archived · Council Link
BNG METRIC
Background Documents
Not archived · Council Link
CBC CLIMATE CHANGE OFFICER
Consultee Comment
Not archived · Council Link
CBC WASTE MANAGEMENT
Consultee Comment
Not archived · Council Link
COAL AUTHORITY COMMENT
Consultee Comment
Not archived · Council Link
DCC ARCHAEOLOGIST COMMENTS
Consultee Comment
Not archived · Council Link
DCC HIGHWAYS COMMENT
Consultee Comment
Not archived · Council Link
DCC POLICY COMMENT
Consultee Comment
Not archived · Council Link
DERBYSHIRE CONSTABULARY
Consultee Comment
Not archived · Council Link
DERBYSHIRE FIRE & RESCUE
Consultee Comment
Not archived · Council Link
DERBYSHIRE WILDLIFE TRUST COMMENTS
Consultee Comment
Not archived · Council Link
DESIGN AND ACCESS STATEMENT
Background Documents
Not archived · Council Link
DESIGN SERVICES DRAINAGE
Consultee Comment
Not archived · Council Link
DESIGN SERVICES FLOOD RISK & SURFACE WATER MANAGEMENT GUIDANCE
Consultee Comment
Not archived · Council Link
ECONOMIC DEVELOPMENT UNIT COMMENT
Consultee Comment
Not archived · Council Link
ENVIRONMENT AGENCY COMMENTS
Consultee Comment
Not archived · Council Link
EXISTING SITE TOPO PLAN
Drawing
Not archived · Council Link
MRS TRACEY QUEENAN
Public Comment
Not archived · Council Link
POST DEVELOPMENT HABITAT PLAN
Drawing
Not archived · Council Link
Drawing
Archived · Council Link
PROPOSED SITE SECTIONS AND STREET SCENE ELEVATIONS
Drawing
Not archived · Council Link
PUBLIC COMMENT
Public Comment
Not archived · Council Link
RESIDENT COMMENT
Public Comment
Not archived · Council Link
RESIDENT COMMENT
Public Comment
Not archived · Council Link
RESIDENT COMMENT
Public Comment
Not archived · Council Link
STRATEGIC PLANNING COMMENTS
Consultee Comment
Not archived · Council Link
URBAN DESIGN OFFICER COMMENTS
Consultee Comment
Not archived · Council Link
YORKSHIRE WATER COMMENT
Consultee Comment
Not archived · Council Link

Take Action

Make your voice heard. Authorities need to hear from people who support new homes.

✉️ Write Email in Support View on Council Portal