← Back to Chesterfield Borough Council

Status

Awaiting decision Change of use
Received
19 Dec 2025
New dwellings
0

Full Proposal

Change of use from Office (Use Class E) to School (Use Class F1), external alterations and installation of railing/ramping

Documents

APPLICATIONFORMREDACTED
Application Form
Not archived · Council Link
C41 REPOINTING
Background Documents
Not archived · Council Link
C51A REPAIRING AND RENOVATING - TIMBER
Background Documents
Not archived · Council Link
C51B REPAIRING AND RENOVATING - TIMBER
Background Documents
Not archived · Council Link
C52 FUNGUS AND BEETLE ERADICATION
Background Documents
Not archived · Council Link
COMMUNITY SAFETY COMMENTS
Consultee Comment
Not archived · Council Link
DESIGN SERVICES DRAINAGE
Consultee Comment
Not archived · Council Link
DOOR AND WINDOW SCHEDULE
Drawing
Not archived · Council Link
EXISTING BASEMENT AND GROUND FLOOR PLANS
Drawing
Not archived · Council Link
EXISTING ELEVATIONS
Drawing
Not archived · Council Link
EXISTING FIRST FLOOR PLANS
Drawing
Not archived · Council Link
Drawing
Archived · Council Link
HERITAGE STATEMENT & HERITAGE IMPACT ASSESSMENT
Background Documents
Not archived · Council Link
HIGHWAYS COMMENT
Consultee Comment
Not archived · Council Link
L10 TIMBER SASH AND CASEMENT WINDOW REPAIRS
Background Documents
Not archived · Council Link
L40 GENERAL GLAZING
Background Documents
Not archived · Council Link
M20 PLASTERED RENDERED COATINGS
Background Documents
Not archived · Council Link
M60 PAINTING AND CLEAR FINISHING
Background Documents
Not archived · Council Link
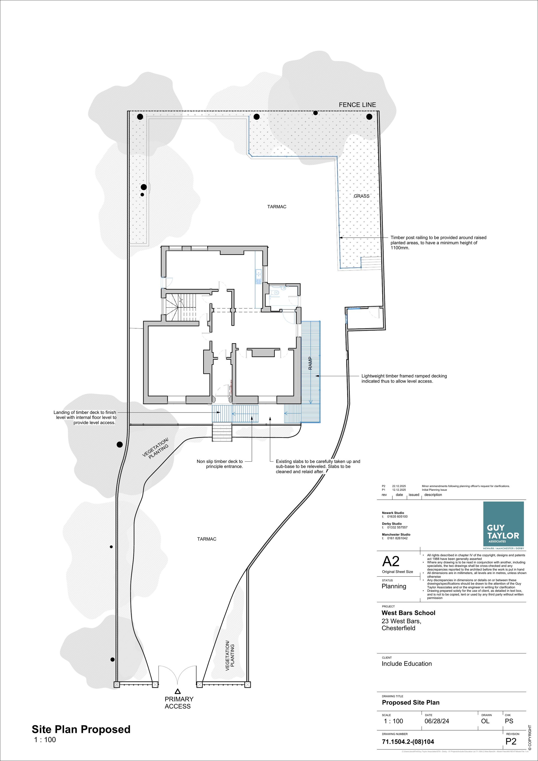
PROPOSED BASEMENT AND GROUND FLOOR PLANS
Drawing
Not archived · Council Link
PROPOSED ELEVATIONS
Drawing
Not archived · Council Link
PROPOSED FIRST FLOOR PLAN
Drawing
Not archived · Council Link
Drawing
Archived · Council Link
SCHEDULE OF INTERNAL WORKS
Background Documents
Not archived · Council Link
Drawing
Archived · Council Link
STRATEGIC PLANNING COMMENTS
Consultee Comment
Not archived · Council Link
YORKSHIRE WATER COMMENT
Consultee Comment
Not archived · Council Link
Z21 MORTARS
Background Documents
Not archived · Council Link

Take Action

Make your voice heard. Authorities need to hear from people who support new homes.

✉️ Write Email in Support View on Council Portal