← Back to Chichester District Council

Status

Application Permitted with S106(PER106) New housing
Received
12 Sep 2024
New dwellings
10

Full Proposal

Development of 10 no. dwellings including landscaping, parking and access.

Documents

ADDITIONAL DOCUMENT - 20.12.24 PROPOSED ACCESS AND FOOTWAY ARRANGEMENTS
Application Documents
Not archived · Council Link
ADDITIONAL DOCUMENTS 20.12.24- CONSERVATION OFFICER RESPONSE
Application Documents
Not archived · Council Link
ADDITIONAL DOCUMENTS 20.12.24- TECHNICAL NOTE 3: RESOLVING LLFA OBJECTION
Application Documents
Not archived · Council Link
ADDITIONAL PLAN 30/7/25 - LEGAL PLAN 1
Plan - Under Consideration
Not archived · Council Link
AFFORDABLE HOUSING VIABILITY STATEMENT
Application Documents
Not archived · Council Link
AGENT REPLY TO CDC ECONOMIC TEAM QUERIES
Correspondence
Not archived · Council Link
AGENT SIGNED AGREEMENT TO EXTENSION OF TIME UNTIL 08.05.2025
Application Documents
Not archived · Council Link
APPENDIX 1 - QS COST REPORT
Application Documents
Not archived · Council Link
APPENDIX 2 - DSP VERSION OF APPLICANT APPRAISAL
Application Documents
Not archived · Council Link
APPLICATION FORM
Application Form
Not archived · Council Link
ARBORICULTURAL IMPACT ASSESSMENT
Superseded Document
Not archived · Council Link
ARBORICULTURAL IMPACT ASSESSMENT
Application Documents
Not archived · Council Link
BAT SURVEY REPORT
Application Documents
Not archived · Council Link
BIODIVERSITY METRIC CALCULATION TOOL
Superseded Document
Not archived · Council Link
BIODIVERSITY NET GAIN ASSESSMENT
Application Documents
Not archived · Council Link
BIODIVERSITY NET GAIN ASSESSMENT
Superseded Document
Not archived · Council Link
BNG COVER NOTE FROM TMA
Application Documents
Not archived · Council Link
BNG SPREADSHEET
Application Documents
Not archived · Council Link
CDC - HOUSING ENABLING OFFICER
Consultee Comment
Not archived · Council Link
CDC - LANDSCAPE OFFICER
Consultee Comment
Not archived · Council Link
CDC - LANDSCAPE OFFICER
Consultee Comment
Not archived · Council Link
CDC - PLANNING POLICY
Consultee Comment
Not archived · Council Link
CDC CONSERVATION & DESIGN
Consultee Comment
Not archived · Council Link
CDC CONSERVATION & DESIGN
Consultee Comment
Not archived · Council Link
CDC CONSERVATION AND DESIGN
Consultee Comment
Not archived · Council Link
CDC CONSERVATION AND DESIGN
Consultee Comment
Not archived · Council Link
CDC DESIGN AND CONSERVATION
Consultee Comment
Not archived · Council Link
CDC ECONOMIC DEVELOPMENT SERVICE 19.11.2024
Consultee Comment
Not archived · Council Link
CDC ENVIRONMENTAL HEALTH 21.10.2024
Consultee Comment
Not archived · Council Link
CDC ENVIRONMENTAL STRATEGY
Consultee Comment
Not archived · Council Link
CDC ENVIRONMENTAL STRATEGY
Consultee Comment
Not archived · Council Link
CDC ENVIRONMENTAL STRATEGY
Consultee Comment
Not archived · Council Link
CDC ENVIRONMENTAL STRATEGY UNIT
Consultee Comment
Not archived · Council Link
CDC ENVIRONMENTAL STRATEGY UNIT
Consultee Comment
Not archived · Council Link
CDC HOUSING DELIVERY TEAM
Consultee Comment
Not archived · Council Link
CDC HOUSING DELIVERY TEAM
Consultee Comment
Not archived · Council Link
CDC SENIOR ENVIRONMENTAL HEALTH OFFICER 09.06.25
Consultee Comment
Not archived · Council Link
CDC TREE OFFICER
Consultee Comment
Not archived · Council Link
CDC TREE OFFICER 11/4/25
Consultee Comment
Not archived · Council Link
CDC TREE OFFICER 13.10.2025
Consultee Comment
Not archived · Council Link
CDC WASTE SERVICES GUIDANCE
Consultee Comment
Not archived · Council Link
CDC WASTER SERVICES GUIDANCE
Consultee Comment
Not archived · Council Link
COAST PROTECTION AND LAND DRAINGE ENGINEER
Consultee Comment
Not archived · Council Link
COMMITTEE REPORT - 08.10.2025
Committee Report
Not archived · Council Link
COMMITTEE REPORT - APPENDIX - 08.10.2025
Committee Report
Not archived · Council Link
COMMITTEE REPORT - APPENDIX - 08.10.2025
Committee Report
Not archived · Council Link
CORREPONDENCE FROM AGENT 21.03.25
Correspondence
Not archived · Council Link
Correspondence
Correspondence
Not archived · Council Link
Correspondence
Correspondence
Not archived · Council Link
CORRESPONDENCE FROM PHIL BELL- MOTION 19.12.24
Correspondence
Not archived · Council Link
COVERING LETTER 19/5/25
Application Documents
Not archived · Council Link
Decision Notice
Decision Notice
Not archived · Council Link
DESIGN AND ACCESS STATEMENT
Superseded Document
Not archived · Council Link
DESIGN AND ACCESS STATEMENT (LANDSCAPE CHAPTER)
Application Documents
Not archived · Council Link
DRAFT S106
Legal Agreement
Not archived · Council Link
EMAIL 10.01.25 FROM AGENT RE THE 5 NO APPLE TREES (T27-T31)
Correspondence
Not archived · Council Link
EMAIL CORRESPONDENCE FROM S ALDERSLEY
Correspondence
Not archived · Council Link
EMAIL CORRESPONDENCE FROM S ALDERSLEY APPENDIX 1
Correspondence
Not archived · Council Link
EMAIL CORRESPONDENCE FROM S ALDERSLEY APPENDIX 2
Correspondence
Not archived · Council Link
EMAIL CORRESPONDENCE FROM S ALDERSLEY APPENDIX 3
Correspondence
Not archived · Council Link
EMAIL FROM AGENT - 30.09.24
Correspondence
Not archived · Council Link
EMAIL FROM AGENT 17/1/25 - RESPONSE
Correspondence
Not archived · Council Link
EMAIL FROM GREENPLAN - 25.09.24
Correspondence
Not archived · Council Link
EMAIL FROM IFORD ESTATE RE BNG CREDITS - 26.09.24
Correspondence
Not archived · Council Link
ENERGY STATEMENT & REGULATION 25A LOW OR ZERO CARBON (LZC) TECHNOLOGY FEASIBILITY STUDY
Superseded Document
Not archived · Council Link
ENVIRONMENT AGENCY
Consultee Comment
Not archived · Council Link
EXISTING BUILDINGS SHEET 1
Plan - Under Consideration
Not archived · Council Link
EXISTING BUILDINGS SHEET 2
Plan - Under Consideration
Not archived · Council Link
EXISTING BUILDINGS SHEET 3
Plan - Under Consideration
Not archived · Council Link
EXISTING BUILDINGS SHEET 4
Plan - Under Consideration
Not archived · Council Link
EXTENSION OF TIME AGREED 20/12/24
Correspondence
Not archived · Council Link
EXTENSION OF TIME AGREED 23/4/25
Correspondence
Not archived · Council Link
EXTENSION OF TIME AGREEMENT 01.07.25
Correspondence
Not archived · Council Link
EXTENSION OF TIME AGREEMENT 01/12/2025
Correspondence
Not archived · Council Link
EXTENSION OF TIME AGREEMENT 02.09.25
Correspondence
Not archived · Council Link
EXTENSION OF TIME AGREEMENT 24.10.25
Correspondence
Not archived · Council Link
EXTENSION OF TIME AGREEMENT 30.07.25
Correspondence
Not archived · Council Link
EXTENSION OF TIME FORM 12/10/25
Correspondence
Not archived · Council Link
EXTENSION OF TIME FORM 12/9/25
Correspondence
Not archived · Council Link
FLOOD RISK ASSESSMENT AND SURFACE WATER DRAINAGE STRATEGY
Superseded Document
Not archived · Council Link
FOUL SEWERAGE ASSESSMENT
Superseded Document
Not archived · Council Link
GREAT CRESTED NEWT EDNA SURVEY REPORT
Application Documents
Not archived · Council Link
GREENPLAN BNG ALLOCATION AGREEMENT SIGNED
Application Documents
Not archived · Council Link
HABITAT REGULATION ASSESSMENT (HRA) SCREENING MATRIX AND APPROPRIATE ASSESSMENT STATEMENT
Application Documents
Not archived · Council Link
HABITATS REGULATION ASSESSMENT
Application Documents
Not archived · Council Link
LANDSCAPE AND VISUAL APPRAISAL
Superseded Document
Not archived · Council Link
LANDSCAPE AND VISUAL APPRAISAL - APPENDIX A
Superseded Document
Not archived · Council Link
LANDSCAPE AND VISUAL APPRAISAL - APPENDIX B
Superseded Document
Not archived · Council Link
LANDSCAPE AND VISUAL APPRAISAL - APPENDIX C
Superseded Document
Not archived · Council Link
LANDSCAPE PLAN
Plan - Superseded
Not archived · Council Link
LETTER FROM AGENT 12/9/25
Correspondence
Not archived · Council Link
LETTER FROM APPLICANT TO MEMBERS
Correspondence
Not archived · Council Link
LOCATION PLAN
Plan - Decided
Not archived · Council Link
NATURAL ENGLAND
Consultee Comment
Not archived · Council Link
NOISE IMPACT ASSESSMENT
Application Documents
Not archived · Council Link
PARISHES WILDLIFE GROUP
Objection Comment
Not archived · Council Link
PLANNING STATEMENT
Application Documents
Not archived · Council Link
PLOT 1 - FLOOR PLANS AND ELEVATIONS
Plan - Superseded
Not archived · Council Link
PLOT 10 - FLOOR PLANS AND ELEVATIONS
Plan - Superseded
Not archived · Council Link
PLOT 2 - FLOOR PLANS AND ELEVATIONS
Plan - Superseded
Not archived · Council Link
PLOT 7 - FLOOR PLANS AND ELEVATIONS
Plan - Superseded
Not archived · Council Link
PLOT 8 - FLOOR PLANS AND ELEVATIONS
Plan - Superseded
Not archived · Council Link
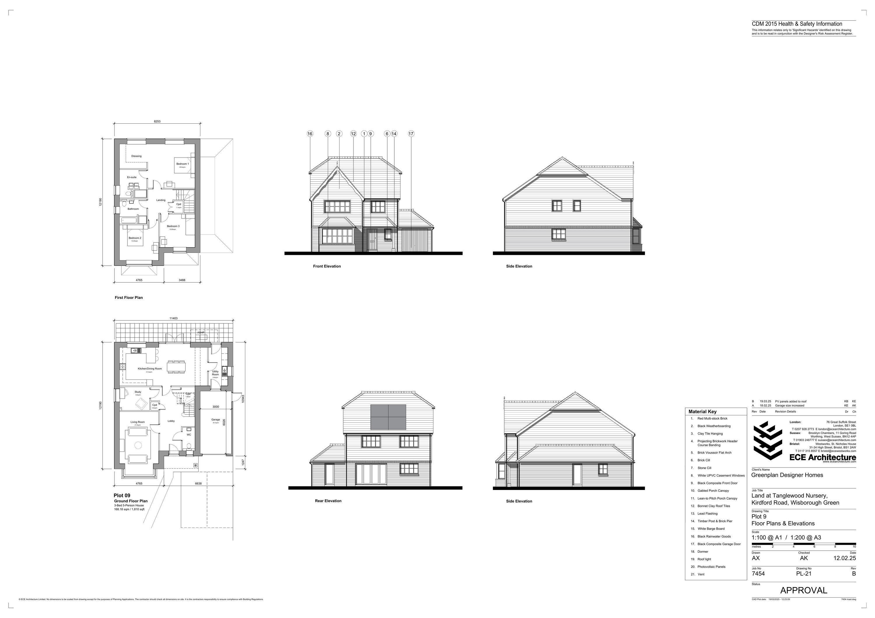
PLOT 9 - FLOOR PLANS AND ELEVATIONS
Plan - Superseded
Not archived · Council Link
PLOTS 3 & 4 - FLOOR PLANS AND ELEVATIONS
Plan - Superseded
Not archived · Council Link
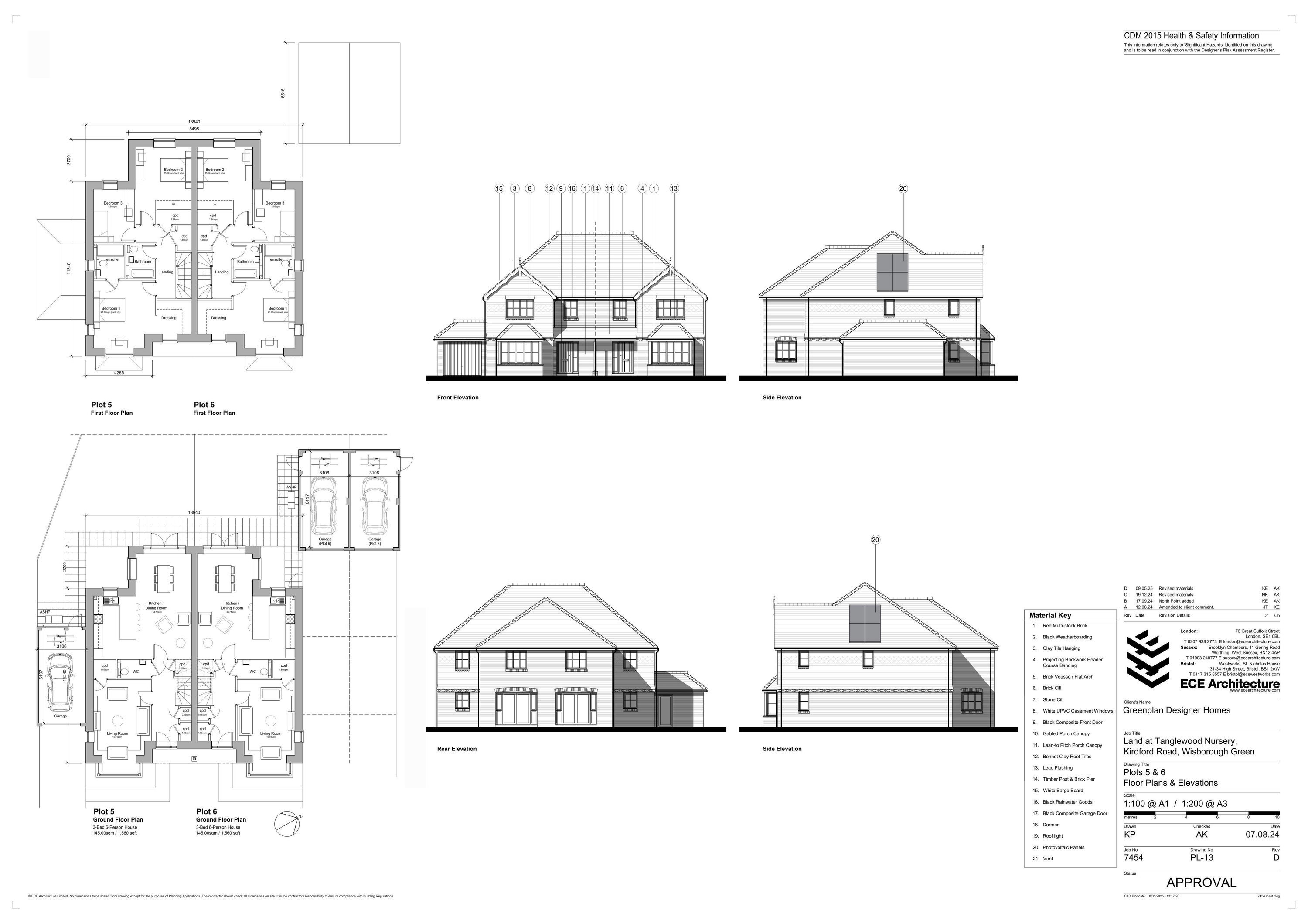
PLOTS 5 & 6 - FLOOR PLANS AND ELEVATIONS
Plan - Superseded
Not archived · Council Link
PRELIMINARY ECOLOGICAL APPRAISAL
Application Documents
Not archived · Council Link
PROPOSED FOOTWAY IMPROVEMENTS - OPTION 4
Plan - Decided
Not archived · Council Link
PROPOSED FOOTWAY IMPROVEMENTS OPTION 1
Plan - Decided
Not archived · Council Link
PROPOSED OUTBUILDING PLANS AND ELEVATIONS
Plan - Superseded
Not archived · Council Link
PROPOSED STREET ELEVATIONS
Plan - Superseded
Not archived · Council Link
PUBLIC COMMENT
Objection Comment
Not archived · Council Link
PUBLIC COMMENT
Third Party Other
Not archived · Council Link
PUBLIC COMMENT
Objection Comment
Not archived · Council Link
PUBLIC COMMENT
Third Party Other
Not archived · Council Link
PUBLIC COMMENT
Objection Comment
Not archived · Council Link
RESPONSE FROM MOTION 11.12.24
Application Documents
Not archived · Council Link
REVIEW OF APPLICANT SUBMITTED VIABILITY POSITION
Application Documents
Not archived · Council Link
S106 AGREEMENT 16/12/2025
Legal Agreement
Not archived · Council Link
SIGNED EXTENSIONOF TIME AGREEMENT UNTIL 01.12.2025
Correspondence
Not archived · Council Link
SITE NOTICE PHOTOGRAPHS
Photograph
Not archived · Council Link
SOUTHERN WATER
Consultee Comment
Not archived · Council Link
SOUTHERN WATER
Consultee Comment
Not archived · Council Link
SOUTHERN WATER
Consultee Comment
Not archived · Council Link
STAGE 1 ROAD SAFETY AUDIT - PROPOSED ACCESS AND FOOTWAY ARRANGEMENTS
Application Documents
Not archived · Council Link
STATEMENT OF COMMUNITY INVOLVEMENT
Application Documents
Not archived · Council Link
STATUTORY BIODIVERSITY METRIC CALCULATION
Application Documents
Not archived · Council Link
SUBSTITUTE APPLICATION COVERING LETTER
Application Documents
Not archived · Council Link
SUBSTITUTE ARBORICULTURAL IMPACT ASSESSMENT
Superseded Document
Not archived · Council Link
SUBSTITUTE BIODIVERSITY NET GAIN ASSESSMENT
Superseded Document
Not archived · Council Link
SUBSTITUTE DESIGN AND ACCESS STATEMENT
Application Documents
Not archived · Council Link
SUBSTITUTE ENERGY STATEMENT & REGULATION 25A LOW OR ZERO CARBON (LZC) TECHNOLOGY FEASIBILITY STUDY
Application Documents
Not archived · Council Link
SUBSTITUTE FLOOD RISK ASSESSMENT AND SURFACE WATER DRAINAGE STRATEGY REPORT
Application Documents
Not archived · Council Link
SUBSTITUTE FOUL SEWERAGE ASSESSMENT
Application Documents
Not archived · Council Link
SUBSTITUTE INDICATIVE SECTION - 10M BUFFER
Plan - Superseded
Not archived · Council Link
SUBSTITUTE LANDSCAPE AMENDMENT ECOLOGY NOTE
Application Documents
Not archived · Council Link
SUBSTITUTE LANDSCAPE AND VISUAL APPRAISAL
Application Documents
Not archived · Council Link
SUBSTITUTE LANDSCAPE AND VISUAL APPRAISAL - APPENDIX A - METHODOLOGY
Application Documents
Not archived · Council Link
SUBSTITUTE LANDSCAPE AND VISUAL APPRAISAL - APPENDIX B - MAPS
Application Documents
Not archived · Council Link
SUBSTITUTE LANDSCAPE AND VISUAL APPRAISAL - APPENDIX C - VIEWPOINT PHOTOGRAPHS
Application Documents
Not archived · Council Link
SUBSTITUTE LANDSCAPE PLAN
Plan - Decided
Not archived · Council Link
SUBSTITUTE NET DEVELOPABLE AREA PLAN
Plan - Under Consideration
Not archived · Council Link
SUBSTITUTE PLAN 19/5/25 INDICATIVE SECTION
Plan - Decided
Not archived · Council Link
SUBSTITUTE PLAN 19/5/25 PROPOSED FOOTWAY IMPROVEMENTS OPTION 1
Plan - Under Consideration
Not archived · Council Link
SUBSTITUTE PLAN 19/5/25 PROPOSED FOOTWAY IMPROVEMENTS OPTION 2
Plan - Superseded
Not archived · Council Link
SUBSTITUTE PLAN 19/5/25 PROPOSED FOOTWAY IMPROVEMENTS OPTION 2
Plan - Superseded
Not archived · Council Link
SUBSTITUTE PLAN 19/5/25 PROPOSED FOOTWAY IMPROVEMENTS OPTION 3
Plan - Superseded
Not archived · Council Link
SUBSTITUTE PLAN 19/5/25 PROPOSED FOOTWAY IMPROVEMENTS OPTION 3
Plan - Superseded
Not archived · Council Link
SUBSTITUTE PLAN 19/5/25 PROPOSED OUTBUILDING PLANS & ELEVATION
Plan - Decided
Not archived · Council Link
SUBSTITUTE PLAN 19/5/25 PROPOSED STREET ELEVATIONS
Plan - Decided
Not archived · Council Link
SUBSTITUTE PLAN 19/5/25 SWEPT PATH ANALYSIS REFUSE VEHICLE
Plan - Under Consideration
Not archived · Council Link
SUBSTITUTE PLAN 20.12.24- PROPOSED STREET SCENE ELEVATIONS
Plan - Superseded
Not archived · Council Link
SUBSTITUTE PLAN 21.03.25 NDICATIVE SECTION - 10M BUFFER
Plan - Superseded
Not archived · Council Link
SUBSTITUTE PLAN 21.03.25 PROPOSED OUTBUILDING PLANS AND ELEVATION
Plan - Superseded
Not archived · Council Link
SUBSTITUTE PLAN 21.03.25 PROPOSED STREET ELEVATIONS
Plan - Superseded
Not archived · Council Link
SUBSTITUTE PROPOSED PLOT 10 FLOOR PLANS AND ELEVATIONS
Plan - Superseded
Not archived · Council Link
SUBSTITUTE PROPOSED PLOT 7 & 8 FLOOR PLANS AND ELEVATIONS
Plan - Superseded
Not archived · Council Link
SUBSTITUTE PROPOSED PLOT 9 FLOOR PLANS AND ELEVATIONS
Plan - Superseded
Not archived · Council Link
SUBSTITUTE PROPOSED SITE PLAN
Plan - Superseded
Not archived · Council Link
SUBSTITUTE PROPOSED STREET SCENE ELEVATIONS
Plan - Superseded
Not archived · Council Link
SUBSTITUTE STATUTORY BIODIVERSITY METRIC CALCULATION TOOL
Superseded Document
Not archived · Council Link
SUBSTITUTE TRANSPORT STATEMENT
Application Documents
Not archived · Council Link
SUSSEX POLICE DESIGNING OUT CRIME
Consultee Comment
Not archived · Council Link
TRANSPORT STATEMENT
Superseded Document
Not archived · Council Link
WATER NEUTRALITY PROJECT MANAGER
Consultee Comment
Not archived · Council Link
WATER NEUTRALITY STATEMENT
Application Documents
Not archived · Council Link
WISBOROUGH GREEN PARISH COUNCIL
Parish Comments
Not archived · Council Link
WISBOROUGH GREEN PARISH COUNCIL
Parish Comments
Not archived · Council Link
WISBOROUGH GREEN PARISH COUNCIL
Parish Comments
Not archived · Council Link
WISBOROUGH GREEN PARISH COUNCIL
Parish Comments
Not archived · Council Link
WISBOROUGH GREEN PARISH COUNCIL 24.09.2025
Parish Comments
Not archived · Council Link
WSCC & FIRE AND RESCUE SERVICE
Consultee Comment
Not archived · Council Link
WSCC ? HIGHWAYS AUTHORITY
Consultee Comment
Not archived · Council Link
WSCC EDUCATION
Consultee Comment
Not archived · Council Link
WSCC HIGHWAYS
Consultee Comment
Not archived · Council Link
WSCC HIGHWAYS
Consultee Comment
Not archived · Council Link
WSCC HIGHWAYS
Consultee Comment
Not archived · Council Link
WSCC HIGHWAYS
Consultee Comment
Not archived · Council Link
WSCC HIGHWAYS
Consultee Comment
Not archived · Council Link
WSCC LEAD LOCAL FLOOD AUTHORITY
Consultee Comment
Not archived · Council Link
WSCC LEAD LOCAL FLOOD AUTHORITY
Consultee Comment
Not archived · Council Link
WSCC LEAD LOCAL FLOOD AUTHORITY
Consultee Comment
Not archived · Council Link
WSCC RE ROAD SAFETY 26.11.24
Consultee Comment
Not archived · Council Link

Take Action

Make your voice heard. Authorities need to hear from people who support new homes.

✉️ Write Email in Support View on Council Portal