← Back to Chichester District Council

Status

Permit Demolition
Received
15 Oct 2024
New dwellings
0

Full Proposal

Demolition of existing dwelling and erection of replacement dwelling, landscaping, parking and associated works.

Documents

APPLICATION FORM
Application Form
Not archived · Council Link
BAT SURVEY REPORT
Application Documents
Not archived · Council Link
CDC COAST PROTECTION AND LAND DRAINAGE OFFICER
Consultee Comment
Not archived · Council Link
CDC ENVIRONMENTAL HEALTH
Consultee Comment
Not archived · Council Link
CDC ENVIRONMENTAL STRATEGY
Consultee Comment
Not archived · Council Link
COAST PROTECTION AND LAND DRAINAGE ENGINEER
Consultee Comment
Not archived · Council Link
Correspondence
Correspondence
Not archived · Council Link
CORRESPONDENCE FROM AGENT
Correspondence
Not archived · Council Link
Decision Notice
Decision Notice
Not archived · Council Link
Delegated Report
Delegated Report
Not archived · Council Link
EAST WITTERING AND BRACKLESHAM PARISH COUNCIL
Parish Comments
Not archived · Council Link
ENVIRONMENT AGENCY
Consultee Comment
Not archived · Council Link
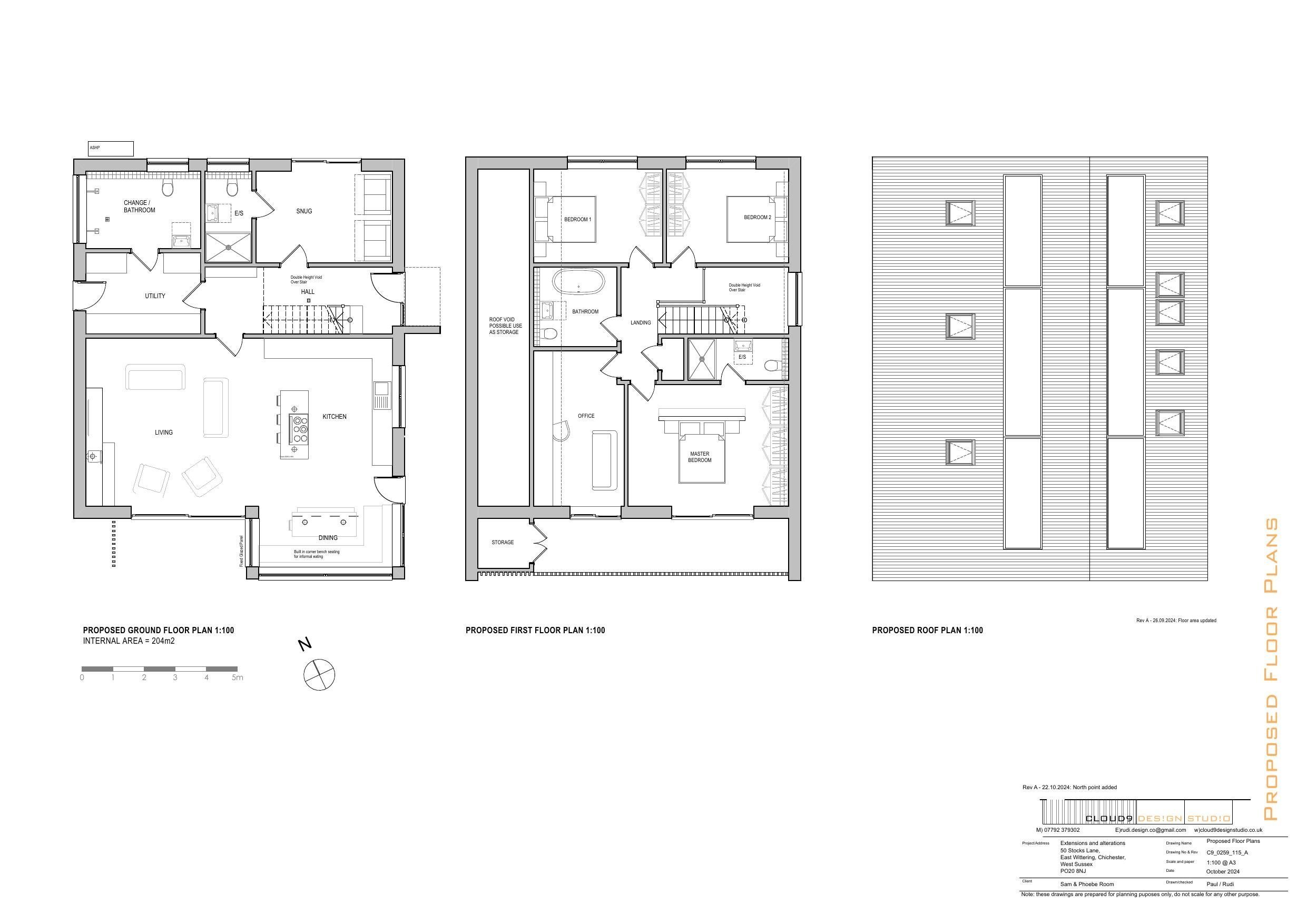
EXISTING ELEVATIONS
Plan - Decided
Not archived · Council Link
EXISTING FF AND ROOF PLAN
Plan - Decided
Not archived · Council Link
EXISTING GF PLAN
Plan - Decided
Not archived · Council Link
FLOOD RISK ASSESSMENT
Application Documents
Not archived · Council Link
LOCATION PLAN - PROPOSED BLOCK PLAN
Plan - Decided
Not archived · Council Link
PLANNING DESIGN AND ACCESS STATEMENT
Application Documents
Not archived · Council Link
PROPOSED ELEVATIONS
Plan - Decided
Not archived · Council Link
PROPOSED ELEVATIONS
Plan - Superseded
Not archived · Council Link
Plan - Decided
Archived · Council Link
Plan - Superseded
Archived · Council Link
SUPPORTING PHOTOS
Application Documents
Not archived · Council Link
WSCC HIGHWAYS
Consultee Comment
Not archived · Council Link

Take Action

Make your voice heard. Authorities need to hear from people who support new homes.

✉️ Write Email in Support View on Council Portal