← Back to Chichester District Council

Status

Permit New housing
Received
31 Jan 2025
New dwellings
140

Summary

Reserved matters approval for 140 dwellings, open space, landscaping and related infrastructure.

Full Proposal

Application for the approval of all remaining Reserved Matters (Appearance, Layout, Scale and Landscaping) for the erection of 140 dwellings, associated open space, landscaping and other related infrastructure, pursuant to outline permission BI/21/01830/OUT.

Documents

ADDENDUM TO LANDSCAPE VISUAL APPRAISAL
Application Documents
Not archived · Council Link
ADDENDUM TO LANDSCAPE VISUAL APPRAISAL
Application Documents
Not archived · Council Link
AONB IMPACT STATEMENT
Application Documents
Not archived · Council Link
AONB IMPACT STATEMENT
Application Documents
Not archived · Council Link
APPEAL DECISION 21/01830/OUT
Appeal Decision Letter
Not archived · Council Link
APPENDIX 1 DRAINAGE DRAWINGS
Application Documents
Not archived · Council Link
APPENDIX 1-C DRAINAGE DRAWINGS
Application Documents
Not archived · Council Link
APPENDIX 2 SURFACE WATER DRAINAGE CALCULATIONS
Application Documents
Not archived · Council Link
APPENDIX 2-A SURFACE WATER DRAINAGE CALCULATIONS
Application Documents
Not archived · Council Link
APPENDIX 3 UTILITY SURVEY
Application Documents
Not archived · Council Link
APPENDIX 3 UTILITY SURVEY
Application Documents
Not archived · Council Link
APPENDIX 4 EXISITNG LAND DRAINAGE INFORMATION
Application Documents
Not archived · Council Link
APPENDIX 4 EXISTING LAND DRAINAGE INFORMATION
Application Documents
Not archived · Council Link
APPENDIX 5 SOUTHERN WATER ASSET PLAN
Application Documents
Not archived · Council Link
APPENDIX 5 SOUTHERN WATER ASSET PLAN
Application Documents
Not archived · Council Link
APPENDIX 6 WEST SUSSEX COUNTY COUNCIL DRAINAGE CORRESPONDENCE
Application Documents
Not archived · Council Link
APPENDIX 6 WEST SUSSEX COUNTY COUNCIL DRAINAGE CORRESPONDENCE
Application Documents
Not archived · Council Link
APPENDIX 7 SUDS PROFORMA
Application Documents
Not archived · Council Link
APPENDIX 7 SUDS PROFORMA
Application Documents
Not archived · Council Link
APPENDIX 8 SOUTHERN WATER DRAIANGE CORRESPONDENCE
Application Documents
Not archived · Council Link
APPENDIX 8 SOUTHERN WATER DRAINAGE CORRESPONDENCE
Application Documents
Not archived · Council Link
APPENDIX 9-A EXTERNAL LEVELS DRAWINGS
Application Documents
Not archived · Council Link
APPLICATION FORM
Application Form
Not archived · Council Link
ARBORICULTURAL METHOD STATEMENT
Application Documents
Not archived · Council Link
ARBORICULTURAL METHOD STATEMENT
Application Documents
Not archived · Council Link
AS PLOTS 116-117 - FLOOR PLAN & ELEVATIONS
Plan - Under Consideration
Not archived · Council Link
AS PLOTS 41,45,47,53,114,115,119,120,12 4,136 OPP 23,30,55 - FLOOR PLANS & ELEVATIONS
Plan - Under Consideration
Not archived · Council Link
ATTENUATION BASIN SECTIONS
Plan - Under Consideration
Not archived · Council Link
ATTENUATION SWALE SECTIONS
Plan - Under Consideration
Not archived · Council Link
BASIN LINER ANTI-FLOTATION CALCULATION
Application Documents
Not archived · Council Link
BASIN LINER ANTI-FLOTATION CALCULATION
Application Documents
Not archived · Council Link
BESPOKE (WEST SUSSEX SPECIFICATION) FIRE TENDER SWEPT PATH LAYOUT
Plan - Superseded
Not archived · Council Link
BIODIVERSITY NET GAIN ASSESSMENT
Application Documents
Not archived · Council Link
BIODIVERSITY NET GAIN PLAN
Application Documents
Not archived · Council Link
BIRDHAM PARISH COUNCIL
Parish Comments
Not archived · Council Link
BRIDLEWAY CONSTRUCTION DETAILS
Plan - Under Consideration
Not archived · Council Link
BRIDLEWAY ROUTING PLAN
Plan - Under Consideration
Not archived · Council Link
BRIDLEWAY SURFACE SPECIFICATION
Application Documents
Not archived · Council Link
CDC - CONSERVATION & DESIGN OFFICER
Consultee Comment
Not archived · Council Link
CDC - ENVIRONMENTAL STRATEGY
Consultee Comment
Not archived · Council Link
CDC - HOUSING ENABLING OFFICER
Consultee Comment
Not archived · Council Link
CDC CONSERVATION & DESIGN
Consultee Comment
Not archived · Council Link
CDC CONSERVATION AND DESIGN
Consultee Comment
Not archived · Council Link
CDC CONSERVATION AND DESIGN
Consultee Comment
Not archived · Council Link
CDC ENVIRONMENTAL STRATEGY
Consultee Comment
Not archived · Council Link
CDC HOUSING DEPT
Consultee Comment
Not archived · Council Link
CDC HOUSING ENABLING OFFICER
Consultee Comment
Not archived · Council Link
CDC LANDSCAPE OFFICER
Consultee Comment
Not archived · Council Link
CDC LANDSCAPE OFFICER
Consultee Comment
Not archived · Council Link
CDC LANDSCAPE OFFICER 06.06.25
Consultee Comment
Not archived · Council Link
CDC WASTE AND RECYCLING
Consultee Comment
Not archived · Council Link
CDC WASTE AND RECYCLING (GUIDANCE NOTE)
Consultee Comment
Not archived · Council Link
CHICHESTER HARBOUR CONSERVANCY
Consultee Comment
Not archived · Council Link
CONSTRUCTION PHASE PLAN
Application Documents
Not archived · Council Link
Correspondence
Correspondence
Not archived · Council Link
Correspondence
Correspondence
Not archived · Council Link
Correspondence
Correspondence
Not archived · Council Link
COVERING LETTER
Application Documents
Not archived · Council Link
COVERING LETTER APRIL 2025
Application Documents
Not archived · Council Link
COVERING LETTER FROM AGENT
Correspondence
Not archived · Council Link
CYCLE STORAGE PLAN
Plan - Under Consideration
Not archived · Council Link
Decision Notice
Decision Notice
Not archived · Council Link
Decision Notice
Decision Notice
Not archived · Council Link
Delegated Report
Delegated Report
Not archived · Council Link
DESIGN AND ACCESS STATEMENT 1 OF 3
Application Documents
Not archived · Council Link
DESIGN AND ACCESS STATEMENT 2 OF 3
Application Documents
Not archived · Council Link
DESIGN AND ACCESS STATEMENT 3 OF 3
Application Documents
Not archived · Council Link
DESIGN CODE COMPLIANCE STATEMENT 1 OF 3
Application Documents
Not archived · Council Link
DESIGN CODE COMPLIANCE STATEMENT 2 OF 3
Application Documents
Not archived · Council Link
DESIGN CODE COMPLIANCE STATEMENT 3 OF 3
Application Documents
Not archived · Council Link
DESIGN CODE COMPLIANCE STATEMENT PT 3
Application Documents
Not archived · Council Link
DRAINAGE DETAILS SHEET 1
Plan - Under Consideration
Not archived · Council Link
DRAINAGE DETAILS SHEET 2
Plan - Under Consideration
Not archived · Council Link
DRAINAGE DETAILS SHEET 3
Plan - Under Consideration
Not archived · Council Link
DRAINAGE DETAILS SHEET 4
Plan - Under Consideration
Not archived · Council Link
DRAINAGE DETAILS SHEET 5
Plan - Under Consideration
Not archived · Council Link
DRAINAGE LAYOUT CATCHMENT PLAN
Plan - Under Consideration
Not archived · Council Link
DRAINAGE LAYOUT GENERAL ARRANGEMENT
Plan - Under Consideration
Not archived · Council Link
DRAINAGE LAYOUT OVERLAND FLOW ROUTE PLAN
Plan - Under Consideration
Not archived · Council Link
DRAINAGE LAYOUT SHEET 1
Plan - Under Consideration
Not archived · Council Link
DRAINAGE LAYOUT SHEET 1
Plan - Under Consideration
Not archived · Council Link
DRAINAGE LAYOUT SHEET 2
Plan - Under Consideration
Not archived · Council Link
DRAINAGE LAYOUT SHEET 2
Plan - Under Consideration
Not archived · Council Link
DRAINAGE LAYOUT SHEET 3
Plan - Under Consideration
Not archived · Council Link
DRAINAGE LAYOUT SHEET 4
Plan - Under Consideration
Not archived · Council Link
DRAINAGE LAYOUT SHEET 4
Plan - Under Consideration
Not archived · Council Link
DRAINAGE LAYOUT SHEET 5
Plan - Under Consideration
Not archived · Council Link
DRAINAGE LAYOUT SHEET 5
Plan - Under Consideration
Not archived · Council Link
DRAINAGE LAYOUT SHEET 6
Plan - Under Consideration
Not archived · Council Link
DRAINAGE LAYOUT SHEET 6
Plan - Under Consideration
Not archived · Council Link
DRAINAGE MAINTENANCE PLAN
Application Documents
Not archived · Council Link
DRAINAGE MAINTENANCE PLAN
Application Documents
Not archived · Council Link
DRAINAGE TECHNICAL NOTE
Application Documents
Not archived · Council Link
DRAINAGE TECHNICAL NOTE 1
Application Documents
Not archived · Council Link
ECOLOGICAL IMPACT ASSESSMENT
Application Documents
Not archived · Council Link
ELEVATION B1 PLOTS AS:68-69- 70
Plan - Superseded
Not archived · Council Link
ELEVATIONS B1 PLOTS AS:1-2
Plan - Under Consideration
Not archived · Council Link
ELEVATIONS PLOTS AS: 116 OPP: 34, 48
Plan - Under Consideration
Not archived · Council Link
ELEVATIONS PLOTS AS: 133 OPP: 132
Plan - Superseded
Not archived · Council Link
ELEVATIONS PLOTS AS: 19 OPP: 26, 35, 51, 126, 129
Plan - Under Consideration
Not archived · Council Link
ELEVATIONS PLOTS AS: 84-85-86-87-88-89
Plan - Superseded
Not archived · Council Link
ELEVATIONS PLOTS AS: 90-91-92- 93
Plan - Under Consideration
Not archived · Council Link
ELEVATIONS PLOTS AS:12-13- 14-15
Plan - Superseded
Not archived · Council Link
ELEVATIONS PLOTS OPP: 27
Plan - Superseded
Not archived · Council Link
EMAIL FROM LUKEN BECK 18.02.25
Application Documents
Not archived · Council Link
EXISTING LAND DRAINAGE
Plan - Under Consideration
Not archived · Council Link
EXTENSION OF TIME AGREEMENT FROM THE PLANNING AGENT 21.07.25
Correspondence
Not archived · Council Link
EXTERNAL LEVELS, GENERAL ARRANGEMENT
Plan - Under Consideration
Not archived · Council Link
FLOOR PLAN (1 BED) PLOTS AS: 12-13-14-15
Plan - Under Consideration
Not archived · Council Link
FLOOR PLANS (2 BED) PLOTS AS: 90- 91-92-93
Plan - Under Consideration
Not archived · Council Link
FLOOR PLANS PLOTS AS: 5-6-7-8-9- 10-11
Plan - Under Consideration
Not archived · Council Link
FLOOR PLANS PLOTS AS: 57-58-59- 60-61
Plan - Under Consideration
Not archived · Council Link
FLOOR PLANS PLOTS AS: 62-63-64
Plan - Under Consideration
Not archived · Council Link
FLOOR PLANS PLOTS AS: 65-66-67
Plan - Under Consideration
Not archived · Council Link
FLOOR PLANS PLOTS AS: 74-75- 76- 77-78
Plan - Under Consideration
Not archived · Council Link
FLOOR PLANS PLOTS AS: 84-85-86- 87-88-89
Plan - Under Consideration
Not archived · Council Link
FLOOR PLANS PLOTS AS: 94-95-96- 97
Plan - Under Consideration
Not archived · Council Link
GARAGE PLOTS AS: 116-117
Plan - Under Consideration
Not archived · Council Link
HOUSETYPE BOOKLET FULL DOCUMENT
Application Documents
Not archived · Council Link
HOUSETYPE BOOKLET FULL DOCUMENT
Application Documents
Not archived · Council Link
HOUSETYPE BOOKLET FULL DOCUMENT
Application Documents
Not archived · Council Link
INDICATIVE STREET LIGHTING PLAN
Plan - Under Consideration
Not archived · Council Link
LANDSCAPE MASTERPLAN
Plan - Under Consideration
Not archived · Council Link
LANDSCAPE MASTERPLAN
Plan
Not archived · Council Link
LAYOUT PLAN - PROPOSED
Plan - Superseded
Not archived · Council Link
MATERIALS LAYOUT, GENERAL ARRANGEMENT
Plan - Under Consideration
Not archived · Council Link
MATERIALS LAYOUT, SHEET 1
Plan - Under Consideration
Not archived · Council Link
MATERIALS LAYOUT, SHEET 2
Plan - Under Consideration
Not archived · Council Link
MATERIALS LAYOUT, SHEET 3
Plan - Under Consideration
Not archived · Council Link
MATERIALS LAYOUT, SHEET 4
Plan - Under Consideration
Not archived · Council Link
MATERIALS LAYOUT, SHEET 5
Plan - Under Consideration
Not archived · Council Link
MATERIALS LAYOUT, SHEET 6
Plan - Under Consideration
Not archived · Council Link
MATERIALS PLAN
Plan - Superseded
Not archived · Council Link
MATERIALS PLAN
Plan - Superseded
Not archived · Council Link
OPEN SPACE ASSESSMENT
Application Documents
Not archived · Council Link
PLANNING STATEMENT INCL. AFFORDABLE HOUSING 1 OF 2
Application Documents
Not archived · Council Link
PLANNING STATEMENT INCL. AFFORDABLE HOUSING 2 OF 2
Application Documents
Not archived · Council Link
PLAY AREA PROPOSAL
Plan - Superseded
Not archived · Council Link
PLAY AREA PROPOSAL
Plan - Superseded
Not archived · Council Link
PLOTS 16-17, 79-80, 101-102, 108-109 ELEVATION (FRONT) - PROPOSED WITH FLOOR PLANS
Plan - Under Consideration
Not archived · Council Link
PLOTS AS 133, OPP 132 - FLOOR PLAN & ELEVATIONS
Plan - Under Consideration
Not archived · Council Link
PLOTS AS 19,26,27,34,35,37,48,50,51,52,1 26,129 - FLOOR PLAN & ELEVATIONS
Plan - Under Consideration
Not archived · Council Link
PLOTS AS 28,104,105 OPP 49,72,122 FLOOR PLANS & ELEVATIONS
Plan - Under Consideration
Not archived · Council Link
PLOTS AS 31,36,100 OPP 71,121,127 FLOOR PLANS & ELEVATIONS
Plan - Under Consideration
Not archived · Council Link
PLOTS AS 5-11 ELEVATIONS
Plan - Superseded
Not archived · Council Link
PLOTS AS 57-61 ELEVATIONS
Plan - Under Consideration
Not archived · Council Link
PLOTS AS 62-64 ELEVATIONS
Plan - Under Consideration
Not archived · Council Link
PLOTS AS 65-67 FLOOR PLANS
Plan - Under Consideration
Not archived · Council Link
PLOTS AS 74-78 ELEVATIONS
Plan - Superseded
Not archived · Council Link
PLOTS AS 84-89 ELEVATIONS
Plan - Under Consideration
Not archived · Council Link
PLOTS AS 94-97 ELEVATIONS
Plan - Under Consideration
Not archived · Council Link
PLOTS OPP 65-67 ELEVATIONS
Plan - Under Consideration
Not archived · Council Link
PROPOSED ELEVATIONS PLOTS AS: 57-58-59-60-61
Plan - Superseded
Not archived · Council Link
PROPOSED ELEVATIONS PLOTS AS: 62-63-64
Plan - Superseded
Not archived · Council Link
PROPOSED ELEVATIONS PLOTS AS: 94-95-96-97
Plan - Superseded
Not archived · Council Link
PROPOSED ELEVATIONS PLOTS OPP: 65-66-67
Plan - Superseded
Not archived · Council Link
PROPOSED PLAN PLOTS AS: 131 OPP: 20, 22, 128, 134
Plan - Under Consideration
Not archived · Council Link
PROPOSED PLAN PLOTS AS: 19, 26, 27, 34, 35, 37, 48, 50, 51, 52, 126, 129
Plan - Under Consideration
Not archived · Council Link
PROPOSED PLAN PLOTS AS: 21, 32, 112 OPP: 73, 107
Plan - Under Consideration
Not archived · Council Link
PROPOSED PLAN PLOTS AS: 28, 104, 125 OPP: 49, 72, 122
Plan - Under Consideration
Not archived · Council Link
PROPOSED PLAN PLOTS AS: 31, 36, 100 OPP: 71, 121, 127
Plan - Under Consideration
Not archived · Council Link
PROPOSED PLAN PLOTS AS: 42, 46, 54, 130 OPP: 18, 24, 113, 135
Plan - Under Consideration
Not archived · Council Link
PROPOSED PLAN PLOTS AS: 44, 103, 118, 123 OPP: 29, 56, 110
Plan - Under Consideration
Not archived · Council Link
PROPOSED PLAN PLOTS AS: 5-6-7-8- 9-10-11
Plan - Under Consideration
Not archived · Council Link
PROPOSED PLAN PLOTS AS: 74-75- 76-77-78
Plan - Under Consideration
Not archived · Council Link
PROPOSED PLAN PLOTS AS:33, 43, 81 OPP: 25, 38, 111
Plan - Under Consideration
Not archived · Council Link
PRW DETAILS SUBMITTED PURSUANT TO CONDITION 26 OF APP/L3816//W/23/3319434
Application Documents
Not archived · Council Link
PUBLIC COMMENT
Objection Comment
Not archived · Council Link
PUBLIC COMMENT
Objection Comment
Not archived · Council Link
PUBLIC COMMENT
Support Comment
Not archived · Council Link
PUBLIC COMMENT
Objection Comment
Not archived · Council Link
PUBLIC COMMENT
Objection Comment
Not archived · Council Link
PUBLIC COMMENT
Objection Comment
Not archived · Council Link
PUBLIC COMMENT
Objection Comment
Not archived · Council Link
PUBLIC COMMENT
Third Party Other
Not archived · Council Link
PUBLIC COMMENT
Third Party Other
Not archived · Council Link
PUBLIC COMMENT
Objection Comment
Not archived · Council Link
PUBLIC COMMENT
Objection Comment
Not archived · Council Link
PUBLIC COMMENT
Third Party Other
Not archived · Council Link
PUBLIC COMMENT
Objection Comment
Not archived · Council Link
PUBLIC COMMENT
Objection Comment
Not archived · Council Link
PUBLIC COMMENT
Objection Comment
Not archived · Council Link
PUBLIC COMMENT
Objection Comment
Not archived · Council Link
PUBLIC COMMENT 31.07.2025
Objection Comment
Not archived · Council Link
REFUSE VEHICLE SWEPT PATH LAYOUT
Plan - Superseded
Not archived · Council Link
REFUSE VEHICLE SWEPT PATH LAYOUT
Plan - Superseded
Not archived · Council Link
REFUSE/CYCLE STORE LOTS AS: 12- 13, 14-15, 90-91, 92-93
Plan - Under Consideration
Not archived · Council Link
S38 AGREEMENT PLAN
Plan - Under Consideration
Not archived · Council Link
SALES ARENA PLAN
Plan - Under Consideration
Not archived · Council Link
SCHEDULE OF ACCOMMODATION SITE LAYOUT 25 CIL
Application Documents
Not archived · Council Link
SITE LAYOUT
Plan - Under Consideration
Not archived · Council Link
SITE LAYOUT - BOUNDARY TREATMENTS
Plan - Under Consideration
Not archived · Council Link
SITE LAYOUT - CAR CHARGING POINTS PLAN
Plan - Under Consideration
Not archived · Council Link
SITE LAYOUT - CAR PARKING PLAN
Plan - Under Consideration
Not archived · Council Link
SITE LAYOUT - CYCLE STORAGE PLAN
Plan - Under Consideration
Not archived · Council Link
SITE LAYOUT - MATERIALS PLAN
Plan - Under Consideration
Not archived · Council Link
SITE LAYOUT - STOREY HEIGHTS
Plan - Under Consideration
Not archived · Council Link
SITE LAYOUT - STOREY HEIGHTS
Plan - Superseded
Not archived · Council Link
SITE LAYOUT - TENURE
Plan - Under Consideration
Not archived · Council Link
SITE LAYOUT ? BOUNDARY TREATMENTS
Plan - Superseded
Not archived · Council Link
SITE LAYOUT ? CAR PARKING PLAN
Plan - Superseded
Not archived · Council Link
SITE LAYOUT ? TENURE
Plan - Superseded
Not archived · Council Link
Plan - Under Consideration
Archived · Council Link
SOFT LANDSCAPE MANAGEMENT & MAINTENANCE PLAN
Application Documents
Not archived · Council Link
SOFT LANDSCAPE PROPOSALS - WHOLE SITE
Plan - Superseded
Not archived · Council Link
SOFT LANDSCAPE PROPOSALS SHEET 1
Plan - Superseded
Not archived · Council Link
SOFT LANDSCAPE PROPOSALS SHEET 1
Plan - Superseded
Not archived · Council Link
SOFT LANDSCAPE PROPOSALS SHEET 1
Plan - Superseded
Not archived · Council Link
SOFT LANDSCAPE PROPOSALS SHEET 10
Plan - Superseded
Not archived · Council Link
SOFT LANDSCAPE PROPOSALS SHEET 10
Plan - Superseded
Not archived · Council Link
SOFT LANDSCAPE PROPOSALS SHEET 10
Plan - Superseded
Not archived · Council Link
SOFT LANDSCAPE PROPOSALS SHEET 10
Plan - Superseded
Not archived · Council Link
SOFT LANDSCAPE PROPOSALS SHEET 11
Plan - Superseded
Not archived · Council Link
SOFT LANDSCAPE PROPOSALS SHEET 11
Plan - Superseded
Not archived · Council Link
SOFT LANDSCAPE PROPOSALS SHEET 2
Plan - Superseded
Not archived · Council Link
SOFT LANDSCAPE PROPOSALS SHEET 2
Plan - Superseded
Not archived · Council Link
SOFT LANDSCAPE PROPOSALS SHEET 2
Plan - Superseded
Not archived · Council Link
SOFT LANDSCAPE PROPOSALS SHEET 3
Plan - Superseded
Not archived · Council Link
SOFT LANDSCAPE PROPOSALS SHEET 3
Plan - Superseded
Not archived · Council Link
SOFT LANDSCAPE PROPOSALS SHEET 3
Plan - Superseded
Not archived · Council Link
SOFT LANDSCAPE PROPOSALS SHEET 4
Plan - Superseded
Not archived · Council Link
SOFT LANDSCAPE PROPOSALS SHEET 4
Plan - Superseded
Not archived · Council Link
SOFT LANDSCAPE PROPOSALS SHEET 4
Plan - Superseded
Not archived · Council Link
SOFT LANDSCAPE PROPOSALS SHEET 5
Plan - Superseded
Not archived · Council Link
SOFT LANDSCAPE PROPOSALS SHEET 5
Plan - Superseded
Not archived · Council Link
SOFT LANDSCAPE PROPOSALS SHEET 5
Plan - Superseded
Not archived · Council Link
SOFT LANDSCAPE PROPOSALS SHEET 6
Plan - Superseded
Not archived · Council Link
SOFT LANDSCAPE PROPOSALS SHEET 6
Plan - Superseded
Not archived · Council Link
SOFT LANDSCAPE PROPOSALS SHEET 6
Plan - Superseded
Not archived · Council Link
SOFT LANDSCAPE PROPOSALS SHEET 7
Plan - Superseded
Not archived · Council Link
SOFT LANDSCAPE PROPOSALS SHEET 7
Plan - Superseded
Not archived · Council Link
SOFT LANDSCAPE PROPOSALS SHEET 7
Plan - Superseded
Not archived · Council Link
SOFT LANDSCAPE PROPOSALS SHEET 8
Plan - Superseded
Not archived · Council Link
SOFT LANDSCAPE PROPOSALS SHEET 8
Plan - Superseded
Not archived · Council Link
SOFT LANDSCAPE PROPOSALS SHEET 8
Plan - Superseded
Not archived · Council Link
SOFT LANDSCAPE PROPOSALS SHEET 9
Plan - Superseded
Not archived · Council Link
SOFT LANDSCAPE PROPOSALS SHEET 9
Plan - Superseded
Not archived · Council Link
SOFT LANDSCAPE PROPOSALS SHEET 9
Plan - Superseded
Not archived · Council Link
SOFT LANDSCAPE PROPOSALS WHOLE SITE
Plan - Under Consideration
Not archived · Council Link
SOFT LANDSCAPE SPECIFICATION
Application Documents
Not archived · Council Link
SOUTHERN WATER
Consultee Comment
Not archived · Council Link
SOUTHERN WATER
Consultee Comment
Not archived · Council Link
STREET SCENES
Plan - Under Consideration
Not archived · Council Link
SUBSTITUTE DOCUMENT- BIODIVERSITY NET GAIN ASSESSMENT 19.06.25
Application Documents
Not archived · Council Link
SUBSTITUTE DOCUMENT- ECOLOGICAL IMPACT ASSESSMENT JUNE 2025
Application Documents
Not archived · Council Link
SUBSTITUTE PLAN 15/5/25 ATTENUATION BASIN SECTIONS
Plan - Under Consideration
Not archived · Council Link
SUBSTITUTE PLAN 15/5/25 ATTENUATION SWALE SECTIONS
Plan - Under Consideration
Not archived · Council Link
SUBSTITUTE PLAN 15/5/25 DRAINAGE DETAILS SHEET 3
Plan - Under Consideration
Not archived · Council Link
SUBSTITUTE PLAN 15/5/25 DRAINAGE DETAILS SHEET 4
Plan - Under Consideration
Not archived · Council Link
SUBSTITUTE PLAN 15/5/25 DRAINAGE DETAILS SHEET 5
Plan - Under Consideration
Not archived · Council Link
SUBSTITUTE PLAN 15/5/25 MATERIALS PLAN
Plan - Superseded
Not archived · Council Link
SUBSTITUTE PLAN 15/5/25 PLOTS AS 116-117 - DOUBLE GARAGE FLOOR PLAN & ELEVATIONS
Plan - Under Consideration
Not archived · Council Link
SUBSTITUTE PLAN 15/5/25 PLOTS AS 133 OPP 132 - KEMBLE FLOOR PLANS & ELEVATIONS
Plan - Under Consideration
Not archived · Council Link
SUBSTITUTE PLAN 15/5/25 PLOTS AS 19,26,27,34,35,37,48,50,51,52,1 26,129 - SINGLE GARAGE PLAN & ELEVATIONS
Plan - Under Consideration
Not archived · Council Link
SUBSTITUTE PLAN 15/5/25 PLOTS AS 28,104,125 OPP 49, 72,122 - WARWICK FLOOR PLANS & ELEVATIONS
Plan - Under Consideration
Not archived · Council Link
SUBSTITUTE PLAN 15/5/25 PLOTS AS 31,36,100 OPP 71, 121,127 - WARWICK FLOOR PLANS & ELEVATIONS
Plan - Under Consideration
Not archived · Council Link
SUBSTITUTE PLAN 15/5/25 PLOTS AS 41,45,47,53,114,115,119,120,12 4,136 OPP 23,30,55 - HENLEY FLOOR PLANS & ELEVATIONS
Plan - Under Consideration
Not archived · Council Link
SUBSTITUTE PLAN 15/5/25 PLOTS AS 5-11 ELEVATIONS SPEY-TRENT-LEADON
Plan - Under Consideration
Not archived · Council Link
SUBSTITUTE PLAN 15/5/25 PLOTS AS 57-61 ELEVATIONS TRENT & SPEY
Plan - Under Consideration
Not archived · Council Link
SUBSTITUTE PLAN 15/5/25 PLOTS AS 62-64 ELEVATIONS TRENT (3 BLOCK)
Plan - Under Consideration
Not archived · Council Link
SUBSTITUTE PLAN 15/5/25 PLOTS AS 74-78 ELEVATIONS SPEY STOUR TYNE
Plan - Under Consideration
Not archived · Council Link
SUBSTITUTE PLAN 15/5/25 PLOTS AS 84-89 ELEVATIONS STOUR & LEADON
Plan - Under Consideration
Not archived · Council Link
SUBSTITUTE PLAN 15/5/25 PLOTS AS 94-97 ELEVATIONS TRENT (4 BLOCK)
Plan - Under Consideration
Not archived · Council Link
SUBSTITUTE PLAN 15/5/25 PLOTS OPP 65-67 ELEVATIONS STOUR
Plan - Under Consideration
Not archived · Council Link
SUBSTITUTE PLAN 15/5/25 PLOTS OPP 65-67 FLOOR PLANS STOUR
Plan - Under Consideration
Not archived · Council Link
SUBSTITUTE PLAN 15/5/25 REFUSE VEHICLE SWEPT PATH LAYOUT
Plan - Under Consideration
Not archived · Council Link
SUBSTITUTE PLAN 15/5/25 SOFT LANDSCAPE PROPOSALS SHEET 1
Plan - Superseded
Not archived · Council Link
SUBSTITUTE PLAN 15/5/25 SOFT LANDSCAPE PROPOSALS SHEET 10
Plan - Superseded
Not archived · Council Link
SUBSTITUTE PLAN 15/5/25 SOFT LANDSCAPE PROPOSALS SHEET 11
Plan - Superseded
Not archived · Council Link
SUBSTITUTE PLAN 15/5/25 SOFT LANDSCAPE PROPOSALS SHEET 2
Plan - Superseded
Not archived · Council Link
SUBSTITUTE PLAN 15/5/25 SOFT LANDSCAPE PROPOSALS SHEET 3
Plan - Superseded
Not archived · Council Link
SUBSTITUTE PLAN 15/5/25 SOFT LANDSCAPE PROPOSALS SHEET 4
Plan - Superseded
Not archived · Council Link
SUBSTITUTE PLAN 15/5/25 SOFT LANDSCAPE PROPOSALS SHEET 5
Plan - Superseded
Not archived · Council Link
SUBSTITUTE PLAN 15/5/25 SOFT LANDSCAPE PROPOSALS SHEET 6
Plan - Superseded
Not archived · Council Link
SUBSTITUTE PLAN 15/5/25 SOFT LANDSCAPE PROPOSALS SHEET 7
Plan - Superseded
Not archived · Council Link
SUBSTITUTE PLAN 15/5/25 SOFT LANDSCAPE PROPOSALS SHEET 8
Plan - Superseded
Not archived · Council Link
SUBSTITUTE PLAN 15/5/25 SOFT LANDSCAPE PROPOSALS SHEET 9
Plan - Superseded
Not archived · Council Link
SUBSTITUTE PLAN 15/5/25 SOFT LANDSCAPE PROPOSALS WHOLE SITE
Plan - Superseded
Not archived · Council Link
SUBSTITUTE PLAN 15/5/25 VEHICLE TRACKING - FIRE TENDER BESPOKE
Plan - Under Consideration
Not archived · Council Link
SUBSTITUTE PLAN 21/7/25 LAP PROPOSALS - PLAY AREA PROPOSAL
Plan - Under Consideration
Not archived · Council Link
SUBSTITUTE PLAN 21/7/25 LEAP PROPOSALS - PLAY AREA PROPOSAL
Plan - Under Consideration
Not archived · Council Link
SUBSTITUTE PLAN 21/7/25 SOFT LANDSCAPE PROPOSALS SHEET 1
Plan - Under Consideration
Not archived · Council Link
SUBSTITUTE PLAN 21/7/25 SOFT LANDSCAPE PROPOSALS SHEET 10
Plan - Under Consideration
Not archived · Council Link
SUBSTITUTE PLAN 21/7/25 SOFT LANDSCAPE PROPOSALS SHEET 11
Plan - Under Consideration
Not archived · Council Link
SUBSTITUTE PLAN 21/7/25 SOFT LANDSCAPE PROPOSALS SHEET 2
Plan - Under Consideration
Not archived · Council Link
SUBSTITUTE PLAN 21/7/25 SOFT LANDSCAPE PROPOSALS SHEET 3
Plan - Under Consideration
Not archived · Council Link
SUBSTITUTE PLAN 21/7/25 SOFT LANDSCAPE PROPOSALS SHEET 4
Plan - Under Consideration
Not archived · Council Link
SUBSTITUTE PLAN 21/7/25 SOFT LANDSCAPE PROPOSALS SHEET 5
Plan - Under Consideration
Not archived · Council Link
SUBSTITUTE PLAN 21/7/25 SOFT LANDSCAPE PROPOSALS SHEET 6
Plan - Under Consideration
Not archived · Council Link
SUBSTITUTE PLAN 21/7/25 SOFT LANDSCAPE PROPOSALS SHEET 7
Plan - Under Consideration
Not archived · Council Link
SUBSTITUTE PLAN 21/7/25 SOFT LANDSCAPE PROPOSALS SHEET 8
Plan - Under Consideration
Not archived · Council Link
SUBSTITUTE PLAN 21/7/25 SOFT LANDSCAPE PROPOSALS SHEET 9
Plan - Under Consideration
Not archived · Council Link
SUBSTITUTE PLAN- BESPOKE (WEST SUSSEX) FIRE TENDER SWEPT PATH LAYOUT
Plan - Under Consideration
Not archived · Council Link
SUBSTITUTE PLAN- MATERIALS LAYOUT, GENERAL ARRANGEMENT
Plan - Under Consideration
Not archived · Council Link
SUBSTITUTE PLAN- OXFORD LIFESTYLE A1 A A ELEVATIONS
Plan - Under Consideration
Not archived · Council Link
SUBSTITUTE PLAN- OXFORD LIFESTYLE B1 A ELEVATIONS
Plan - Under Consideration
Not archived · Council Link
SUBSTITUTE PLAN- PLANNING EXTERNAL LEVELS GENERAL ARRANGEMENT
Plan - Under Consideration
Not archived · Council Link
SUBSTITUTE PLAN- REFUSE VEHICLE SWEPT PATH LAYOUT
Plan - Under Consideration
Not archived · Council Link
SUBSTITUTE PLAN- SPEY-TRENT- LEADON A1 ELEVATIONS B
Plan - Under Consideration
Not archived · Council Link
SUBSTITUTE PLAN- TRENT(4 BLOCK) ELEVATIONS
Plan - Under Consideration
Not archived · Council Link
SUBSTITUTE PLAN- TRENT(4 BLOCK)GROUND FLOOR & FIRST FLOOR PLAN
Plan - Under Consideration
Not archived · Council Link
SUBSTITUTE PLAN-HENLEY B1 B ELEVATIONS
Plan - Under Consideration
Not archived · Council Link
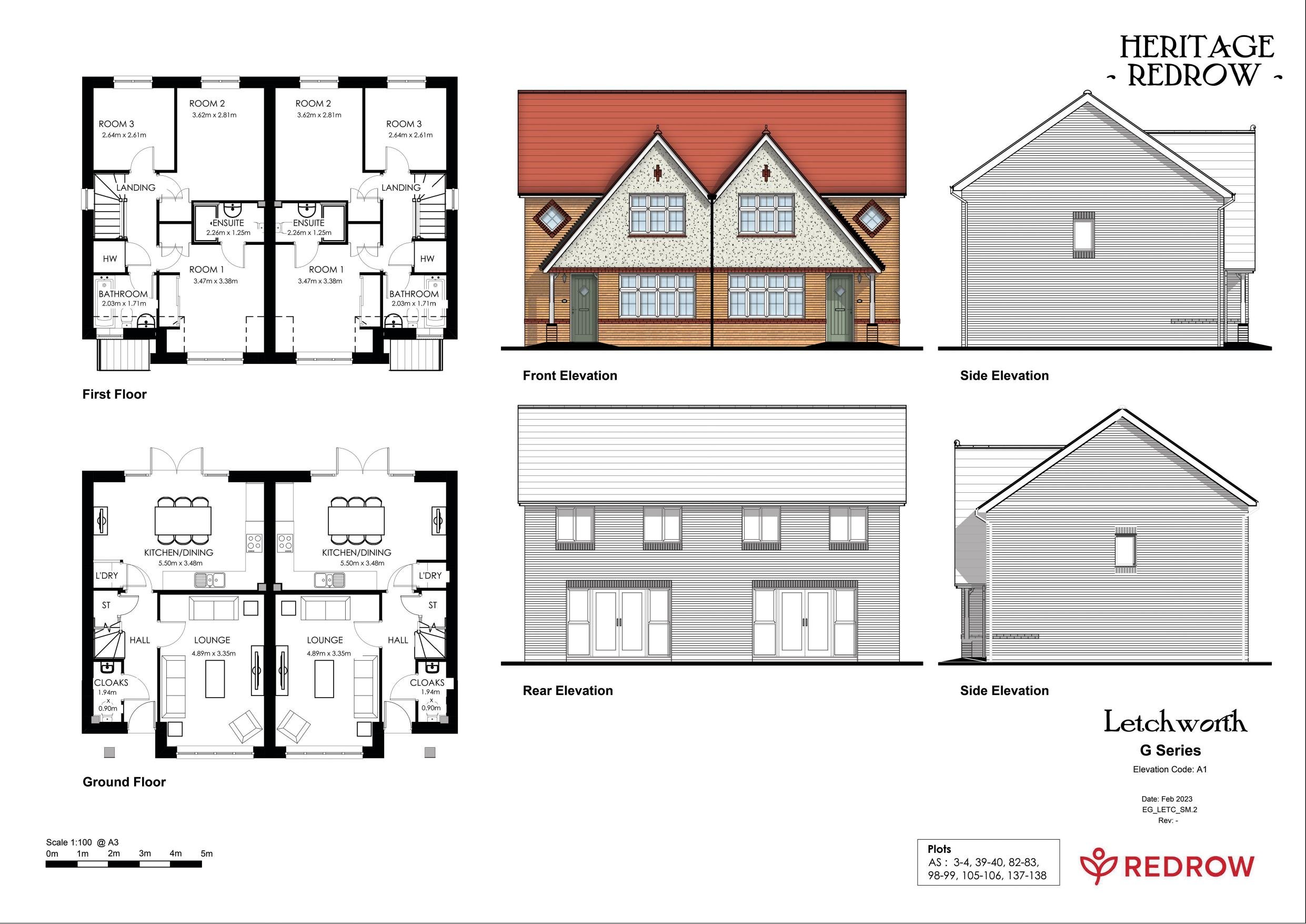
SUBSTITUTE PLAN-LETCHWORTH A1 A ELEVATIONS
Plan - Under Consideration
Not archived · Council Link
SURFACE WATER DRAINAGE OUTFALL OPTION 1
Plan - Under Consideration
Not archived · Council Link
SURFACE WATER DRAINAGE OUTFALL OPTION 2
Plan - Under Consideration
Not archived · Council Link
SUSSEX POLICE
Consultee Comment
Not archived · Council Link
SUSTAINABILITY APPRAISAL
Application Documents
Not archived · Council Link
SWALE LINER ANTI-FLOTATION CALCULATION
Application Documents
Not archived · Council Link
SWALE LINER ANTI-FLOTATION CALCULATION
Application Documents
Not archived · Council Link
TEMPORARY SALES SUITE ARRANGEMENT
Plan - Under Consideration
Not archived · Council Link
TREE PROTECTION PLAN SHEET 1 OF 3
Plan - Under Consideration
Not archived · Council Link
TREE PROTECTION PLAN SHEET 1 OF 3
Plan - Superseded
Not archived · Council Link
TREE PROTECTION PLAN SHEET 2 OF 3
Plan - Superseded
Not archived · Council Link
TREE PROTECTION PLAN SHEET 2 OF 3
Plan - Under Consideration
Not archived · Council Link
TREE PROTECTION PLAN SHEET 3 OF 3
Plan - Under Consideration
Not archived · Council Link
TREE PROTECTION PLAN SHEET 3 OF 3
Plan - Superseded
Not archived · Council Link
TREE SURVEY PLAN SHEET 1 OF 3
Plan - Under Consideration
Not archived · Council Link
TREE SURVEY PLAN SHEET 2 OF 3
Plan - Under Consideration
Not archived · Council Link
TREE SURVEY PLAN SHEET 3 OF 3
Plan - Under Consideration
Not archived · Council Link
VEHICLE TRACKING - FIRE TENDER BESPOKE
Plan - Superseded
Not archived · Council Link
VISIBILITY SPLAYS AND ROAD GEOMETRY, GENERAL ARRANGEMENT, 20MPH DESIGN SPEED
Plan - Under Consideration
Not archived · Council Link
WEST SUSSEX FIRE AND RESCUE SERVICE
Consultee Comment
Not archived · Council Link
WHOLE SITE SOFT LANDSCAPE PROPOSALS
Plan - Superseded
Not archived · Council Link
WSCC - HIGHWAYS
Consultee Comment
Not archived · Council Link
WSCC - LEAD LOCAL FLOOD AUTHORITY
Consultee Comment
Not archived · Council Link
WSCC HIGHWAYS
Consultee Comment
Not archived · Council Link
WSCC HIGHWAYS
Consultee Comment
Not archived · Council Link
WSCC HIGHWAYS - PUBLIC RIGHTS OF WAY
Consultee Comment
Not archived · Council Link
WSCC LEAD LOCAL FLOOD AUTHORITY
Consultee Comment
Not archived · Council Link
WSCC LEAD LOCAL FLOOD AUTHORITY
Consultee Comment
Not archived · Council Link

Take Action

Make your voice heard. Authorities need to hear from people who support new homes.

✉️ Write Email in Support View on Council Portal