← Back to Chichester District Council

Status

Pending Decision New housing
Received
04 Mar 2025
New dwellings
4

Summary

Demolish existing dwelling and construct four new dwellings with access and landscaping.

Full Proposal

Demolition of existing dwelling and construction of 4 no. dwellings, access, landscaping and associated works.

Documents

2X79M VISIBILITY SPLAYS FROM ACCESS
Plan - Under Consideration
Not archived · Council Link
APPLICATION FORM
Application Form
Not archived · Council Link
ARBORICULTURAL CONSULTATION RESPONSE
Consultee Comment
Not archived · Council Link
ARBORICULTURAL IMPACT ASSESSMENT AND METHOD STATEMENT
Application Documents
Not archived · Council Link
ATC SPEED DATA
Other
Not archived · Council Link
BIODIVERSITY NET GAIN ASSESSMENT
Application Documents
Not archived · Council Link
BIODIVERSITY NET GAIN METRIC
Application Documents
Not archived · Council Link
BNG METRIC CONDITION ASSESSMENT
Application Documents
Not archived · Council Link
Application Documents
Archived · Council Link
CDC COASTAL AND DRAINAGE ENGINEER
Consultee Comment
Not archived · Council Link
CDC ENVIRONMENTAL STRATEGY
Consultee Comment
Not archived · Council Link
Correspondence
Correspondence
Not archived · Council Link
DESIGN AND ACCESS STATEMENT
Application Documents
Not archived · Council Link
DRAFT S106 ENGROSSMENT COPY
Application Documents
Not archived · Council Link
ECOLOGICAL IMPACT ASSESSMENT
Application Documents
Not archived · Council Link
EXISTING FLOOR PLAN AND ELEVATIONS
Plan - Under Consideration
Not archived · Council Link
EXISTING LOCATION PLAN
Plan - Under Consideration
Not archived · Council Link
EXISTING TREE SCHEDULE
Application Documents
Not archived · Council Link
FOUL AND SURFACE WATER DRAINAGE STATEMENT
Application Documents
Not archived · Council Link
FOUL AND SURFACE WATER DRAINAGE STATEMENT
Correspondence
Not archived · Council Link
FOUL AND SURFACE WATER DRAINAGE STATEMENT REV P2
Application Documents
Not archived · Council Link
HIGHWAY CLARIFICATIONS
Correspondence
Not archived · Council Link
HRA SCREENING
Other
Not archived · Council Link
HRA SCREENING BATS
Other
Not archived · Council Link
NORTH MUNDHAM PARISH COUNCIL
Parish Comments
Not archived · Council Link
NORTH MUNDHAM PARISH COUNCIL
Parish Comments
Not archived · Council Link
Plan - Under Consideration
Archived · Council Link
PLOT 2 PROPOSED ELEVATIONS
Plan - Under Consideration
Not archived · Council Link
PLOT 2 PROPOSED ELEVATIONS
Plan - Under Consideration
Not archived · Council Link
Plan - Under Consideration
Archived · Council Link
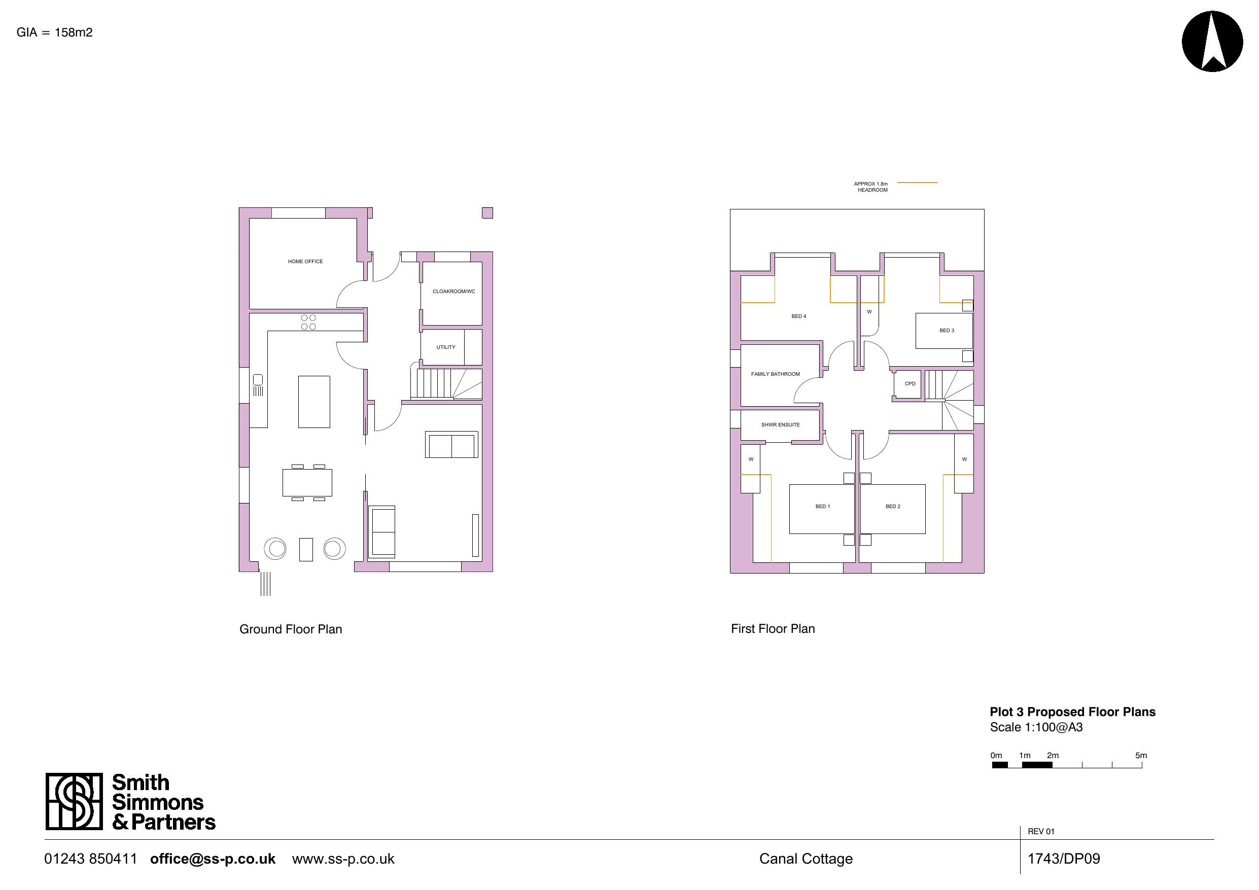
PLOT 3 PROPOSED ELEVATIONS
Plan - Under Consideration
Not archived · Council Link
Plan - Under Consideration
Archived · Council Link
PLOT 4 PROPOSED ELEVATIONS
Plan - Under Consideration
Not archived · Council Link
Plan - Under Consideration
Archived · Council Link
PROPOSED BLOCK PLAN
Plan - Under Consideration
Not archived · Council Link
PROPOSED CONTEXT PLAN
Plan - Under Consideration
Not archived · Council Link
Plan - Under Consideration
Archived · Council Link
PROPOSED STREET SCENE, SECTION AA AND SECTION BB
Plan - Under Consideration
Not archived · Council Link
PUBLIC COMMENT
Objection Comment
Not archived · Council Link
PUBLIC COMMENT
Objection Comment
Not archived · Council Link
PUBLIC COMMENT
Objection Comment
Not archived · Council Link
PUBLIC COMMENT
Objection Comment
Not archived · Council Link
S106 AGREEMENT
Legal Agreement
Not archived · Council Link
S106 PLAN CHICHESTER HARBOUR SPECIAL PROTECTION AREA
Application Documents
Not archived · Council Link
SCHEMATIC SURFACE WATER DRAINAGE LAYOUT
Plan
Not archived · Council Link
SITE BASELINE HABITAT PLAN
Plan - Under Consideration
Not archived · Council Link
SITE PROPOSED HABITAT PLAN
Plan - Under Consideration
Not archived · Council Link
SUSTAINABILITY STATEMENT
Application Documents
Not archived · Council Link
SWEPT PATH ANALYSIS CDC REFUSE VEHICLE ENTERING, TURNING AND EXITING SITE
Plan - Under Consideration
Not archived · Council Link
TREE CONSTRAINTS PLAN
Plan - Under Consideration
Not archived · Council Link
TREE RETENTION AND PROTECTION PLAN
Plan - Under Consideration
Not archived · Council Link
WSCC FIRE AND RESCUE SERVICE
Consultee Comment
Not archived · Council Link
WSCC HIGHWAYS
Consultee Comment
Not archived · Council Link
WSCC HIGHWAYS
Consultee Comment
Not archived · Council Link

Take Action

Make your voice heard. Authorities need to hear from people who support new homes.

✉️ Write Email in Support View on Council Portal