← Back to Chichester District Council

Status

Permit New housing
Received
10 Jun 2025
New dwellings
1

Summary

Demolition of workshop and erection of one dwelling.

Full Proposal

Demolition of workshop and erection of 1no dwelling - Alternative to prior approval SI/25/00403/PA3MA for change of workshop to a dwelling.

Documents

APPLICATION FORM
Application Form
Not archived · Council Link
APPROPRIATE ASSESSMENT
Correspondence
Not archived · Council Link
BAT SCOPING ASSESSMENT
Application Documents
Not archived · Council Link
BLOCK PLAN
Plan - Decided
Not archived · Council Link
CDC CONSERVATION AND DESIGN
Parish Comments
Not archived · Council Link
CDC ENVIRONMENTAL PROTECTION
Consultee Comment
Not archived · Council Link
COAST PROTECTION AND LAND DRAINAGE ENGINEER
Consultee Comment
Not archived · Council Link
Correspondence
Correspondence
Not archived · Council Link
Decision Notice
Decision Notice
Not archived · Council Link
DEED OF UNDERTAKING 15/8/25
Legal Agreement
Not archived · Council Link
DEED OF UNDERTAKING 15/8/25
Legal Agreement
Not archived · Council Link
Delegated Report
Delegated Report
Not archived · Council Link
EXISTING FLOOR PLAN AND ELEVATIONS
Plan - Decided
Not archived · Council Link
FLOOD RISK AND DRAINAGE
Application Documents
Not archived · Council Link
GATEWAY APPLICATION ASSESSMENT
Application Documents
Not archived · Council Link
LOCATION PLAN
Plan - Decided
Not archived · Council Link
NATURAL ENGLAND
Consultee Comment
Not archived · Council Link
NEW DWELLING PROPOSED ELEVATIONS
Plan - Under Consideration
Not archived · Council Link
Plan - Under Consideration
Archived · Council Link
PHOTOGRAPH PLAN
Application Documents
Not archived · Council Link
PLANNING DESIGN AND ACCESS STATEMENT
Application Documents
Not archived · Council Link
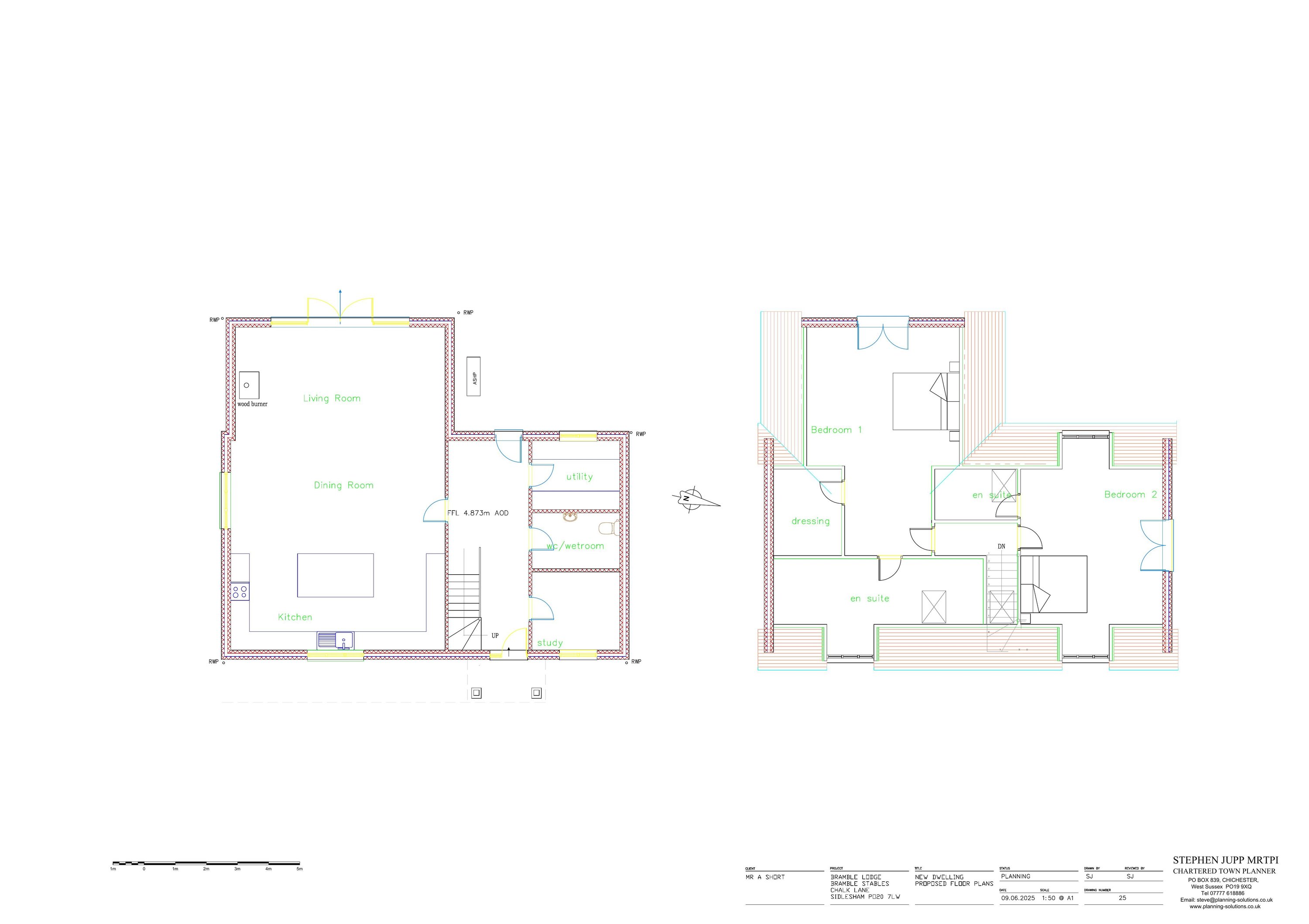
PROPOSED FLOOR PLAN AND ELEVATIONS
Plan - Under Consideration
Not archived · Council Link
Plan - Decided
Archived · Council Link
SIDLESHAM PARISH COUNCIL
Parish Comments
Not archived · Council Link
SUBSTITUTE PLAN 7/8/25 PROPOSED ELEVATIONS
Plan - Decided
Not archived · Council Link
SUSTAINABILITY STATEMENT
Application Documents
Not archived · Council Link
VARIOUS STATEMENTS
Application Documents
Not archived · Council Link
WSCC FIRE AND RESCUE SERVICE
Consultee Comment
Not archived · Council Link
WSCC HIGHWAYS 30/6/25
Consultee Comment
Not archived · Council Link

Take Action

Make your voice heard. Authorities need to hear from people who support new homes.

✉️ Write Email in Support View on Council Portal