← Back to Chichester District Council

Status

Permit House extension
Received
13 Aug 2025
New dwellings
0

Summary

Various extensions, enlarged dormers, and balcony alterations to existing dwelling.

Full Proposal

Replacement one and half storey rear extension, single storey front extension, single storey side extension with balcony above, enlargement of existing side dormers and alterations and additions to the dwellinghouse.

Documents

AONB/NATIONAL LANDSCAPE STATEMENT
Application Documents
Not archived · Council Link
APPLICATION FORM
Application Form
Not archived · Council Link
ARBORICULTURAL IMPACT ASSESSMENT
Application Documents
Not archived · Council Link
BAT SURVEY REPORT
Application Documents
Not archived · Council Link
BIODIVERSITY ENHANCEMENT STATEMENT
Application Documents
Not archived · Council Link
BOSHAM PARISH COUNCIL 06/11/2025
Parish Comments
Not archived · Council Link
CDC ARCHAEOLOGY OFFICER
Consultee Comment
Not archived · Council Link
CDC ENVIRONMENTAL PROTECTION
Consultee Comment
Not archived · Council Link
CHICHESTER HARBOUR CONSERVANCY
Consultee Comment
Not archived · Council Link
Correspondence
Correspondence
Not archived · Council Link
COVERING LETTER
Application Documents
Not archived · Council Link
Decision Notice
Decision Notice
Not archived · Council Link
Delegated Report
Delegated Report
Not archived · Council Link
EXISTING EAST AND WEST ELEVATION
Plan - Under Consideration
Not archived · Council Link
EXISTING EAST AND WEST ELEVATIONS
Plan - Under Consideration
Not archived · Council Link
EXISTING FLOOR PLANS
Plan - Under Consideration
Not archived · Council Link
EXISTING NORTH AND SOUTH ELEVATION
Plan - Under Consideration
Not archived · Council Link
EXISTING NORTH AND SOUTH ELEVATIONS
Plan - Under Consideration
Not archived · Council Link
PROPOSED EAST AND WEST ELEVATIONS
Plan - Decided
Not archived · Council Link
Plan - Decided
Archived · Council Link
PROPOSED NORTH AND SOUTH ELEVATION
Plan - Decided
Not archived · Council Link
PROPOSED SECTION
Plan - Decided
Not archived · Council Link
Plan - Decided
Archived · Council Link
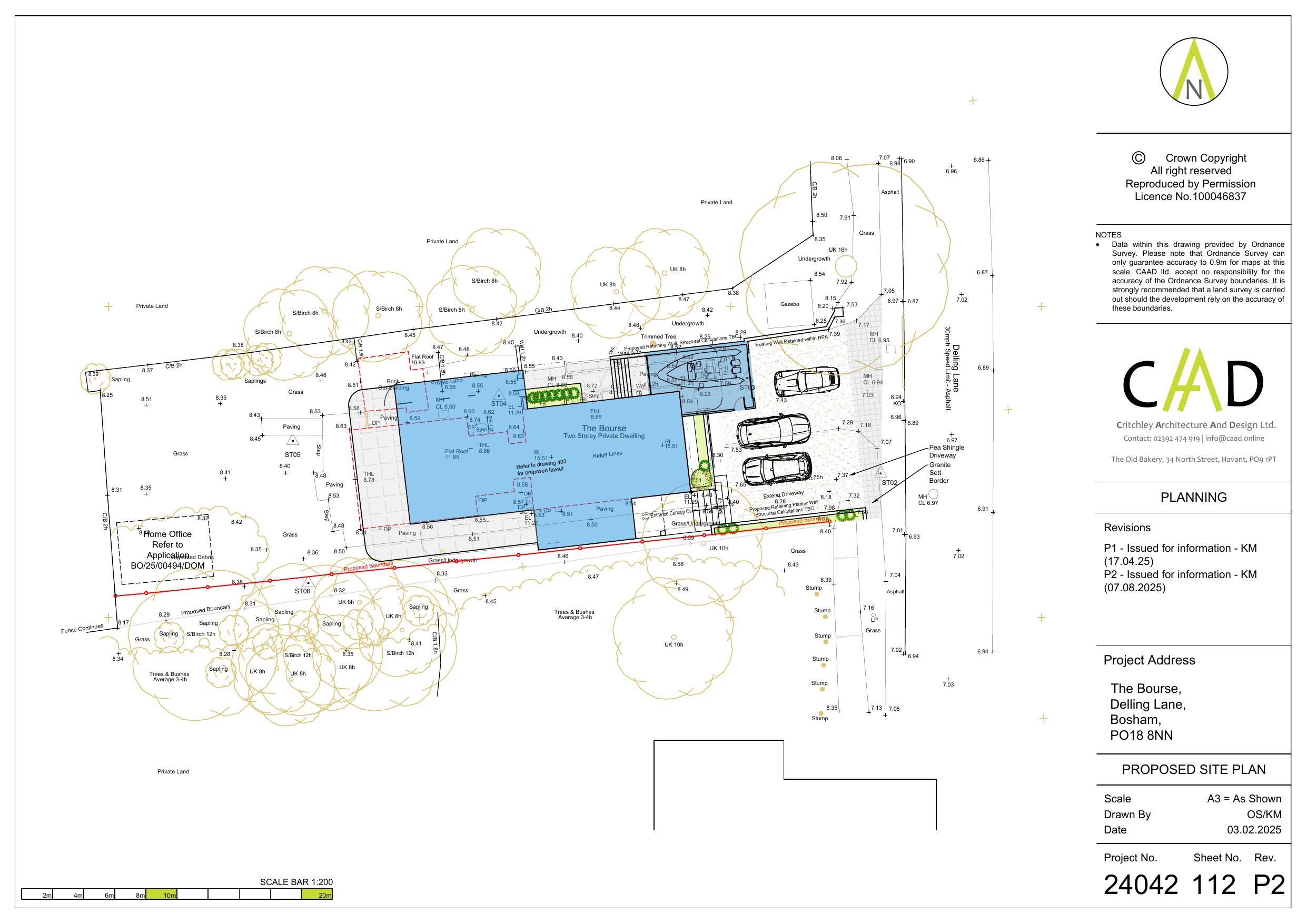
SITE AND BLOCK PLAN
Plan - Decided
Not archived · Council Link
VALIDATION EMAIL 23.09
Correspondence
Not archived · Council Link

Take Action

Make your voice heard. Authorities need to hear from people who support new homes.

✉️ Write Email in Support View on Council Portal