← Back to Chichester District Council

Status

Permit House extension
Received
20 Aug 2025
New dwellings
0

Full Proposal

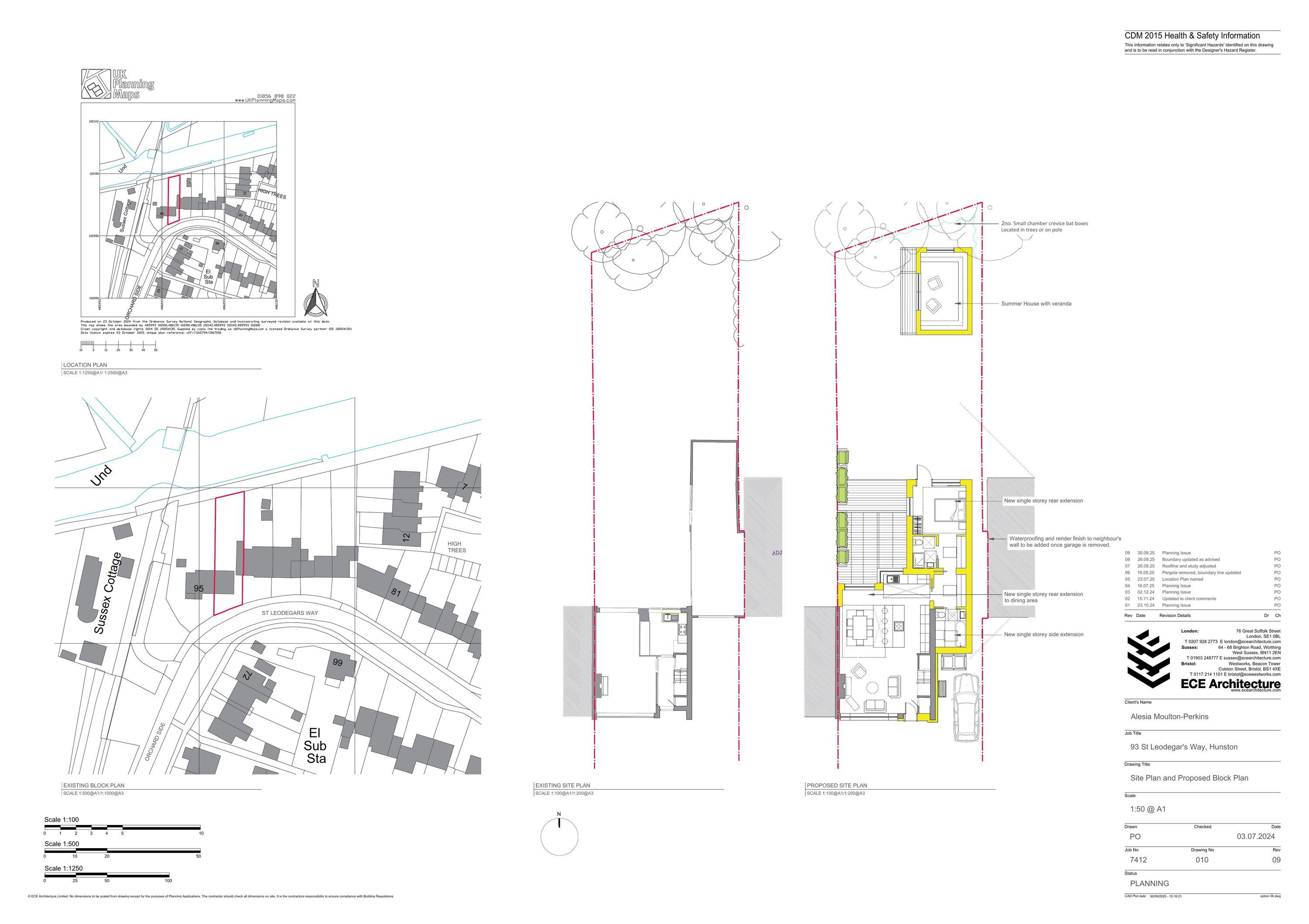
Replace garage with single storey rear and side extensions, external alterations including cladding to all elevations, air source heat pump, photovoltaic panels, and a summer house.

Documents

APPLICATION FORM
Application Form
Not archived · Council Link
APPLICATION FORM
Application Form
Not archived · Council Link
CDC ARCHAEOLOGY OFFICER
Consultee Comment
Not archived · Council Link
CDC ENVIRONMENTAL PROTECTION
Consultee Comment
Not archived · Council Link
CDC ENVIRONMENTAL STRATEGY
Consultee Comment
Not archived · Council Link
CONFIRMATION FOR CHANGE OF DESCRIPTION
Correspondence
Not archived · Council Link
Correspondence
Correspondence
Not archived · Council Link
CORRESPONDENCE FROM APPLICANT 25.09.25
Correspondence
Not archived · Council Link
Decision Notice
Decision Notice
Not archived · Council Link
Delegated Report
Delegated Report
Not archived · Council Link
EMERGENCE SURVEY REPORT BATS
Application Documents
Not archived · Council Link
EXISTING ELEVATIONS
Plan - Under Consideration
Not archived · Council Link
EXISTING FLOOR PLANS
Plan - Under Consideration
Not archived · Council Link
EXTENSION OF TIME AGREED 03.10.2025
Correspondence
Not archived · Council Link
PRELIMINARY BAT ROOST ASSESSMENT
Application Documents
Not archived · Council Link
PROPOSED ELEVATIONS
Plan - Decided
Not archived · Council Link
PROPOSED ELEVATIONS
Plan - Superseded
Not archived · Council Link
PROPOSED ELEVATIONS
Plan - Superseded
Not archived · Council Link
PROPOSED FIRST AND LOFT FLOOR
Plan - Decided
Not archived · Council Link
PROPOSED FIRST FLOOR AND ROOF PLANS
Plan - Superseded
Not archived · Council Link
PROPOSED GROUND FLOOR
Plan - Superseded
Not archived · Council Link
PROPOSED GROUND FLOOR PLANS
Plan - Superseded
Not archived · Council Link
PROPOSED GROUND FLOOR PLANS
Plan - Decided
Not archived · Council Link
PUBLIC COMMENT
Objection Comment
Not archived · Council Link
PUBLIC COMMENT
Third Party Other
Not archived · Council Link
PUBLIC COMMENT
Support Comment
Not archived · Council Link
PUBLIC COMMENT 29/09/2025
Support Comment
Not archived · Council Link
Plan - Superseded
Archived · Council Link
Plan - Superseded
Archived · Council Link
Plan - Decided
Archived · Council Link
Plan - Superseded
Archived · Council Link
WEST SUSSEX FIRE AND RESCUE SERVICE
Consultee Comment
Not archived · Council Link
WSCC ? HIGHWAYS
Consultee Comment
Not archived · Council Link

Take Action

Make your voice heard. Authorities need to hear from people who support new homes.

✉️ Write Email in Support View on Council Portal