← Back to Chichester District Council

Status

Permit Demolition
Received
05 Sep 2025
New dwellings
0

Full Proposal

Demolition of the existing dwelling and garage. Construction of a replacement dwelling and associated works.

Documents

APPLICATION FORM
Application Form
Not archived · Council Link
ARBORICULTURAL IMPACT ASSESSMENT AND METHOD STATEMENT
Application Documents
Not archived · Council Link
CDC ARCHAEOLOGY OFFICER
Consultee Comment
Not archived · Council Link
CDC COUNCILLOR S QUAIL 11.09.2025
Objection Comment
Not archived · Council Link
CDC ENVIRONMENTAL STRATEGY UNIT
Consultee Comment
Not archived · Council Link
COASTAL AND DRAINAGE ENGINEER
Consultee Comment
Not archived · Council Link
Correspondence
Correspondence
Not archived · Council Link
Decision Notice
Decision Notice
Not archived · Council Link
Delegated Report
Delegated Report
Not archived · Council Link
DESIGN AND ACCESS STATEMENT INCLUDING FLOOD RISK ASSESSMENT
Application Documents
Not archived · Council Link
ECOLOGICAL IMPACT ASSESSMENT
Application Documents
Not archived · Council Link
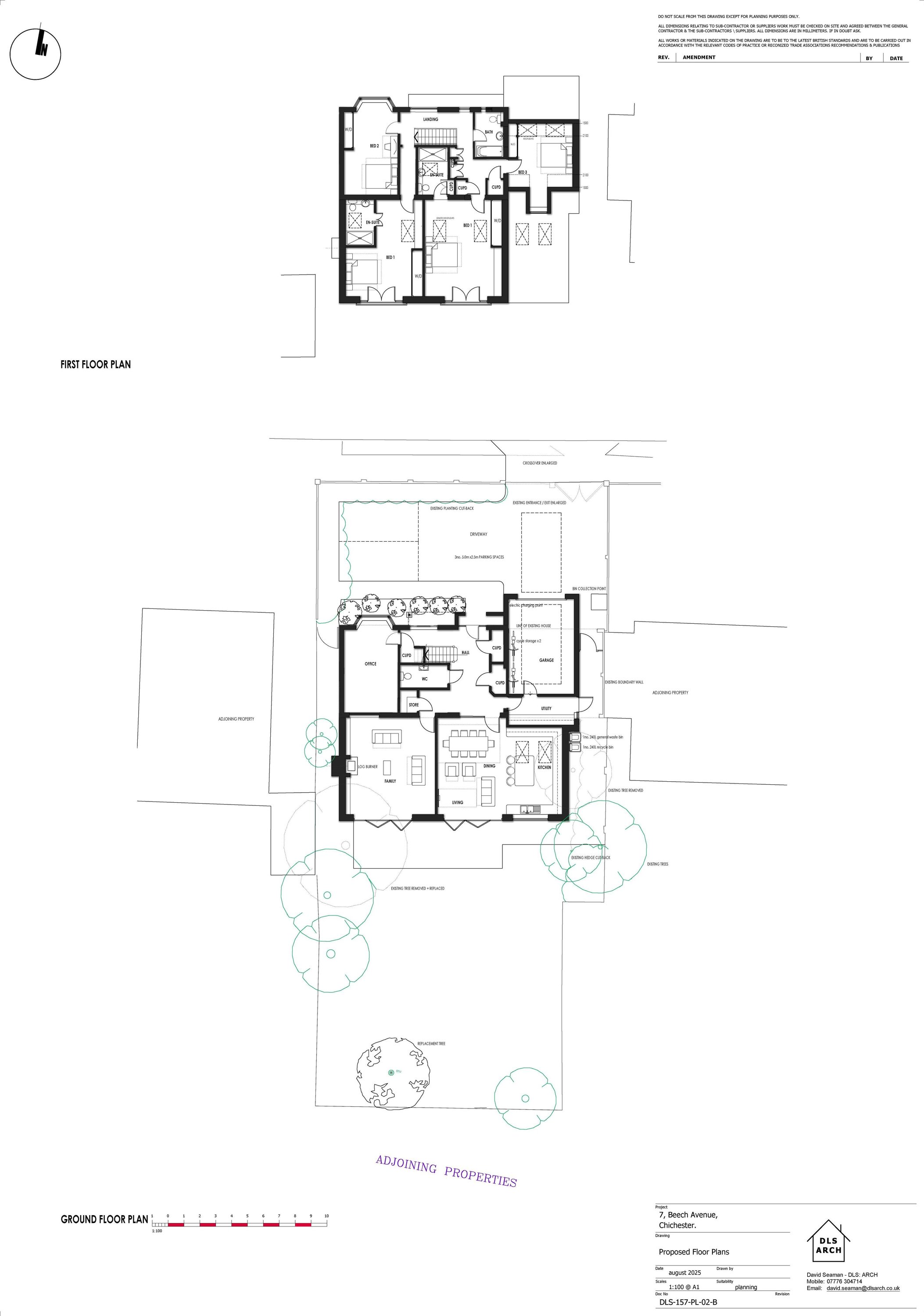
EXISTING ELEVATIONS
Plan - Under Consideration
Not archived · Council Link
EXISTING FIRST FLOOR PLAN
Plan - Under Consideration
Not archived · Council Link
EXISTING ROOF PLANS
Plan - Under Consideration
Not archived · Council Link
EXISTING TOPOGRAPHICAL SURVEY
Plan - Under Consideration
Not archived · Council Link
EXISTING TREE SCHEDULE
Application Documents
Not archived · Council Link
HABITATS REGULATION ASSESSMENT ? SCREENING MATRIX
Application Documents
Not archived · Council Link
PLANNING STATEMENT (INCLUDING PHOTO MONTAGE)
Application Documents
Not archived · Council Link
PROPOSED ELEVATIONS
Plan - Decided
Not archived · Council Link
Plan - Decided
Archived · Council Link
PUBLIC COMMENT
Support Comment
Not archived · Council Link
PUBLIC COMMENT 14.10.2025
Support Comment
Not archived · Council Link
SITE LOCATION AND BLOCK PLAN. PROPOSED SITE/ROOF PLAN
Plan - Decided
Not archived · Council Link
SUDS AND DRAINAGE STATEMENT
Application Documents
Not archived · Council Link
SUPERSEDED PROPOSED ELEVATIONS
Plan - Superseded
Not archived · Council Link
Plan - Superseded
Archived · Council Link
SUPERSEDED SITE LOCATION AND BLOCK PLAN. PROPOSED SITE/ROOF PLAN
Plan - Superseded
Not archived · Council Link
SUSTAINABLE CONSTRUCTION AND DESIGN STATEMENT
Application Documents
Not archived · Council Link
THE CHICHESTER SOCIETY
Correspondence
Not archived · Council Link
TREE CONSTRAINTS PLAN
Plan - Under Consideration
Not archived · Council Link
TREE RETENTION AND PROTECTION PLAN
Plan - Under Consideration
Not archived · Council Link
WSCC HIGHWAYS
Consultee Comment
Not archived · Council Link

Take Action

Make your voice heard. Authorities need to hear from people who support new homes.

✉️ Write Email in Support View on Council Portal