← Back to Chichester District Council

Status

Application Permitted with S106(PER106) New housing
Received
08 Oct 2025
New dwellings
2

Summary

Demolish greenhouse/piggery/battery buildings and erect two dwellings as alternative to Class Q approvals.

Full Proposal

Demolition of greenhouse, piggery and battery buildings and erection of 2no dwellings as alternative to Class Q approvals SI/23/02600/PA3Q and SI/24/00826/PA3Q.

Documents

APPLICATION FORM
Application Form
Not archived · Council Link
BAT EMERGENCE SURVEY AND REPORT
Application Documents
Not archived · Council Link
BAT SCOPING REPORT AND PRELIMINARY ECOLOGICAL APPRAISAL
Application Documents
Not archived · Council Link
BIRD DISTURBANCE AND NITRATES STATEMENT
Application Documents
Not archived · Council Link
BLOCK PLAN
Plan - Decided
Not archived · Council Link
CDC ENVIRONMENTAL PROTECTION
Consultee Comment
Not archived · Council Link
COASTAL PARTNERS
Consultee Comment
Not archived · Council Link
Correspondence
Correspondence
Not archived · Council Link
CYCLE STORE
Plan - Under Consideration
Not archived · Council Link
Decision Notice
Decision Notice
Not archived · Council Link
Delegated Report
Delegated Report
Not archived · Council Link
DESIGN AND ACCESS STATEMENT
Application Documents
Not archived · Council Link
EXISTING FLOOR PLAN AND ELEVATION
Plan - Under Consideration
Not archived · Council Link
EXISTING FLOOR PLAN AND ELEVATIONS
Plan - Under Consideration
Not archived · Council Link
FOUL DRAINAGE AND WATER SURFACE STATEMENTS
Application Documents
Not archived · Council Link
GREENHOUSE
Plan - Under Consideration
Not archived · Council Link
HABITAT REGULATION ASSESSMENT (HRA) SCREENING MATRIX AND APPROPRIATE ASSESSMENT STATEMENT
Application Documents
Not archived · Council Link
HABITATS REGULATION ASSESSMENT ? SCREENING MATRIX
Application Documents
Not archived · Council Link
LOCATION PLAN
Plan - Decided
Not archived · Council Link
PROPOSED ELEVATIONS
Plan - Decided
Not archived · Council Link
PROPOSED ELEVATIONS
Plan - Decided
Not archived · Council Link
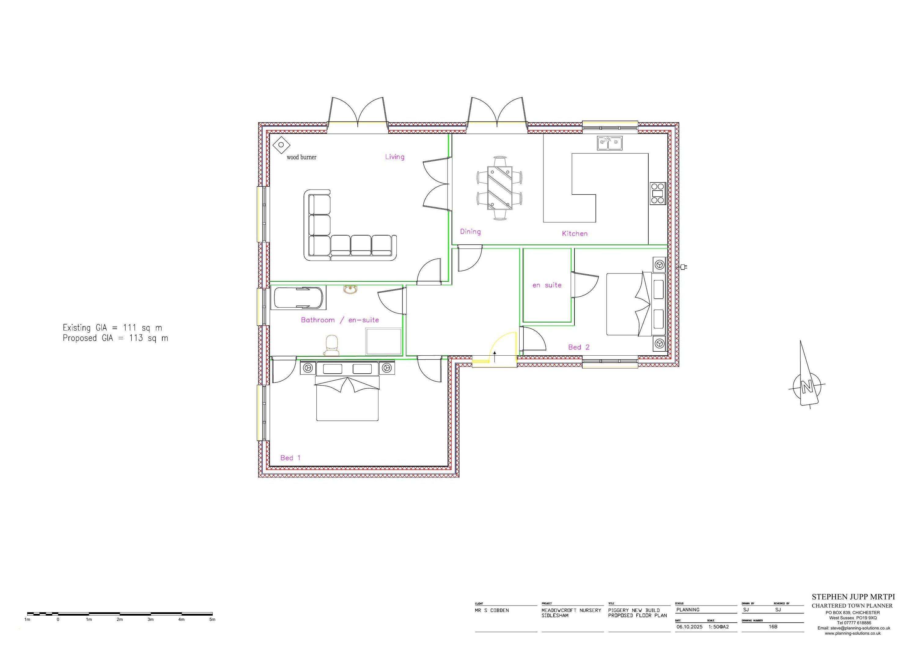
PROPOSED FLOOR PLAN
Plan - Decided
Not archived · Council Link
Plan - Decided
Archived · Council Link
Plan - Decided
Archived · Council Link
SIDLESHAM PARISH COUNCIL
Parish Comments
Not archived · Council Link
SUSTAINABILITY STATEMENT
Application Documents
Not archived · Council Link
UNILATERAL UNDERTAKING DATED 7TH DECEMBER 2025
Legal Agreement
Not archived · Council Link
WSCC HIGHWAYS 12/11/2025
Consultee Comment
Not archived · Council Link
WSCC LEAD LOCAL FLOOD AUTHORITY
Consultee Comment
Not archived · Council Link

Take Action

Make your voice heard. Authorities need to hear from people who support new homes.

✉️ Write Email in Support View on Council Portal