← Back to Chichester District Council

Status

Pending Consideration New housing
Received
20 Oct 2025
New dwellings
2

Summary

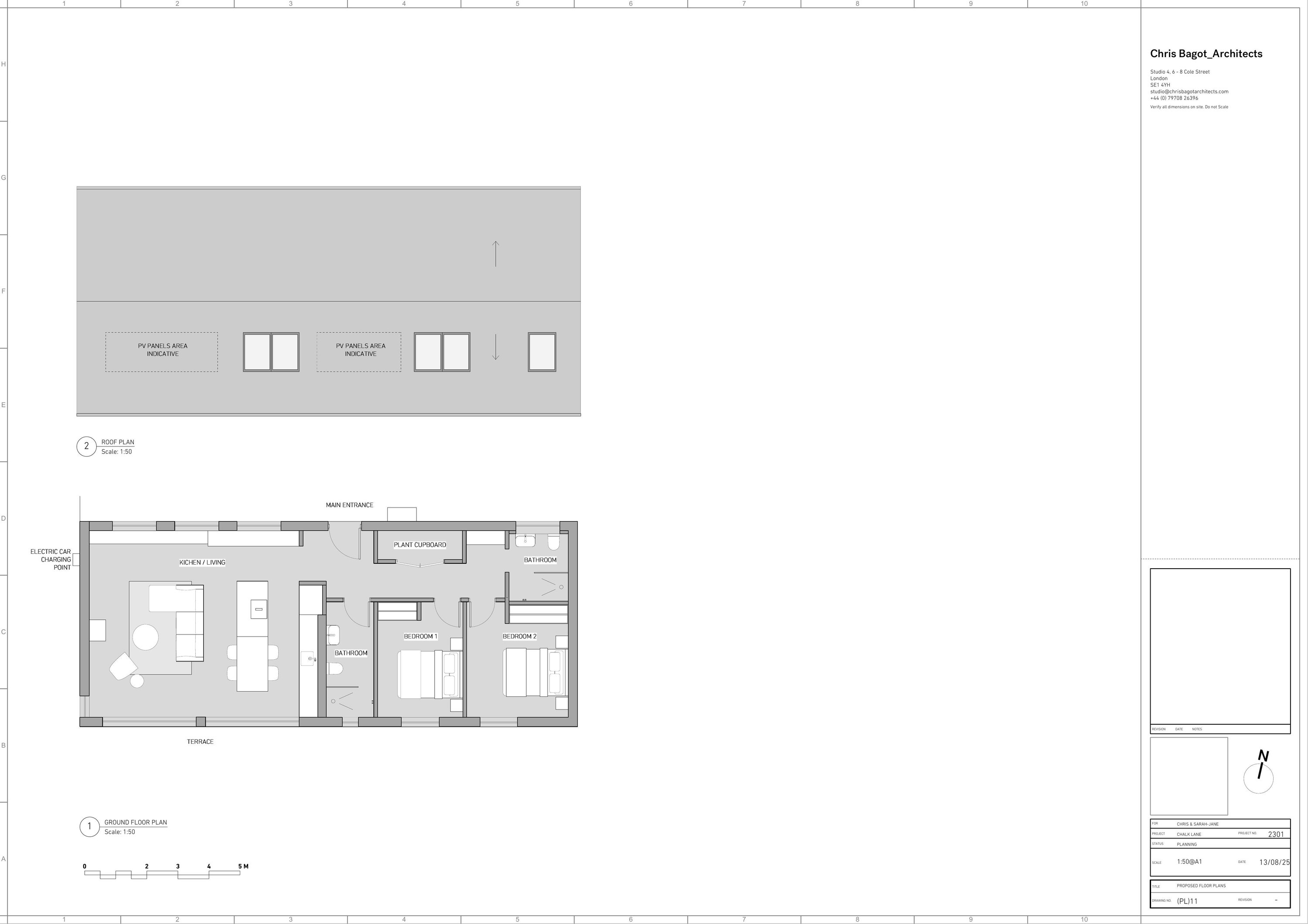
Demolish three agricultural buildings; erect two detached dwellings.

Full Proposal

Demolition of three existing agricultural buildings and erection of 2 no. detached dwellings (alternative to 23/02909/PNO3, SI/23/01141/PA3Q and SI/23/00475/PA3Q).

Documents

APPLICATION FORM
Application Form
Not archived · Council Link
BIODIVERSITY IMPACT CALCULATION
Application Documents
Not archived · Council Link
BIODIVERSITY IMPACT CALCULATION REPORT
Application Documents
Not archived · Council Link
BNG METRIC
Application Documents
Not archived · Council Link
CDC ENVIRONMENTAL STRATEGY UNIT
Consultee Comment
Not archived · Council Link
CDC SENIOR ENVIRONMENTAL HEALTH OFFICER
Consultee Comment
Not archived · Council Link
Correspondence
Correspondence
Not archived · Council Link
DESIGN AND ACCESS STATEMENT
Application Documents
Not archived · Council Link
DRAINAGE STATEMENT
Application Documents
Not archived · Council Link
ECOLOGICAL APPRAISAL
Application Documents
Not archived · Council Link
ENVIRONMENT AGENCY
Consultee Comment
Not archived · Council Link
EXISTING ELEVATIONS (PIGGERY, BATTERY, NISSEN SHED)
Plan - Under Consideration
Not archived · Council Link
EXISTING ELEVATIONS 2 (PIGGERY, BATTERY, NISSEN SHED)
Plan - Under Consideration
Not archived · Council Link
EXISTING GROUND FLOOR PLAN
Plan - Under Consideration
Not archived · Council Link
EXISTING ROOF PLAN
Plan - Under Consideration
Not archived · Council Link
EXISTING SITE ELEVATION
Plan - Under Consideration
Not archived · Council Link
Plan - Under Consideration
Archived · Council Link
Plan - Under Consideration
Archived · Council Link
FLOOD RISK ASSESSMENT
Application Documents
Not archived · Council Link
HBC COASTAL PARTNERS
Consultee Comment
Not archived · Council Link
HIGHWAYS, WSCC
Consultee Comment
Not archived · Council Link
HRA SCREENING
Application Documents
Not archived · Council Link
LOCATION PLAN
Plan - Under Consideration
Not archived · Council Link
LOCATION PLAN
Plan - Superseded
Not archived · Council Link
PLANNING STATEMENT INCLUDING HRA SPA
Application Documents
Not archived · Council Link
PROPOSED BIKE AND BIN STORE
Plan - Under Consideration
Not archived · Council Link
PROPOSED ELEVATIONS
Plan - Under Consideration
Not archived · Council Link
Plan - Under Consideration
Archived · Council Link
PROPOSED SITE ELEVATION
Plan - Under Consideration
Not archived · Council Link
PROPOSED SITE ELEVATION
Plan - Under Consideration
Not archived · Council Link
Plan - Superseded
Archived · Council Link
Plan - Under Consideration
Archived · Council Link
SIDLESHAM PARISH COUNCIL
Parish Comments
Not archived · Council Link
SIDLESHAM PARISH COUNCIL ADDITIONAL COMMENT
Parish Comments
Not archived · Council Link
SITE PHOTOS
Photograph
Not archived · Council Link
SUSTAINABILITY STATEMENT
Application Documents
Not archived · Council Link
WSCC CHILDREN FIRST 01.12.25
Consultee Comment
Not archived · Council Link

Take Action

Make your voice heard. Authorities need to hear from people who support new homes.

✉️ Write Email in Support View on Council Portal