← Back to Chichester District Council

Status

Pending Consideration House extension
Received
Last month
New dwellings
0

Full Proposal

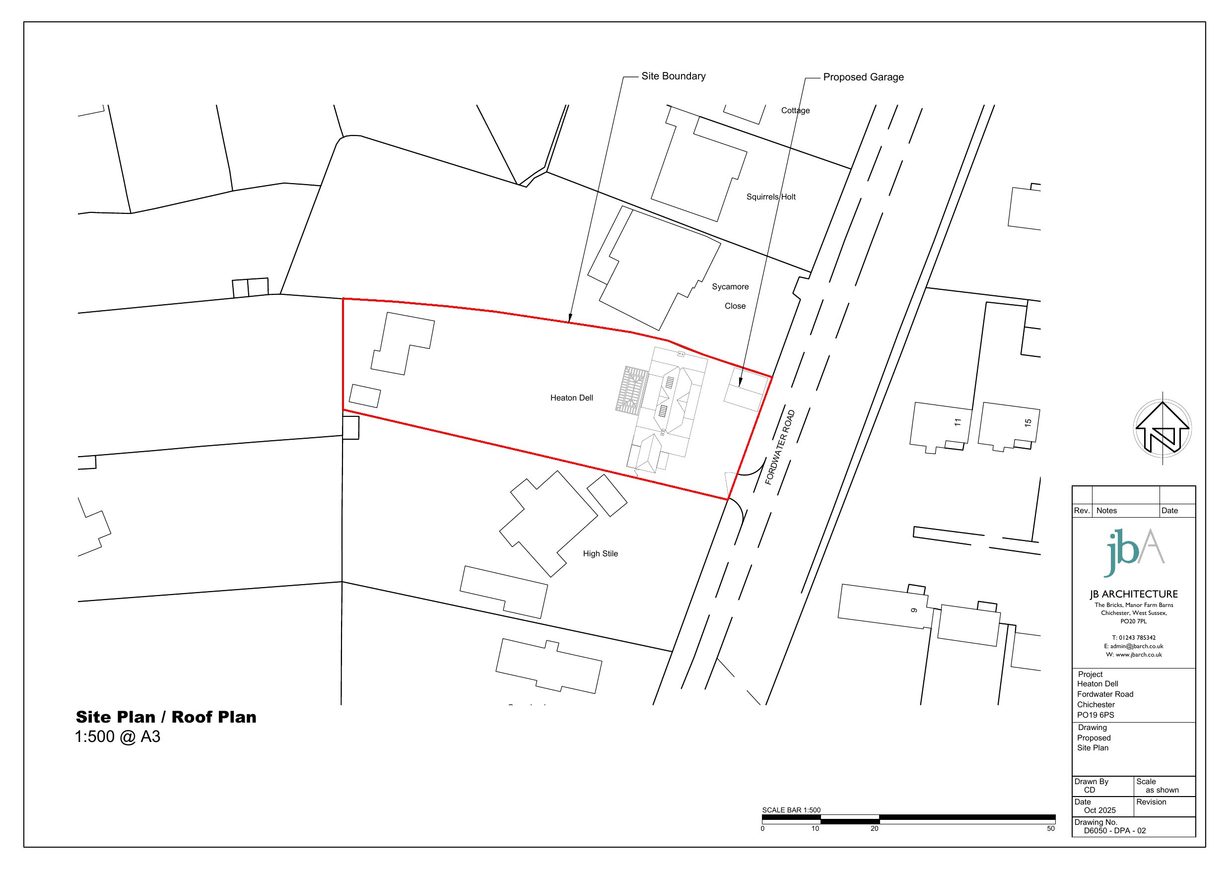
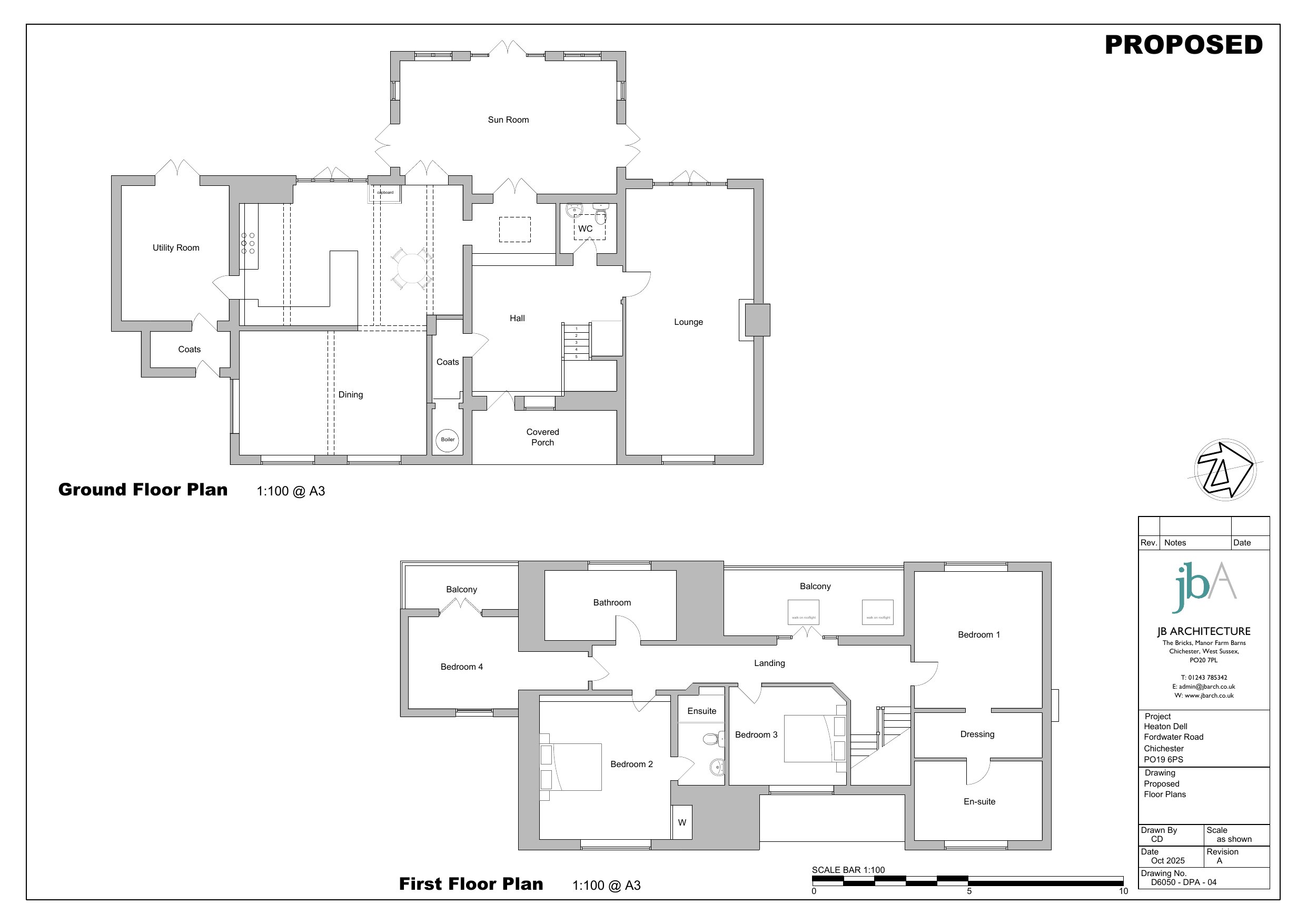
Relocation of permitted garage and fenestration changes to main dwelling.

Documents

APPLICATION FORM
Application Form
Not archived · Council Link
Correspondence
Correspondence
Not archived · Council Link
Correspondence
Correspondence
Not archived · Council Link
EXISTING AND PROPOSED ELEVATIONS PROPOSED GARAGE
Plan - Under Consideration
Not archived · Council Link
EXISTING ELEVATIONS
Plan - Under Consideration
Not archived · Council Link
EXISTING FLOOR PLANS
Plan - Under Consideration
Not archived · Council Link
Plan - Under Consideration
Archived · Council Link
PROPOSED ELEVATIONS
Plan - Under Consideration
Not archived · Council Link
Plan - Under Consideration
Archived · Council Link
Plan - Under Consideration
Archived · Council Link

Take Action

Make your voice heard. Authorities need to hear from people who support new homes.

✉️ Write Email in Support View on Council Portal