← Back to Chorley Council

Status

Granted Change of use
Received
04 Mar 2025
New dwellings
0

Summary

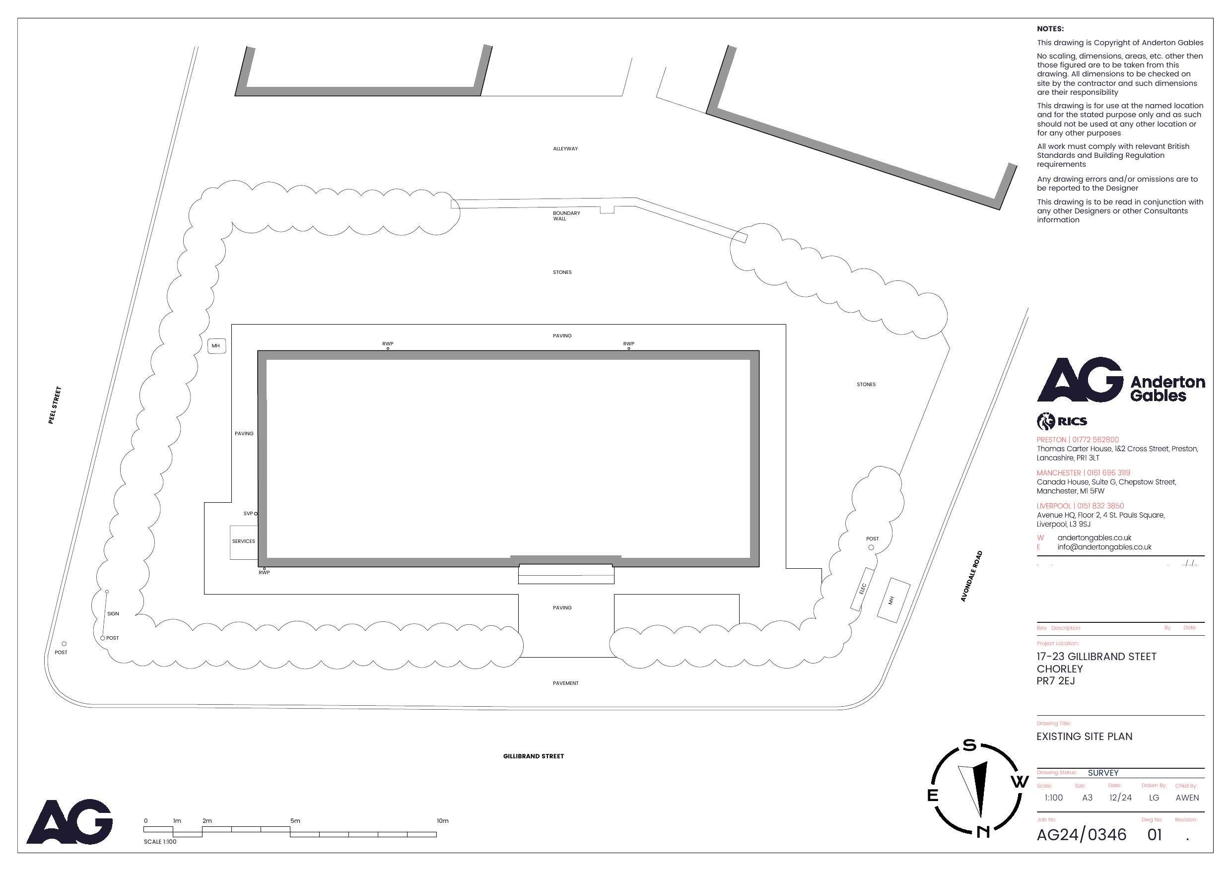
Change of offices (Nos.17–23 Gillibrand Street) to temporary living accommodation with external works.

Full Proposal

Change of use of nos. 17 to 23 Gillibrand Street from offices to temporary living accommodation along with associated external works, demolition of a wall and erection of boundary fence and gates

Documents

Site Location Plan
Archived · Council Link
02 EXISTING PLANS
Site Elevations, Building Plans etc.
Not archived · Council Link
03 EXISTING ELEVATIONS
Site Elevations, Building Plans etc.
Not archived · Council Link
04 EXISTING SECTION
Site Elevations, Building Plans etc.
Not archived · Council Link
Site Elevations, Building Plans etc.
Archived · Council Link
13B PROPOSED ELEVATIONS
Site Elevations, Building Plans etc.
Not archived · Council Link
ACKNOWLEDGEMENT LETTER
Correspondence
Not archived · Council Link
Amended Plans
Archived · Council Link
APPLICATION FORM
Planning File
Not archived · Council Link
AVAILABILITY CERTIFICATE BIODIVERSITY UNITS
Planning File
Not archived · Council Link
BIODIVERSITY GAIN PLAN
Planning File
Not archived · Council Link
BNG METRIC
Planning File
Not archived · Council Link
BNG PREDEVELOPMENT BASELINE
Planning File
Not archived · Council Link
COMMITTEE NOTIFICATION TO AGENT / APPL
Correspondence
Not archived · Council Link
CONSULTATION LETTER
Correspondence
Not archived · Council Link
CONSULTATION LETTER
Correspondence
Not archived · Council Link
CONSULTATION LETTER
Correspondence
Not archived · Council Link
CONSULTATION LETTER
Correspondence
Not archived · Council Link
CONSULTATION LETTER
Correspondence
Not archived · Council Link
CONSULTATION LETTER
Correspondence
Not archived · Council Link
DECISION - FULL PLANNING PERMISSION
Decision
Not archived · Council Link
DECISION - PLANNING PERMISSION (REG 3)
Decision
Not archived · Council Link
INVALID LETTER
Correspondence
Not archived · Council Link
LCC HIGHWAYS COMMENTS
Consultee Comment
Not archived · Council Link
LOCATION PLAN
Site Location Plan
Not archived · Council Link
NEIGHBOUR LETTER - INITIAL CONSULTATION
Correspondence
Not archived · Council Link
SITE NOTICE - PLANNING APPLICATIONS
Correspondence
Not archived · Council Link
SITE NOTICE - PLANNING APPLICATIONS
Correspondence
Not archived · Council Link
SITE NOTICE - PLANNING APPLICATIONS
Correspondence
Not archived · Council Link

Take Action

Make your voice heard. Authorities need to hear from people who support new homes.

✉️ Write Email in Support View on Council Portal