← Back to Chorley Council

Status

Awaiting decision New housing
Received
27 Oct 2025
New dwellings
1

Full Proposal

Erection of a two storey detached dwelling and associated works (resubmission of Ref: 14/00309/FUL)

Documents

ACKNOWLEDGEMENT LETTER
Correspondence
Not archived · Council Link
APPLICATIONFORMREDACTED
Planning Application (inc initial correspondence)
Not archived · Council Link
APPLICATIONFORMREDACTED.
Planning Application (inc initial correspondence)
Not archived · Council Link
CIL OFFICERS
Consultee Response
Not archived · Council Link
CONSULTATION LETTER
Correspondence
Not archived · Council Link
CONSULTATION LETTER
Correspondence
Not archived · Council Link
CONSULTATION LETTER
Correspondence
Not archived · Council Link
CONSULTATION LETTER
Correspondence
Not archived · Council Link
CONSULTATION LETTER
Correspondence
Not archived · Council Link
CONSULTATION LETTER
Correspondence
Not archived · Council Link
CONSULTATION LETTER
Correspondence
Not archived · Council Link
CONSULTATION LETTER
Correspondence
Not archived · Council Link
HIGHWAY COMMENTS 13.11.2025
Consultee Response
Not archived · Council Link
NEIGHBOUR LETTER - INITIAL CONSULTATION
Correspondence
Not archived · Council Link
PE.1947 - THE BUNGALOW - STATUTORY CALCULATION TOOL - 2025.
Report
Not archived · Council Link
PE.1947 - THE BUNGALOW - STATUTORY CONDITION ASSESSMENT - 2025.
Report
Not archived · Council Link
PEA AND BNG ASSESSMENT
Report
Not archived · Council Link
PLANNING STATEMENT
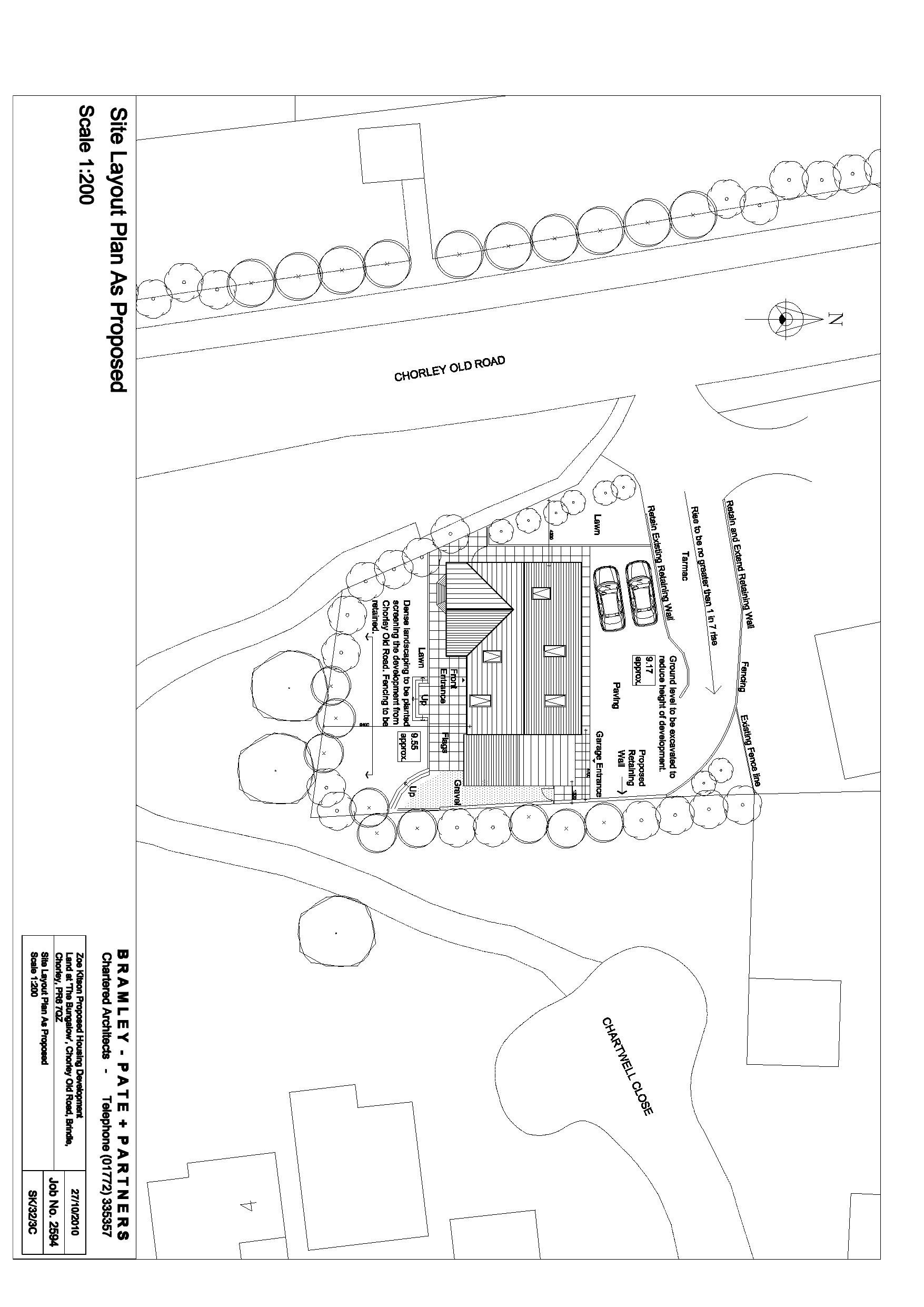
Site Elevations, Building Plans etc.
Not archived · Council Link
PROPOSED ELEVATIONS
Site Elevations, Building Plans etc.
Not archived · Council Link
Site Elevations, Building Plans etc.
Archived · Council Link
Site Elevations, Building Plans etc.
Archived · Council Link
Site Location Plan
Archived · Council Link
SITE NOTICE - PLANNING APPLICATIONS
Correspondence
Not archived · Council Link
UNITED UTILITIES
Consultee Response
Not archived · Council Link

Take Action

Make your voice heard. Authorities need to hear from people who support new homes.

✉️ Write Email in Support View on Council Portal