← Back to Chorley Council

Status

Awaiting decision New housing
Received
03 Nov 2025
New dwellings
1

Full Proposal

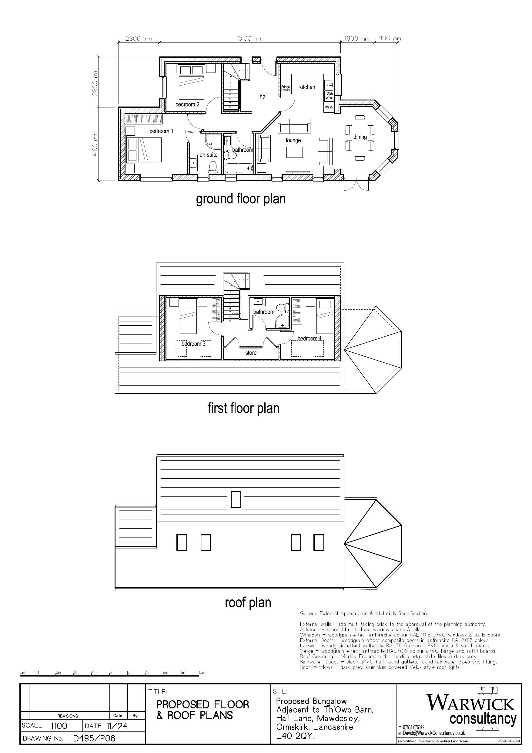
Construction of a new dwelling and detached single garage within the domestic curtilage of the existing dwelling, together with associated external works.

Documents

ACKNOWLEDGEMENT LETTER
Correspondence
Not archived · Council Link
APPLICATIONFORMREDACTED
Planning Application (inc initial correspondence)
Not archived · Council Link
CIL OFFICERS
Consultee Response
Not archived · Council Link
CONSULTATION LETTER
Correspondence
Not archived · Council Link
CONSULTATION LETTER
Correspondence
Not archived · Council Link
CONSULTATION LETTER
Correspondence
Not archived · Council Link
CONSULTATION LETTER
Correspondence
Not archived · Council Link
CONSULTATION LETTER
Correspondence
Not archived · Council Link
CONSULTATION LETTER
Correspondence
Not archived · Council Link
D485 CIL FORM_1_CIL_ADDITIONAL_INFORMATION
Planning Application (inc initial correspondence)
Not archived · Council Link
D485 ECOLOGY BNG ASSESSMENT
Planning Application (inc initial correspondence)
Not archived · Council Link
D485 STATEMENT
Planning Application (inc initial correspondence)
Not archived · Council Link
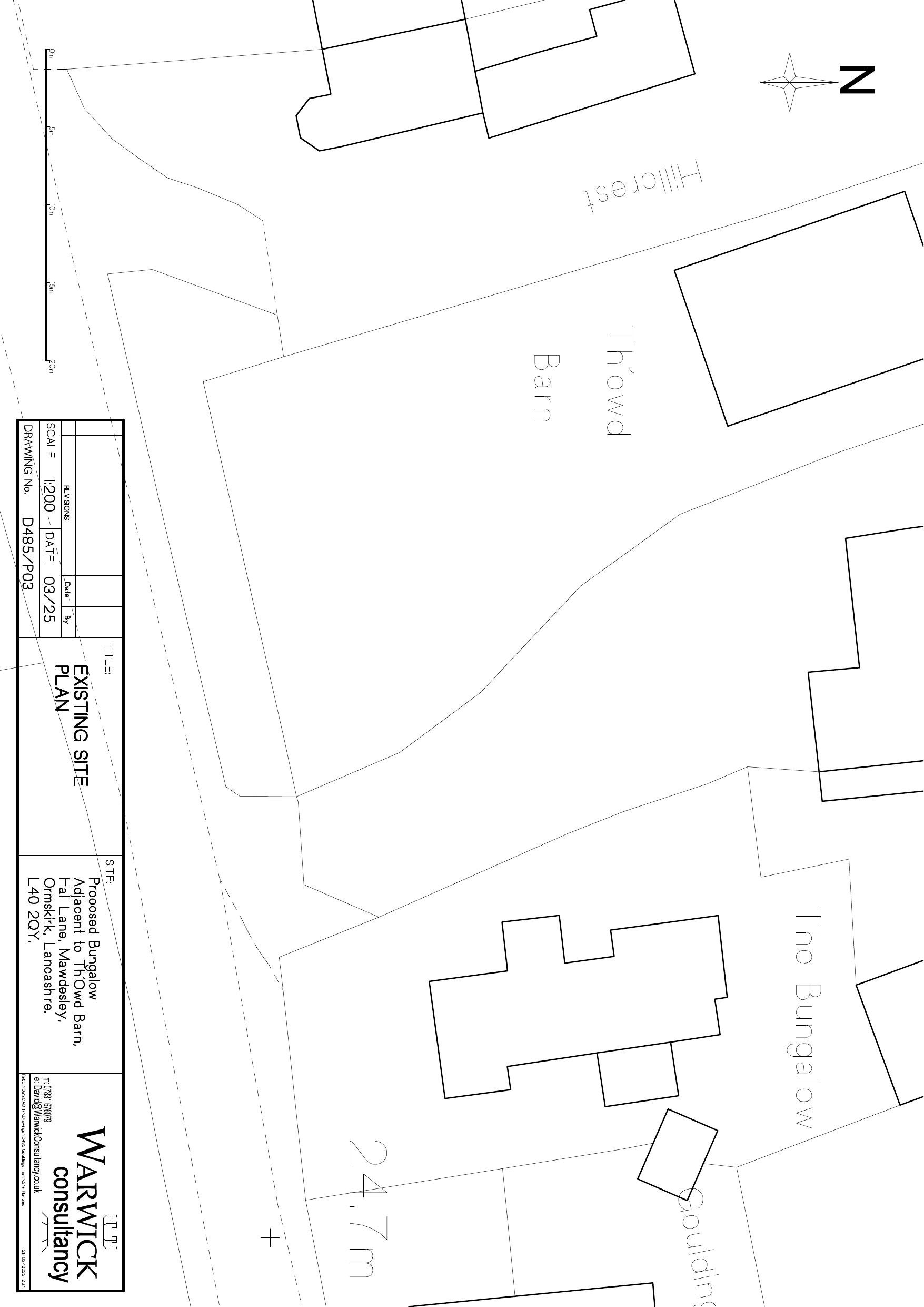
EXISTING BLOCK PLAN
Planning Application (inc initial correspondence)
Not archived · Council Link
Planning Application (inc initial correspondence)
Archived · Council Link
LCC HIGHWAYS
Consultee Response
Not archived · Council Link
LOCATION PLAN
Site Location Plan
Not archived · Council Link
NEIGHBOUR LETTER - INITIAL CONSULTATION
Correspondence
Not archived · Council Link
ONLINE COMMENT
Public Comment
Not archived · Council Link
ONLINE COMMENT
Public Comment
Not archived · Council Link
PARISH COUNCIL
Consultee Response
Not archived · Council Link
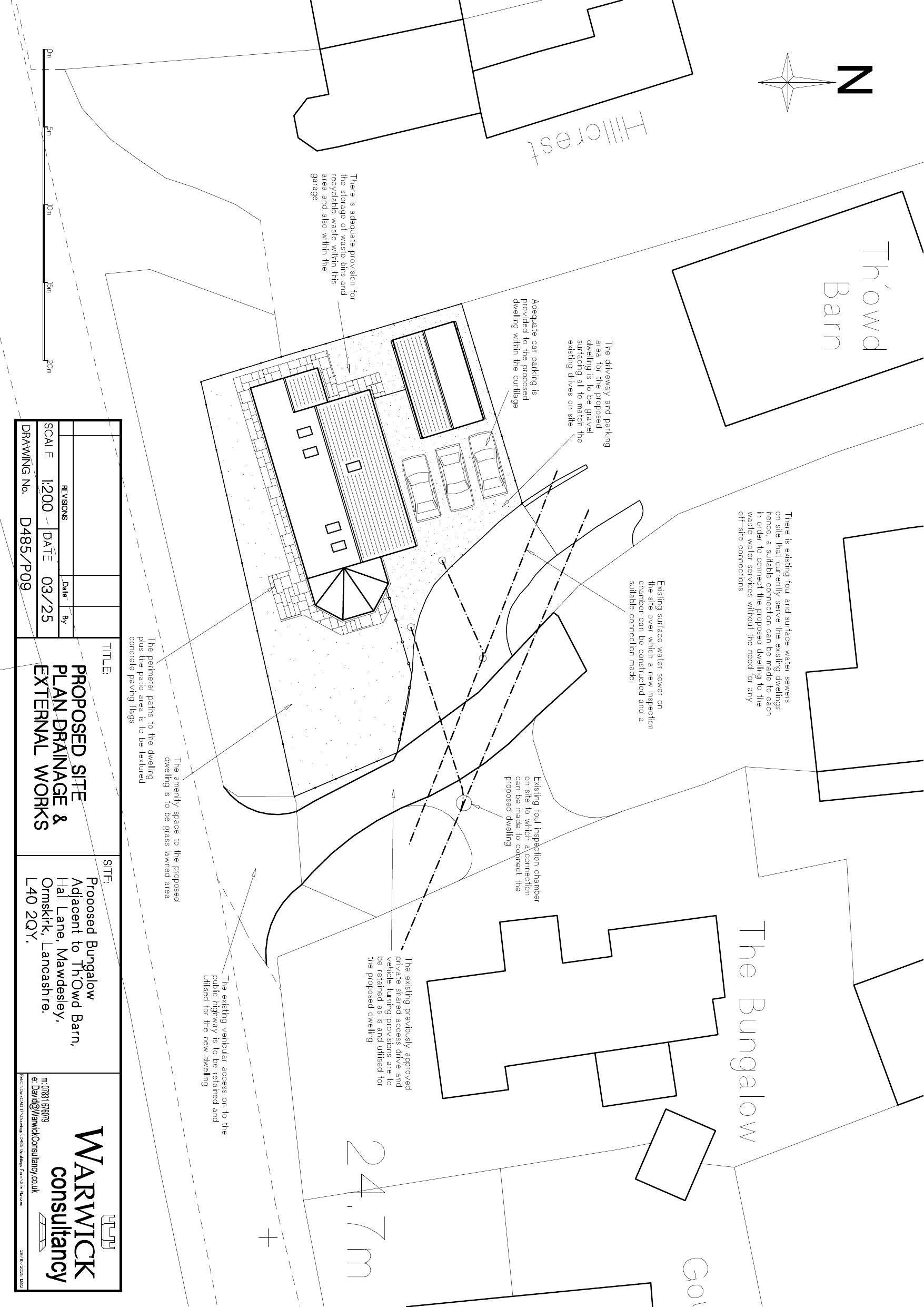
PROPOSED BLOCK PLAN
Site Location Plan
Not archived · Council Link
PROPOSED ELEVATIONS
Planning Application (inc initial correspondence)
Not archived · Council Link
Planning Application (inc initial correspondence)
Archived · Council Link
PROPOSED GARAGE
Planning Application (inc initial correspondence)
Not archived · Council Link
Site Location Plan
Archived · Council Link
Site Location Plan
Archived · Council Link
SITE NOTICE - PLANNING APPLICATIONS
Correspondence
Not archived · Council Link

Take Action

Make your voice heard. Authorities need to hear from people who support new homes.

✉️ Write Email in Support View on Council Portal