← Back to Cornwall Council

Status

Awaiting decision New housing
Received
n/a
New dwellings
4

Summary

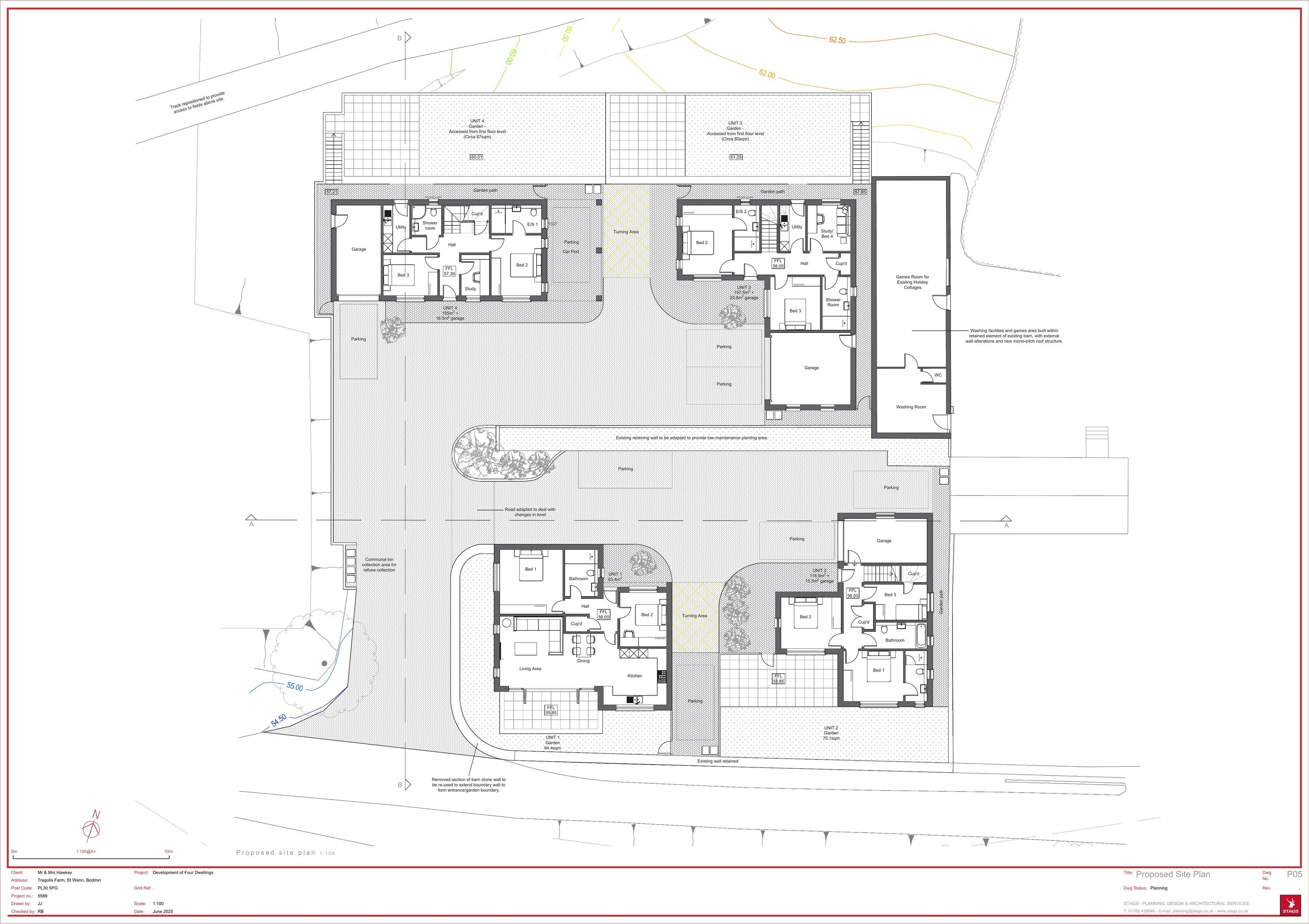
Demolition and construction of four houses; retained building altered for incidental holiday accommodation.

Full Proposal

Demolition of existing buildings and construction of four houses, alongside the retention and alteration of a retained building and change of use to incidental accommodation to holiday let cottages.

Documents

APPLICATION FORM
Application Form
Not archived · Council Link
BIODIVERSITY NET GAIN ASSESSMENT
Biodiversity Net Gain
Not archived · Council Link
BNG METRIC CALCULATION TOOL
Biodiversity Net Gain
Not archived · Council Link
ECOLOGY AND GEOLOGY TRIGGER FORM
Ecology Report Trigger Table
Not archived · Council Link
ECOLOGY ASSESSMENT
Assessment - Ecological
Not archived · Council Link
ENERGY STATEMENT
Energy Report
Not archived · Council Link
ENERGY SUMMARY TOOL
Energy Summary Tool
Not archived · Council Link
EXISTING ELEVATIONS
Plan - Existing Elevations
Not archived · Council Link
EXISTING FLOOR PLAN
Plan - Existing Floor
Not archived · Council Link
EXISTING SITE LOCATION AND BLOCK PLAN
Plan - Site Location
Not archived · Council Link
Plan - Existing Block
Archived · Council Link
FOUL DRAINAGE FORM
Assessment - Foul Drainage
Not archived · Council Link
GREEN INFRASTRUCTURE STATEMENT
Statement - Green Infrastructure
Not archived · Council Link
NATURAL ENGLAND
Representations Received
Not archived · Council Link
NATURAL ENGLAND - SUPPORTING INFORMATION
Representations Received
Not archived · Council Link
NATURAL ENGLAND - SUPPORTING INFORMATION
Representations Received
Not archived · Council Link
NUTRIENT NEUTRALITY ASSESSMENT AND MITIGATION STRATEGY
Nutrient Neutrality Statement
Not archived · Council Link
PLANNING AND DESIGN STATEMENT
Statement - Design and Access
Not archived · Council Link
PROPOSED SECTION AA AND BB
Plan - Proposed
Not archived · Council Link
Plan - Proposed Block
Archived · Council Link
PROPOSED SITE ROOF PLAN
Plan - Roof
Not archived · Council Link
PROPOSED UNIT 1
Plan - Proposed Mixed
Not archived · Council Link
PROPOSED UNIT 2
Plan - Proposed Mixed
Not archived · Council Link
PROPOSED UNIT 3
Plan - Proposed Mixed
Not archived · Council Link
PROPOSED UNIT 4
Plan - Proposed Mixed
Not archived · Council Link
PROPOSED WASH AND PLAY ROOM
Plan - Proposed Mixed
Not archived · Council Link
SUSTAINABLE ENERGY PLAN
Plan - Other
Not archived · Council Link
View associated documents
External Link
Not archived · Council Link

Take Action

Make your voice heard. Authorities need to hear from people who support new homes.

✉️ Write Email in Support View on Council Portal