← Back to Cornwall Council

Status

Awaiting decision Change of use
Received
n/a
New dwellings
3

Summary

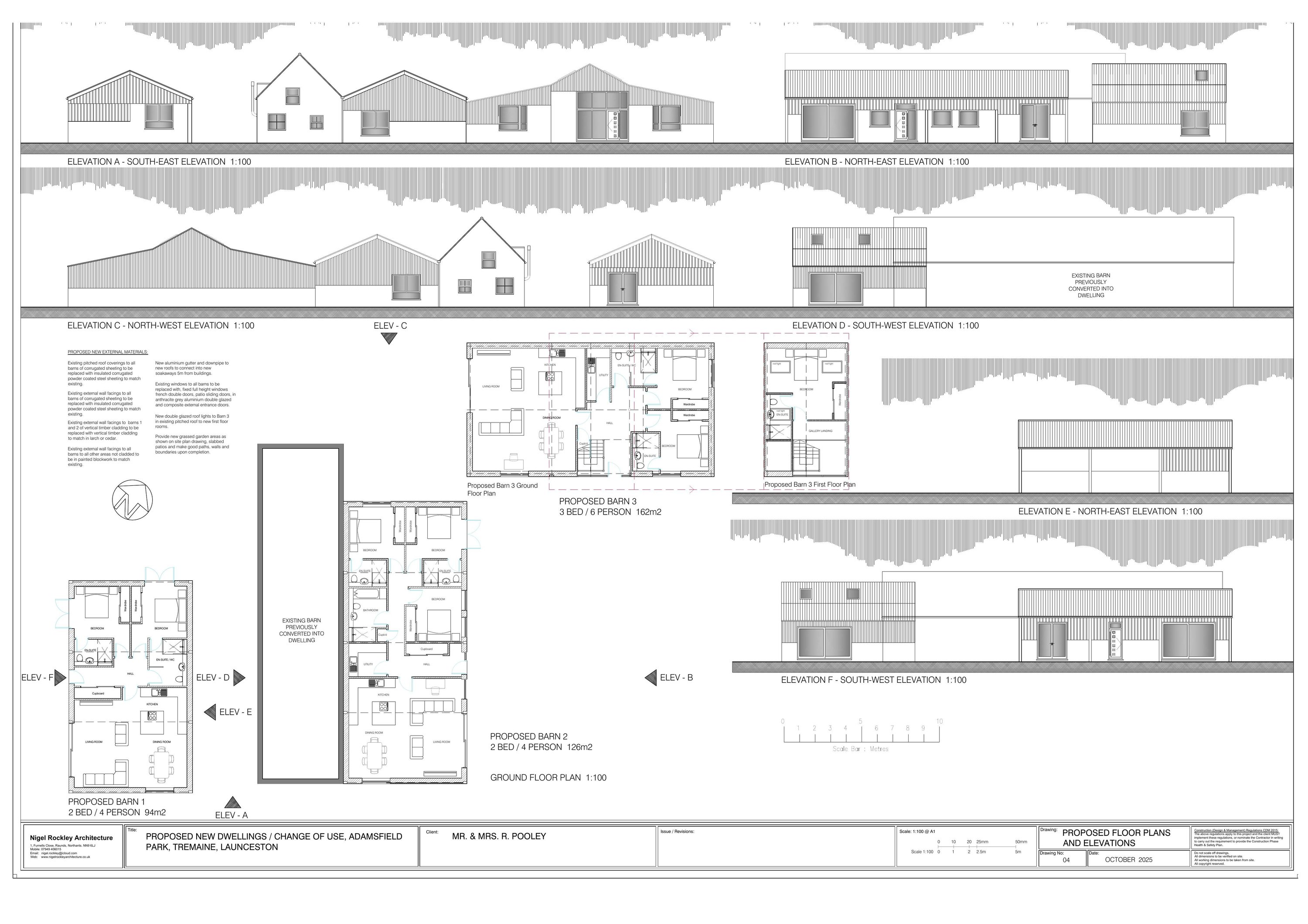
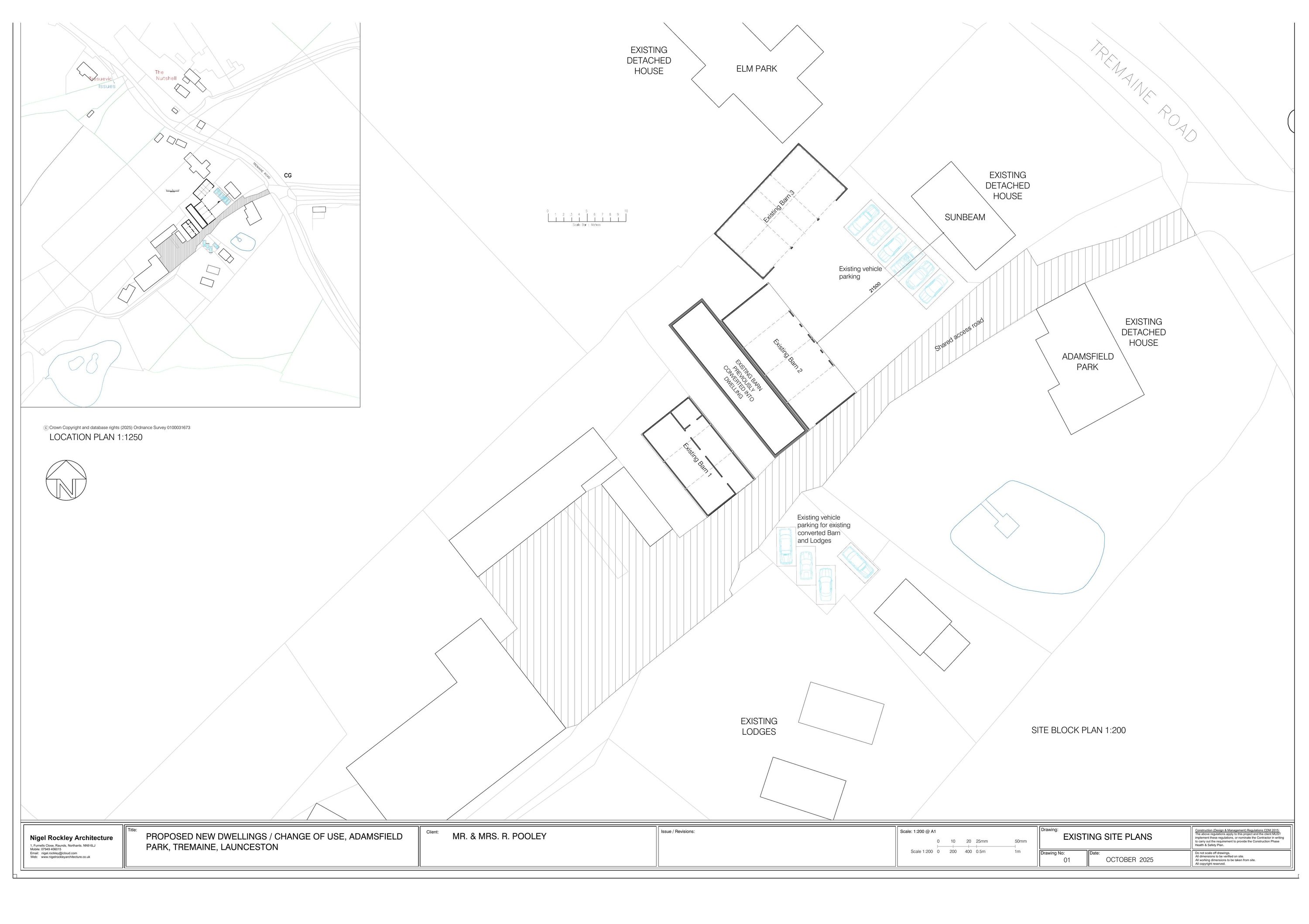
Prior approval to convert three agricultural barns into three dwellings with parking.

Full Proposal

Prior approval for the conversion of three existing agricultural barns into three dwellings with associated outdoor space and off road parking

Documents

APPLICATION FORM
Application Form
Not archived · Council Link
BAT AND BARN OWL ASSESSMENT
Bat and Barn Owl Survey
Not archived · Council Link
CLIMATE EMERGENCY COMPLIANCE FORM FOR HOUSEHOLDER APPLICATIONS
Energy Report
Not archived · Council Link
ECOLOGY REPORT TRIGGER TABLE
Ecology Report Trigger Table
Not archived · Council Link
EXISTING FLOOR PLANS AND ELEVATIONS
Plan - Existing Mixed
Not archived · Council Link
FLOOD MAP FOR PLANNING
Assessment - Flood Risk
Not archived · Council Link
FLOOD RISK ASSESSMENTS
Assessment - Flood Risk
Not archived · Council Link
Plan - Proposed Mixed
Archived · Council Link
STRUCTURAL SURVEY
Structural Survey/Structural Appraisal
Not archived · Council Link

Take Action

Make your voice heard. Authorities need to hear from people who support new homes.

✉️ Write Email in Support View on Council Portal