PA25/08315
Cornwall Council · IDOX
Status
Awaiting decision
New housing
Received
n/a
New dwellings
17
Summary
Demolish industrial building and erect 17 dwellings with estate roads, landscaping and biodiversity measures.
Full Proposal
Proposed demolition of existing industrial building and erection of 17 residential dwellings (4 affordable), estate roads, landscaping and biodiversity
Documents
APPENDIX 1 EXISTING UNIT 1 TROON ENERGY PERFORMANCE CERTIFICATE
Statement - Planning
Not archived
· Council Link
APPENDIX 1 EXISTING UNIT 2 TROON ENERGY PERFORMANCE CERTIFICATE
Statement - Planning
Not archived
· Council Link
APPENDIX 1 EXISTING UNIT 3A ENERGY PERFORMANCE CERTIFICATE
Statement - Planning
Not archived
· Council Link
APPENDIX 1 EXISTING UNIT 3B TROON ENERGY PERFORMANCE CERTIFICATE
Statement - Planning
Not archived
· Council Link
APPENDIX 1 EXISTING UNIT 3C TROON ENERGY PERFORMANCE CERTIFICATE
Statement - Planning
Not archived
· Council Link
ARBORICULTURAL CONSTRAINTS, IMPACT ASSESSMENT AND TREE PLAN
Tree Survey/Report
Not archived
· Council Link
DESIGN AND ACCESS STATEMENT INCL GI STATEMENT
Statement - Design and Access
Not archived
· Council Link
FLOOD RISK ASSESSMENT AND SURFACE WATER DRAINAGE STRATEGY
Assessment - Flood Risk
Not archived
· Council Link
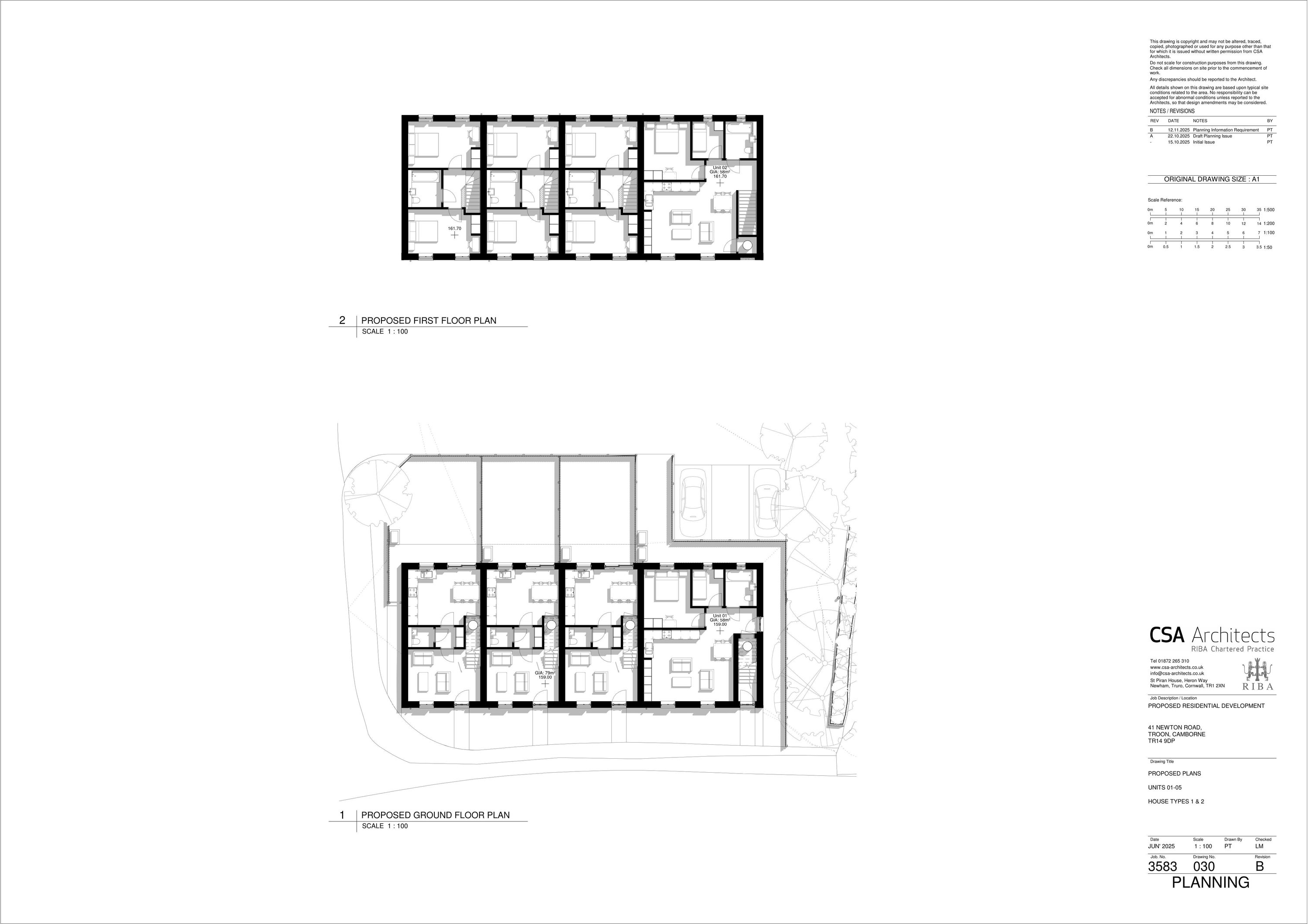
HOUSE TYPE 1 - ELEVATIONS, GROUND AND FIRST FLOOR PLANS
Plan - Proposed Mixed
Not archived
· Council Link
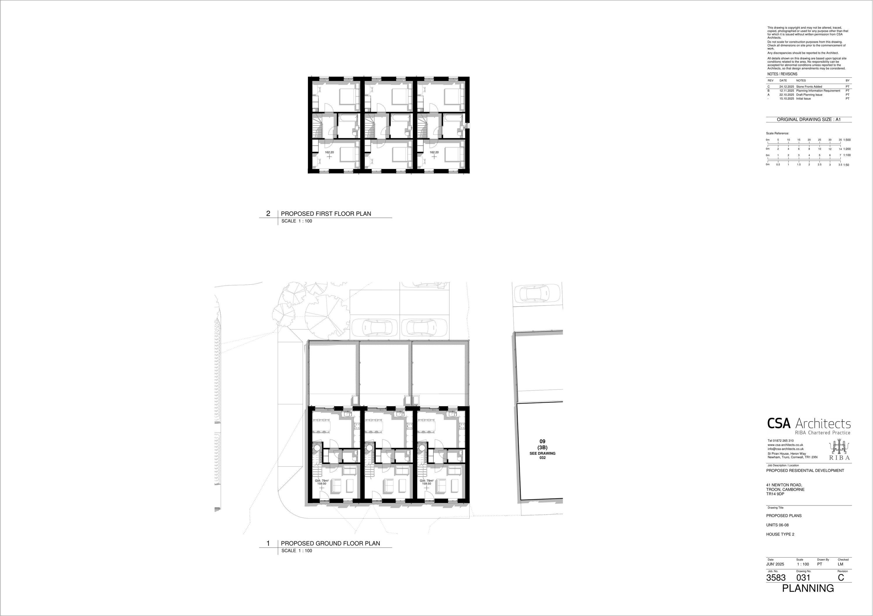
HOUSE TYPE 2 - ELEVATIONS, GROUND AND FIRST FLOOR PLANS
Plan - Proposed Mixed
Not archived
· Council Link
HOUSE TYPE 3 - ELEVATIONS, GROUND AND FIRST FLOOR PLANS
Plan - Proposed Mixed
Not archived
· Council Link
HOUSE TYPE 4 - ELEVATIONS, GROUND AND FIRST FLOOR PLANS
Plan - Proposed Mixed
Not archived
· Council Link
PHASE ONE HABITAT SURVEY, PRELIMINARY ROOST ASSESSMENT AND EMERGENCE SURVEY
Assessment - Ecological
Not archived
· Council Link
TREE SURVEY, ARBORICULTURAL CONSTRAINTS, IMPACT ASST AND CANOPY COVER ASST
Tree Survey/Report
Not archived
· Council Link
UNITS 01-05 HOUSETYPES 1 AND 2 PROPOSED ELEVATIONS
Plan - Proposed Elevations
Not archived
· Council Link
Take Action
Make your voice heard. Authorities need to hear from people who support new homes.