← Back to Cornwall Council

Status

Awaiting decision New housing
Received
n/a
New dwellings
2

Summary

Construction of two dwellings and associated works.

Full Proposal

Construction of Two Dwellings & Associated Works

Documents

APPLICATION FORM
Application Form
Not archived · Council Link
DESIGN AND ACCESS STATEMENT
Statement - Design and Access
Not archived · Council Link
ECOLOGY TRIGGER LIST
Ecology Report Trigger Table
Not archived · Council Link
ENERGY STATEMENT
Energy Report
Not archived · Council Link
ENERGY SUMMARY TOOL
Energy Summary Tool
Not archived · Council Link
FOUL DRAINAGE FORM
Assessment - Foul Drainage
Not archived · Council Link
LOCATION AND BLOCK PLANS
Plan - Site and Block
Not archived · Council Link
PRELIMINARY ECOLOGICAL APPRAISAL REPORT
Assessment - Ecological
Not archived · Council Link
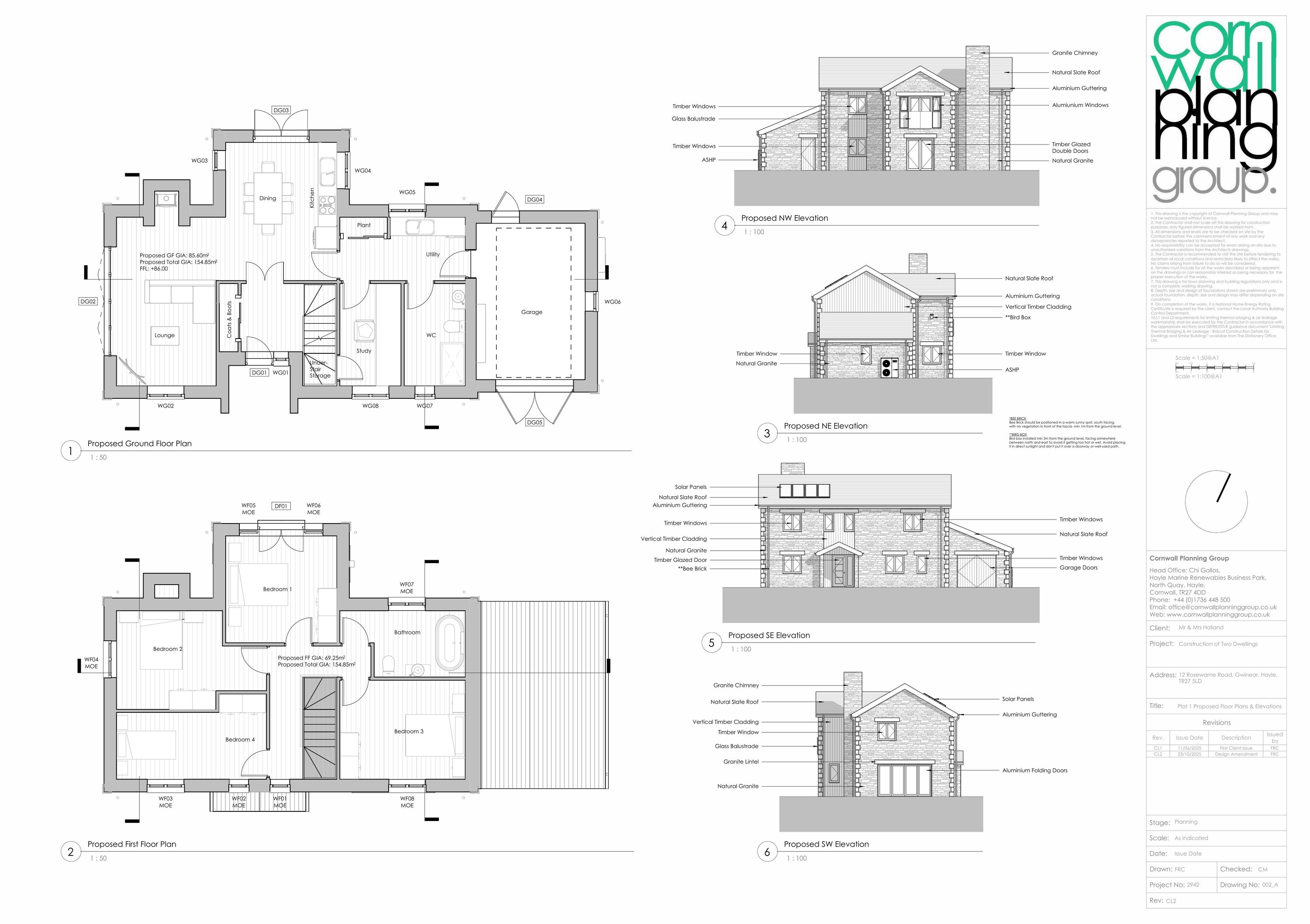
Plan - Proposed
Archived · Council Link
PROPOSED ROOF AND SECTION PLANS
Plan - Proposed
Not archived · Council Link
PROPOSED ROOF PLANS AND SECTIONS
Plan - Proposed
Not archived · Council Link
SAP CALCULATIONS
Energy Summary Tool
Not archived · Council Link
SAP CALCULATIONS
Energy Summary Tool
Not archived · Council Link

Take Action

Make your voice heard. Authorities need to hear from people who support new homes.

✉️ Write Email in Support View on Council Portal