← Back to Cornwall Council
Status
Awaiting decision
New housing
Full Proposal
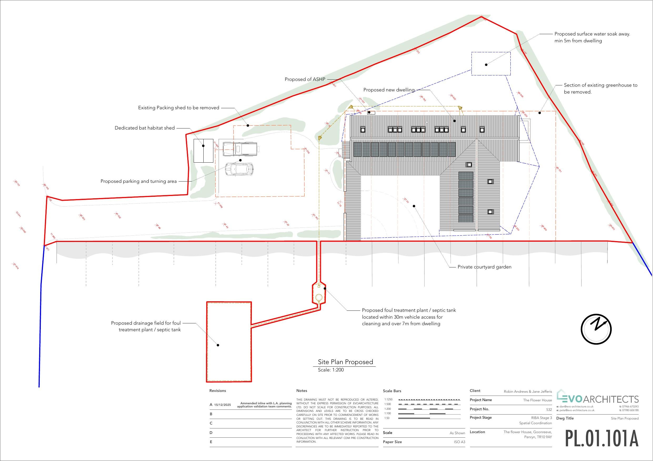
Proposed demolition of existing agricultural building together with a section of the glasshouse, erection of a self-build dwelling in lieu of a Class Q change of use (PA25/06947) and change of use of surrounding land to garden together with associated works
Documents
APPLICATION FORM
Application Form
APPROPRIATE ASSESSMENT
Appropriate Assessment
BAT HOUSE FLOOR PLAN AND ELEVATIONS
Plan - Proposed Mixed
DESIGN AND ACCESS STATEMENT
Statement - Design and Access
ECOLOGY TRIGGER TABLE
Ecology Report Trigger Table
ELEVATIONS NW NE SW SE; GROUND FLOOR PLAN
Plan - Existing Mixed
ENERGY STATEMENT
Energy Report
ENERGY SUMMARY TOOL
Energy Summary Tool
FULL SAP CALCULATION PRINTOUT
Energy Report
FURTHER BAT SURVEY 2022
Bat and Barn Owl Survey
LOCATION PLAN
Plan - Site Location
NON MAINS DRAINAGE FORM
Plan - Drainage
PLAN AND ELEVATIONS BAT HOUSE
Plan - Proposed Mixed
PLANNING POLICY ASSESSMENT, TRANSPORT AND EXPLANATORY STATEMENT INCL GI
Statement - Planning
PRELIMINARY SITE RISK ASSESSMENT TIER 1
Assessment - Land Contamination
PROFORMA FOR SCHEMES THAT ARE SELF-CUSTOM BUILD
Biodiversity Net Gain
PROPOSED FLOOR PLAN
Plan - Proposed Floor
PROPOSED NORTH AND EAST ELEVATIONS
Plan - Proposed Elevations
PROPOSED SOUTH AND WEST ELEVATIONS
Plan - Proposed Elevations
RESULTS OF FURTHER BAT SURVEY WORK 2025 UPDATE
Bat and Barn Owl Survey
SOUTH AND WEST SECTIONAL ELEVATION
Plan - Proposed Elevations
SOUTH AND WEST SECTIONAL ELEVATIONS
Plan - Proposed Elevations
SUMMARY INFORMATION REPORT
Energy Report
THERMAL BRIDGING REPORT
Energy Report
Take Action
Make your voice heard. Authorities need to hear from people who support new homes.