← Back to Cotswold District Council

Status

Awaiting decision Change of use
Received
26 Sep 2025
New dwellings
3

Full Proposal

Change of use of agricultural land to residential and conversion of three modern barns into three residential units and garaging

Documents

Application Form
Application Form
Not archived · Council Link
BIODIVERSITY NET GAIN STATEMENT
BNG Statement
Not archived · Council Link
BIODIVERSITY OFFICER
Consultee Comment
Not archived · Council Link
BIODIVERSITY SELF ASSESSMENT
Report
Not archived · Council Link
BIODIVERSITY STATEMENT
BNG Statement
Not archived · Council Link
BNG METRIC
BNG Metric
Not archived · Council Link
BNG METRIC
BNG Metric
Not archived · Council Link
CIL FORM 1
Application Form
Not archived · Council Link
CIL FORM 2
Application Form
Not archived · Council Link
DESIGN STATEMENT
Report
Not archived · Council Link
ENVIRONMENTAL HEALTH CONTAMINATION
Consultee Comment
Not archived · Council Link
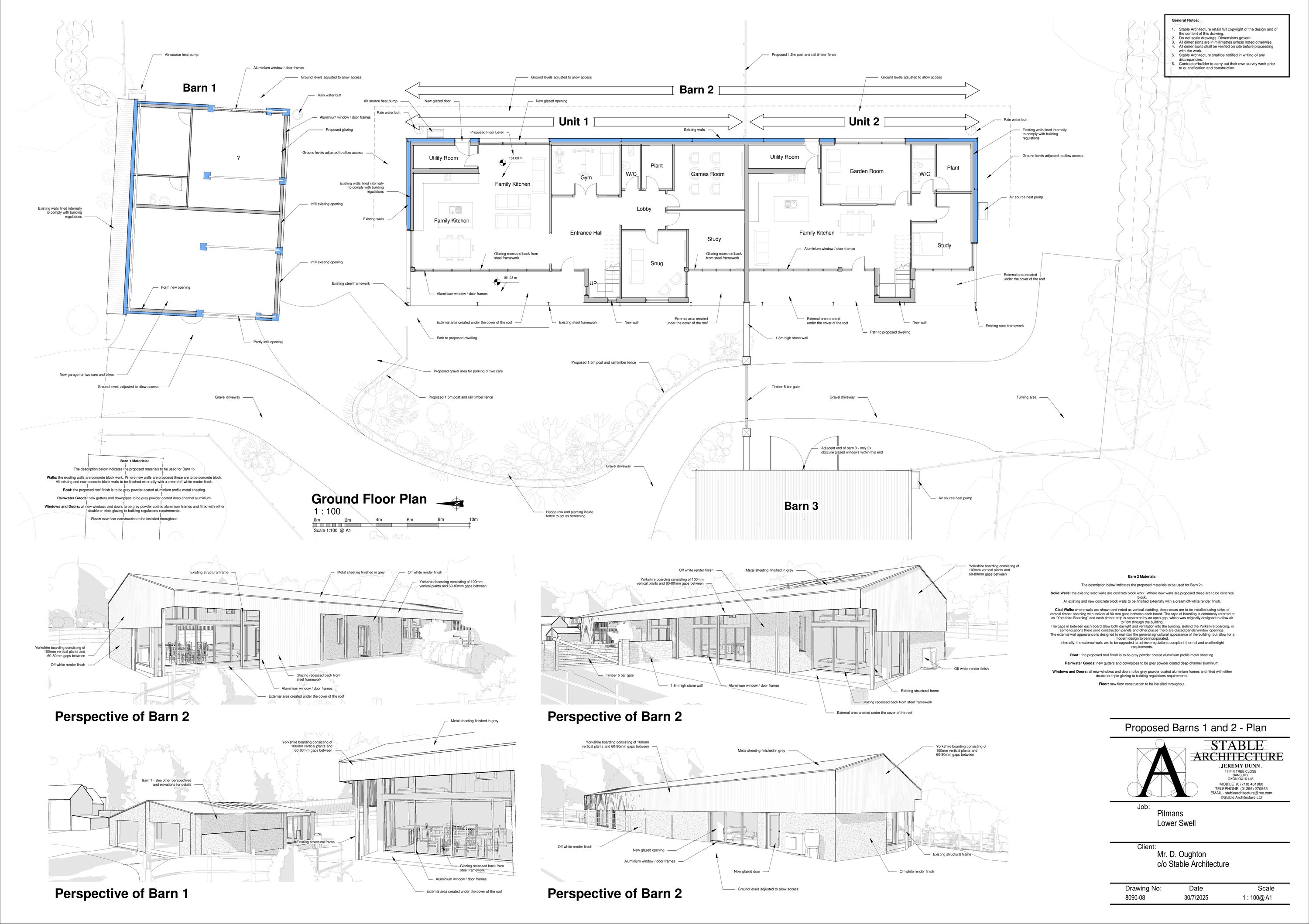
EXISTING ELEVATIONS - BARNS 1 AND 2
Drawing
Not archived · Council Link
EXISTING FLOOR PLAN - BARNS 1 AND 2
Drawing
Not archived · Council Link
EXISTING POLANS AND ELEVATIONS - BARN 3
Drawing
Not archived · Council Link
FLOOD RISK OFFICER
Consultee Comment
Not archived · Council Link
HIGHWAYS DEVELOPMENT MANAGEMENT
Consultee Comment
Not archived · Council Link
HINDLE
Objection Comment
Not archived · Council Link
HISTORIC ENGLAND
Consultee Comment
Not archived · Council Link
LOCATION AND BLOCK PLANS
Drawing
Not archived · Council Link
NEW DETAILS: ARBORICULTURAL APPRAISAL REPORT
Report
Not archived · Council Link
NEW DETAILS: BIODIVERSITY GAIN STATEMENT
Report
Not archived · Council Link
NEW DETAILS: BNG METRIC
BNG Metric
Not archived · Council Link
NEW DETAILS: PRELIMINARY ECOLOGICAL APPRAISAL
Report
Not archived · Council Link
NEW DETAILS: PROPOSED OVERALL LAYOUTS
Drawing
Not archived · Council Link
NEW DETAILS: TOPOGRAPHICAL SURVEY
Drawing
Not archived · Council Link
NEW DETAILS: TREE CONSTRAINTS PLAN
Drawing
Not archived · Council Link
NEW DETAILS: TREE PROTECTION PLAN
Drawing
Not archived · Council Link
NEW DETAILS: TREE SURVEY SCHEDULE
Report
Not archived · Council Link
PARISH COUNCIL
Consultee Comment
Not archived · Council Link
PLANNING, DESIGN AND ACCESS STATEMENT
Report
Not archived · Council Link
PRELIMINARY ECOLOGICAL APPRAISAL
Superseded Document
Not archived · Council Link
PROPOSED ISOMETRIC VIEW
Drawing
Not archived · Council Link
PROPOSED OVERALL LAYOUTS
Drawing
Not archived · Council Link
PROPOSED PERSPECTIVES - BARN 2
Drawing
Not archived · Council Link
REQUISITE NOTICE
Requisite Notice
Not archived · Council Link
SCREENING OPINION
Screening Opinion
Not archived · Council Link
STRUCTURAL INSPECTION
Report
Not archived · Council Link
TREE OFFICER
Consultee Comment
Not archived · Council Link
TREE OFFICER
Consultee Comment
Not archived · Council Link

Take Action

Make your voice heard. Authorities need to hear from people who support new homes.

✉️ Write Email in Support View on Council Portal