← Back to Cotswold District Council
Status
Awaiting decision
New housing
Full Proposal
Proposed re-location of stable yard including provision of new access, new buildings and siting of a mobile home and associated works. demolition of existing stables and buildings and conversion of existing barns to form two dwellinghouses (phased development)
Documents
Application Form
Application Form
ARBORICULTURAL IMPACT ASSESSMENT
Report
ARBORICULTURAL IMPLICATIONS PLAN INSET 1
Drawing
ARBORICULTURAL IMPLICATIONS PLAN INSET 2
Drawing
ARBORICULTURAL IMPLICATIONS PLAN INSET 3
Drawing
ARBORICULTURAL IMPLICATIONS PLAN INSET 4
Drawing
ARBORICULTURAL IMPLICATIONS PLAN INSET 5
Drawing
ARBORICULTURAL IMPLICATIONS PLAN INSET 6
Drawing
ARBORICULTURAL IMPLICATIONS PLAN OVERVIEW
Drawing
ARCHAEOLOGICAL EVALUATION
Report
ARCHAEOLOGICAL EVALUATION
Report
BIODIVERSITY NET GAIN BASELINE MAP
BNG Report
BIODIVERSITY NET GAIN METRIC CALCULATION TOOL
BNG Metric
BIODIVERSITY NET GAIN PROPOSAL MAP
BNG Report
BIODIVERSITY NET GAIN RETENTION MAP
BNG Report
BIODIVERSITY NET GAIN STATEMENT FORM
BNG Statement
BIODIVERSITY OFFICER
Consultee Comment
BIODIVERSITY OFFICER
Consultee Comment
BS5837: 2012 TREE SURVEY
Report
CIL FORM 1
Application Form
COUNTY ARCHAEOLOGIST
Consultee Comment
DESIGN AND ACCESS STATEMENT
Report
DUTCH BARN EXISTING FLOOR PLANS AND ELEVATIONS
Drawing
ECOLOGICAL IMPACT ASSESSMENT & BIODIVERSITY NET GAIN ASSESSMENT
Report
ECOLOGICAL IMPACT ASSESSMENT & BIODIVERSITY NET GAIN ASSESSMENT
Report
ELEVATIONS FOR NO 5
Drawing
ELEVATIONS FOR NO. 1, 3, 4, 6, 7, 9
Drawing
ENV HEALTH AIR QUALITY
Consultee Comment
ENVIRONMENTAL HEALTH AIR QUALITY
Consultee Comment
ENVIRONMENTAL HEALTH AIR QUALITY
Consultee Comment
EXISTING AND PROPOSED GARAGE DETAILS
Drawing
EXISTING COTSWOLD BARN, FLOOR PLANS AND ELEVATIONS
Drawing
FLOOD RISK ASSESSMENT
Report
FLOOD RISK ASSESSMENT
Report
FLOOR PLANS FOR NO. 1, 3, 4, 5, 6, 7, 8, 9
Drawing
GCC HIGHWAYS OFFICER
Consultee Comment
GEOPHYSICAL SURVEY REPORT
Report
HERITAGE STATEMENT
Report
HIGHWAYS OFFICER
Consultee Comment
HIGHWAYS RESPONSE TECHNICAL RESPONSE
Report
HISTORIC ENGLAND
Consultee Comment
LANDSCAPE AND VISUAL APPRAISAL
Report
LANDSCAPE AND VISUAL APPRAISAL
Report
LANDSCAPE MASTERPLAN
Drawing
LEAD LOCAL FLOOD AUTH
Consultee Comment
LEAD LOCAL FLOOD AUTHORITY
Consultee Comment
LETTER RE MANURE STORAGE
Applicant/Agent Correspondence
MINERALS AND WASTE OFFICER
Consultee Comment
PARISH COUNCIL
Consultee Comment
PLANNING & LICENSING COMMITTEE DATE
Important Note
PLANNING STATEMENT
Drawing
PROPOSED AMERICAN BARN ELEVATIONS
Drawing
PROPOSED AMERICAN BARN FLOOR PLAN
Drawing
PROPOSED BARN FLOOR PLANS AND ELEVATIONS
Drawing
PROPOSED COTSWOLD BARN, FLOOR PLANS AND ELEVATIONS
Drawing
PROPOSED DUTCH BARN FLOOR PLANS AND ELEVATIONS
Drawing
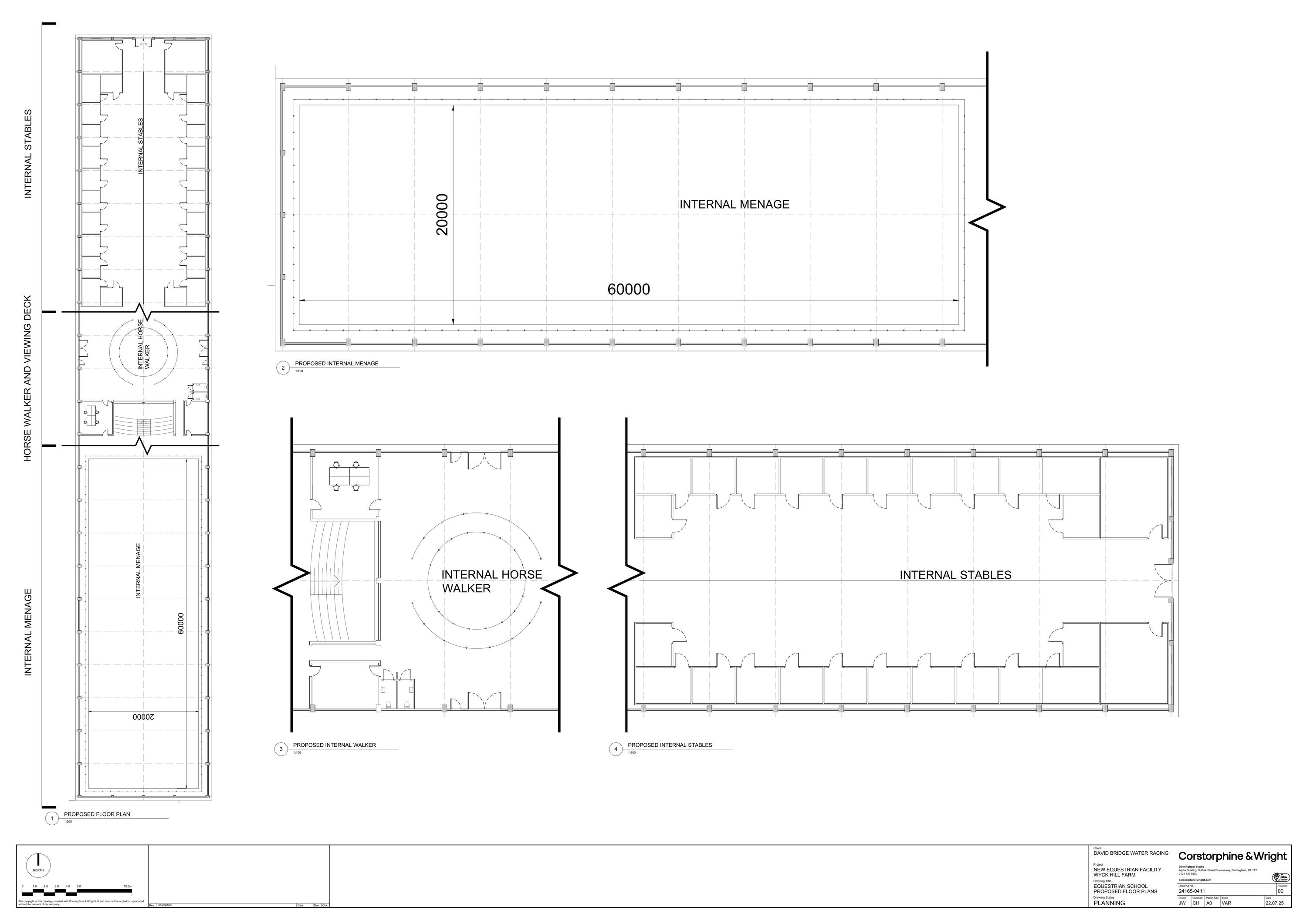
PROPOSED EQUESTRIAN SCHOOL ELEVATIONS - SHEET 1
Drawing
PROPOSED EQUESTRIAN SCHOOL ELEVATIONS - SHEET 2
Drawing
PROPOSED MANEGE FLOOR PLAN AND ELEVATIONS
Drawing
PROPOSED SITE SECTIONS
Drawing
PROPOSED SITE SECTIONS SHEET 1 OF 2
Drawing
REQUISITE NOTICE
Requisite Notice
SCREENING OPINION
Screening Opinion
STRUCTURAL INSPECTION
Report
SUPERSEDED PROPOSED SITE SECTIONS
Drawing
TRANSPORT ASSESSMENT
Report
TREE CONSTRAINTS PLAN INSET 1
Drawing
TREE CONSTRAINTS PLAN INSET 2
Drawing
TREE CONSTRAINTS PLAN INSET 3
Drawing
TREE CONSTRAINTS PLAN INSET 4
Drawing
TREE CONSTRAINTS PLAN INSET 5
Drawing
TREE CONSTRAINTS PLAN INSET 6
Drawing
TREE CONSTRAINTS PLAN OVERVIEW
Drawing
TREE OFFICER
Consultee Comment
TREE PROTECTION PLAN - INSET 1
Drawing
TREE PROTECTION PLAN - INSET 2
Drawing
TREE PROTECTION PLAN - INSET 3
Drawing
TREE PROTECTION PLAN - INSET 4
Drawing
TREE PROTECTION PLAN - INSET 5
Drawing
TREE PROTECTION PLAN - OVERVIEW
Drawing
Take Action
Make your voice heard. Authorities need to hear from people who support new homes.