← Back to Cotswold District Council
Status
Awaiting decision
New housing
Full Proposal
Construction of a single dwelling and associated landscaping and infrastructure
Documents
Application Form
Application Form
ARBORICULTURAL IMPLICATIONS ASSESSMENT AND METHOD STATEMENT
Report
BIODIVERSITY METRIC CALCULATION TOOL
BNG Metric
BIODIVERSITY OFFICER
Consultee Comment
BIODIVERSITY SELF-ASSESSMENT FORM
Report
BNG STATEMENT
BNG Statement
BUILT HERITAGE STATEMENT
Report
CIL FORM 1
Application Form
COMPOSITE ELEVATIONS
Drawing
CONSERVATION & DESIGN OFFICER
Consultee Comment
ECOLOGICAL ASSESSMENT
Report
FLOOD RISK OFFICER
Consultee Comment
HIGHWAYS OFFICER
Consultee Comment
HISTORIC ENGLAND
Consultee Comment
LANDSCAPE AND VISUAL TECHNICAL NOTE
Report
LANDSCAPE LAYOUT PLANS
Drawing
NEW DETAILS: ECOLOGY RESPONSE
Report
NEW DETAILS: PEA WITH PRA
Report
NEW DETAILS: PROPOSED HOUSE ELEVATIONS
Drawing
NEW DETAILS: PROPOSED HOUSE ROOF PLAN
Drawing
NEWBOLD
Objection Comment
PARISH COUNCIL
Consultee Comment
PLANNING, DESIGN & ACCESS STATEMENT
Report
PROPOSED ELEVATIONS
Drawing
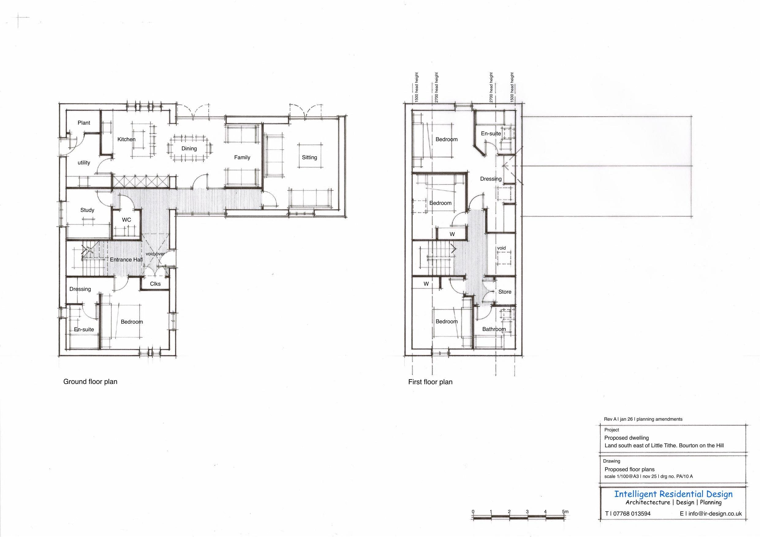
PROPOSED FLOOR PLAN
Drawing
PROPOSED HOUSE ELEVATIONS
Drawing
PROPOSED HOUSE ROOF PLAN
Drawing
REQUISITE NOTICE
Requisite Notice
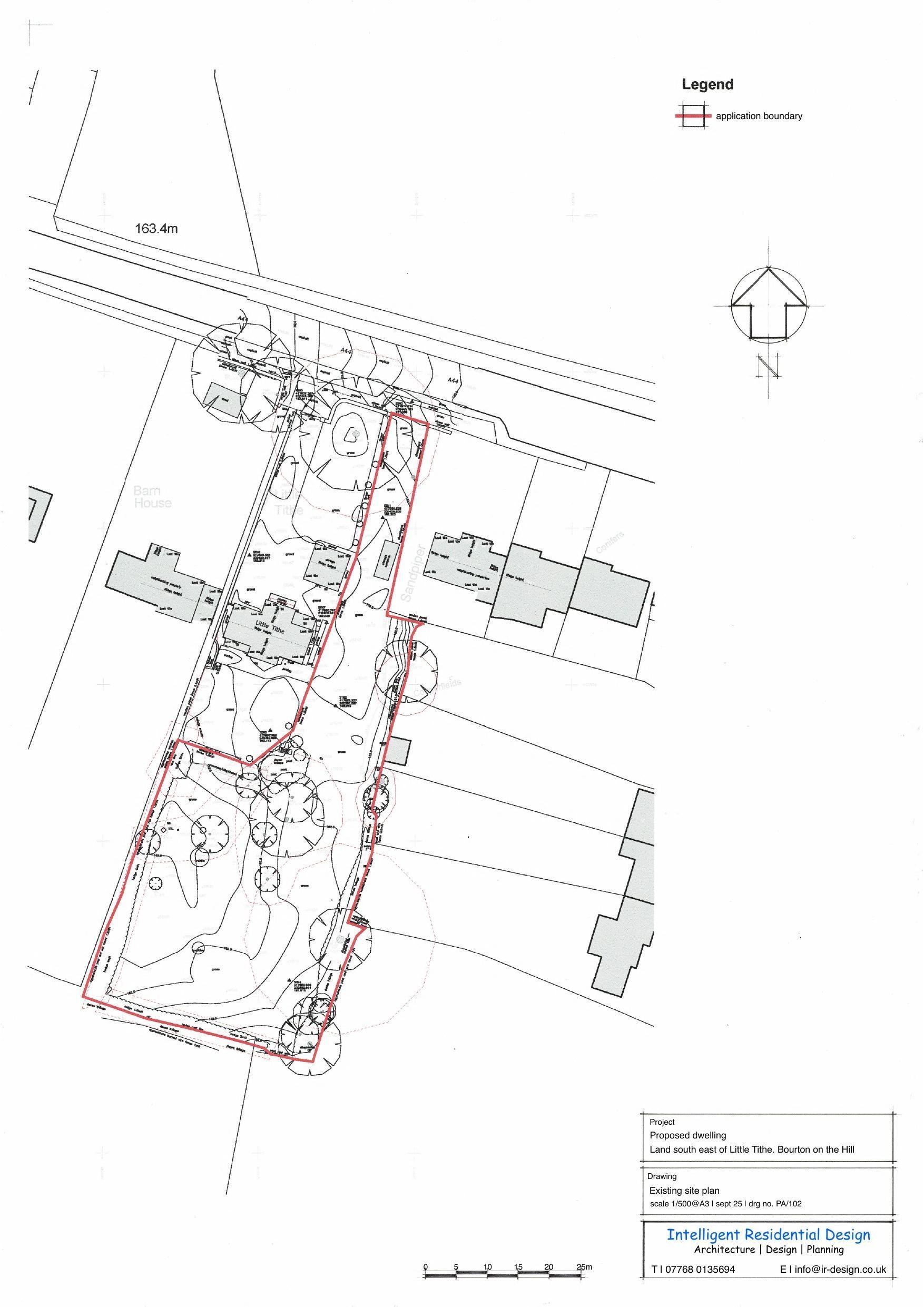
THE LOCATION PLAN
Drawing
TRANSPORT ASSESSMENT
Report
Take Action
Make your voice heard. Authorities need to hear from people who support new homes.