← Back to Cotswold District Council
Status
Awaiting decision
New housing
Full Proposal
Construction of a new dwelling
Documents
Application Form
Application Form
BIODIVERSITY OFFICER
Consultee Comment
BIODIVERSITY SELF ASSESSMENT FORM
Report
BULLOCK
Objection Comment
CIL FORM 1
Application Form
COVERING LETTER
Applicant/Agent Correspondence
ECOLOGICAL IMPACT ASSESSMENT
Report
EXISTING LAYOUT 3D ANNOTATED TOPOGRAPHICAL SURVEY
Drawing
EXISTING LAYOUT 3D ANNOTATED TOPOGRAPHICAL SURVEY
Drawing
EXISTING LAYOUT TOPOGRAPHICAL SURVEY WITH CONTOURS
Drawing
FLOOD RISK OFFICER
Consultee Comment
HALL (N)
Objection Comment
HALL (S)
Objection Comment
JOHNSEN
Objection Comment
LAWFORD
Objection Comment
MILLERCHIP
Objection Comment
MUELLER
Objection Comment
PARISH COUNCIL
Consultee Comment
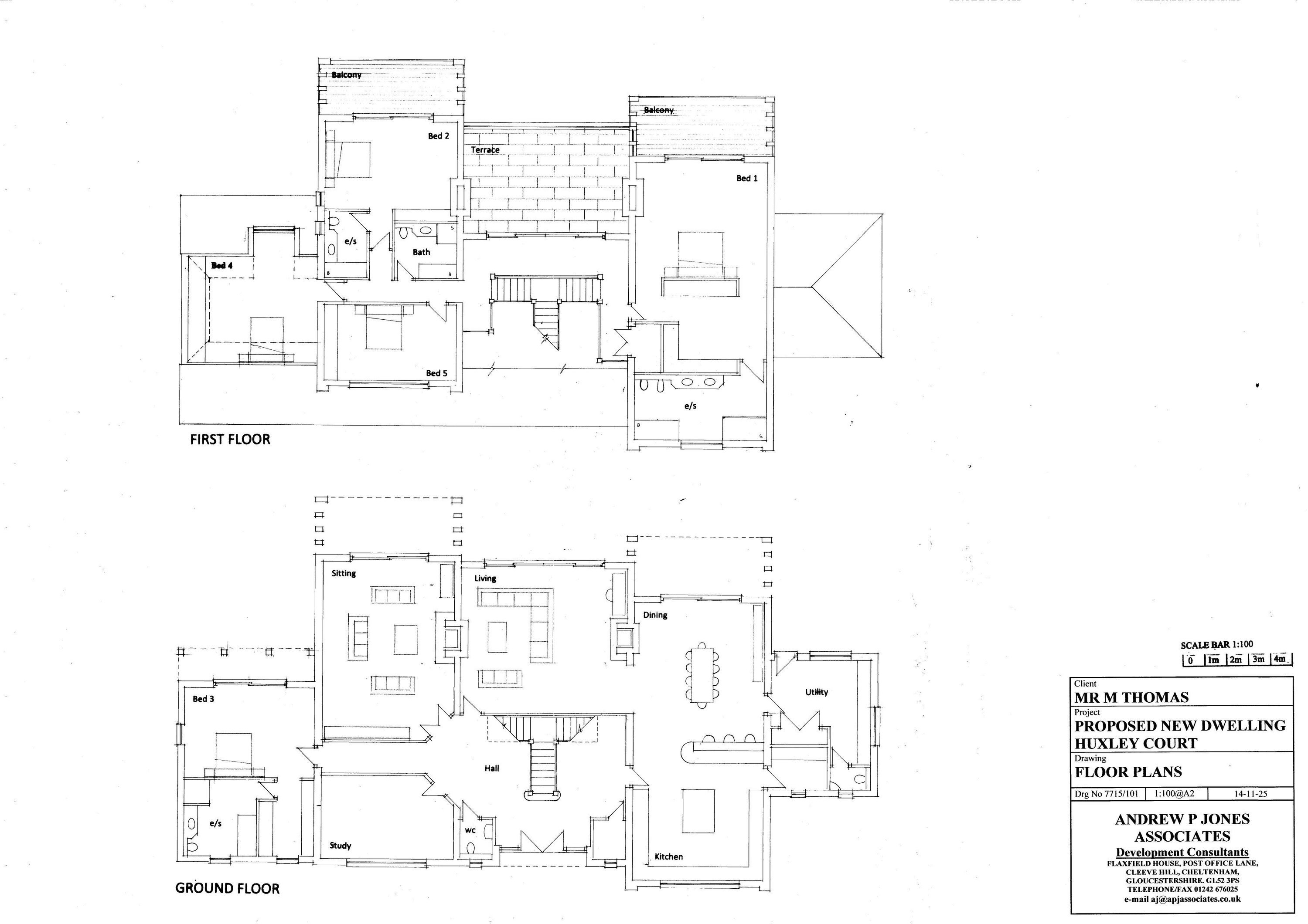
PROPOSED ELEVATIONS
Drawing
PROW OFFICER
Consultee Comment
REQUISITE NOTICE
Requisite Notice
SOUTHERINGTON
Support Comment
THAMES WATER
Consultee Comment
THE LOCATION PLAN
Drawing
TREE OFFICER
Consultee Comment
WILLIAMS
Objection Comment
WOODARD
Objection Comment
Take Action
Make your voice heard. Authorities need to hear from people who support new homes.