← Back to Cotswold District Council

Status

Awaiting decision New housing
Received
05 Dec 2025
New dwellings
1

Full Proposal

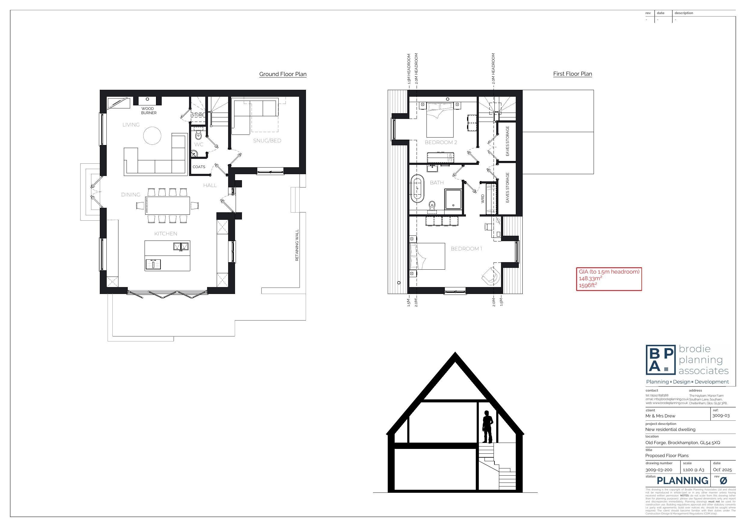
Erection of a single self-build dwellinghouse following the demolition of garden timber storage stable building

Documents

Application Form
Application Form
Not archived · Council Link
BIODIVERSITY OFFICER
Consultee Comment
Not archived · Council Link
BIODIVERSITY REPORT DECLARATION OF ADEQUACY
Report
Not archived · Council Link
CIL FORM 1
Application Form
Not archived · Council Link
COMMITTEE REPORT RE 24/00386/FUL
Other
Not archived · Council Link
EXISTING BLOCK PLAN
Drawing
Not archived · Council Link
EXISTING GARDEN STORE
Drawing
Not archived · Council Link
FITZSIMMONS
Support Comment
Not archived · Council Link
FLOOD RISK OFFICER
Consultee Comment
Not archived · Council Link
INDICATIVE VISUALISATIONS
Drawing
Not archived · Council Link
LOCATION PLAN
Drawing
Not archived · Council Link
MINUTES OF PLANNING MEETING 12 FEBRUARY 2025
Other
Not archived · Council Link
NO DOCUMENT ATTACHED
Other
Not archived · Council Link
PARISH COUNCIL
Consultee Comment
Not archived · Council Link
PLANNING, DESIGN AND ACCESS, HERITAGE, ENERGY STATEMENT AND WATER MANAGEMENT.
Report
Not archived · Council Link
PRELIMINARY ECOLOGICAL APPRAISAL
Report
Not archived · Council Link
PROPOSED ELEVATIONS
Drawing
Not archived · Council Link
Drawing
Archived · Council Link
Drawing
Archived · Council Link
REQUISITE NOTICE
Requisite Notice
Not archived · Council Link
REQUISITE NOTICE
Requisite Notice
Not archived · Council Link
SCREENING OPINION
Screening Opinion
Not archived · Council Link
THAMES WATER
Consultee Comment
Not archived · Council Link

Take Action

Make your voice heard. Authorities need to hear from people who support new homes.

✉️ Write Email in Support View on Council Portal