← Back to Cotswold District Council

Status

Awaiting decision New housing
Received
Last month
New dwellings
4

Full Proposal

Erection of 4 dwellings in two semi-detached blocks, utility block and upgrade of laneway to private driveway

Documents

ANDREWS
Objection Comment
Not archived · Council Link
Application Form
Application Form
Not archived · Council Link
APPROPRIATE ASSESSMENT
Agreement / Obligation
Not archived · Council Link
ARBORICULTURAL ASSESSMENT
Report
Not archived · Council Link
BIODIVERSITY GAIN PLAN
Report
Not archived · Council Link
BIODIVERSITY METRIC CALCULATION TOOL
Report
Not archived · Council Link
BIODIVERSITY NET GAIN POST-DEVELOPMENT PLAN POST DEVELOPMENT MAP
Drawing
Not archived · Council Link
BIODIVERSITY NET GAIN PRE-DEVELOPMENT PLAN BASELINE MAP
Drawing
Not archived · Council Link
BIODIVERSITY NET GAIN STATEMENT
Report
Not archived · Council Link
BRABHAM
Support Comment
Not archived · Council Link
BRUTON
Support Comment
Not archived · Council Link
BURT
Objection Comment
Not archived · Council Link
CASS
Objection Comment
Not archived · Council Link
CIL FORM 1
Application Form
Not archived · Council Link
CLARK
Objection Comment
Not archived · Council Link
CONSERVATION OFFICER
Consultee Comment
Not archived · Council Link
COVERING LETTER
Report
Not archived · Council Link
DESIGN AND ACCESS STATEMENT
Report
Not archived · Council Link
DRAINAGE STATEMENT
Report
Not archived · Council Link
ENVIRONMENTAL STATEMENT
Report
Not archived · Council Link
Drawing
Archived · Council Link
FLETCHER
Objection Comment
Not archived · Council Link
FLOOD RISK OFFICER
Consultee Comment
Not archived · Council Link
FOX
Support Comment
Not archived · Council Link
GRAY
Objection Comment
Not archived · Council Link
GREAT CRESTED NEWT IDENTIFICATION RESULTS
Report
Not archived · Council Link
GRIFFIN
Objection Comment
Not archived · Council Link
HARRISON
Objection Comment
Not archived · Council Link
HARTSHORN
Objection Comment
Not archived · Council Link
HUISH
Objection Comment
Not archived · Council Link
HUNTER
Support Comment
Not archived · Council Link
LAND REGISTRY
Report
Not archived · Council Link
LAND REGISTRY
Report
Not archived · Council Link
LAND REGISTRY
Report
Not archived · Council Link
LAND REGISTRY
Report
Not archived · Council Link
LAWSON
Objection Comment
Not archived · Council Link
MARK DOODES PLANNING
Objection Comment
Not archived · Council Link
MERVYN-SMITH
Objection Comment
Not archived · Council Link
NATURAL ENGLAND
Consultee Comment
Not archived · Council Link
NEWMAN
Objection Comment
Not archived · Council Link
PHOTOGRAPHS
Photograph
Not archived · Council Link
PHOTOGRAPHS
Photograph
Not archived · Council Link
PHOTOGRAPHS
Photograph
Not archived · Council Link
PLANNING & HERITAGE STATEMENT
Report
Not archived · Council Link
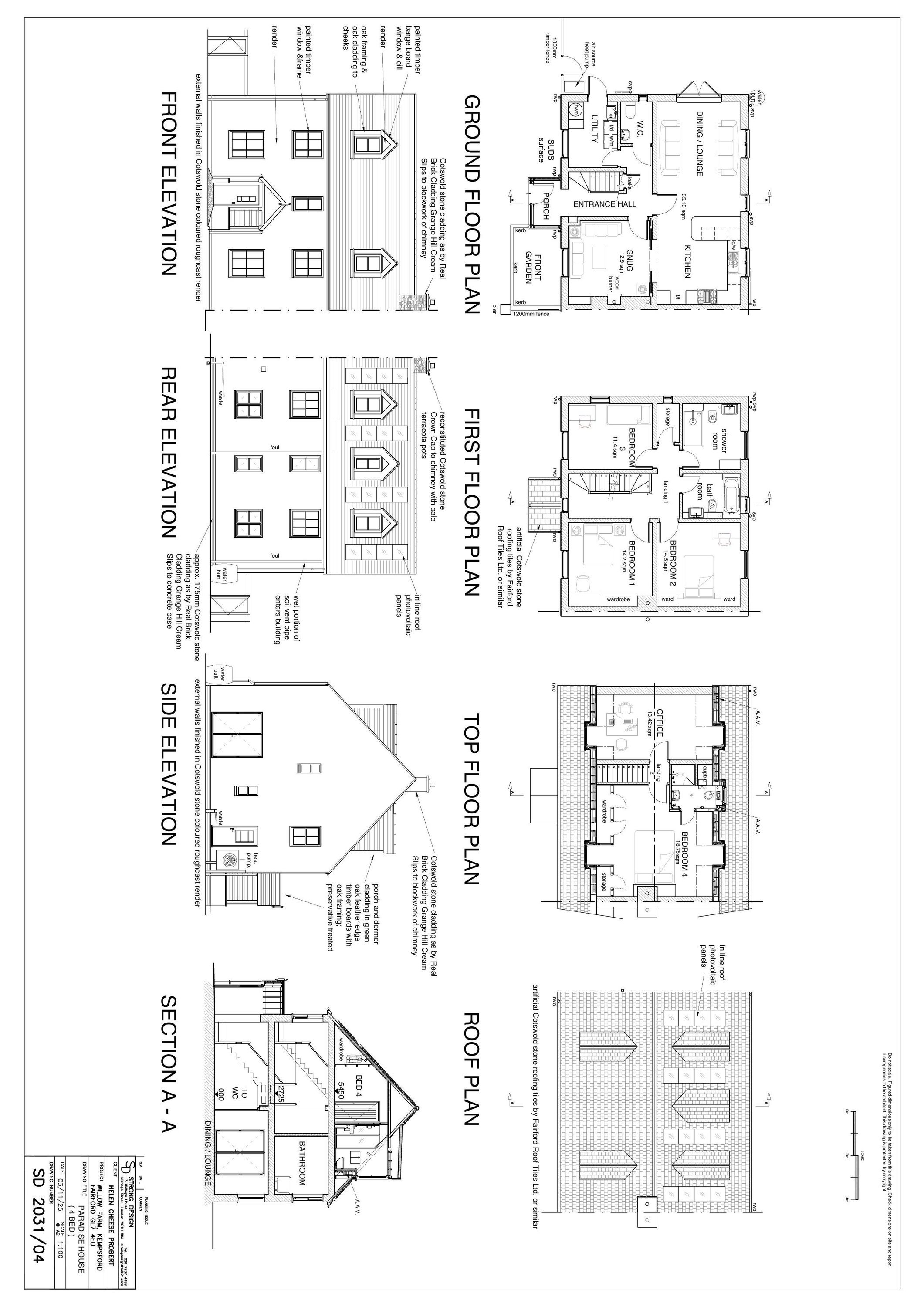
PROPOSED LAYOUT PLAN
Drawing
Not archived · Council Link
Drawing
Archived · Council Link
PROTECTED SPECIES SURVEY
Report
Not archived · Council Link
PROTECTED SPECIES SURVEY
Report
Not archived · Council Link
REQUISITE NOTICE
Requisite Notice
Not archived · Council Link
S.111
Agreement / Obligation
Not archived · Council Link
S.111
Agreement / Obligation
Not archived · Council Link
THAMES WATER
Consultee Comment
Not archived · Council Link
THE LOCATION PLAN
Drawing
Not archived · Council Link
TRACEY
Objection Comment
Not archived · Council Link
TREE OFFICER
Consultee Comment
Not archived · Council Link
UTILITY BLOCK
Drawing
Not archived · Council Link
WARD
Objection Comment
Not archived · Council Link
WHITLAM
Objection Comment
Not archived · Council Link
WYBORN
Objection Comment
Not archived · Council Link

Take Action

Make your voice heard. Authorities need to hear from people who support new homes.

✉️ Write Email in Support View on Council Portal