← Back to Croydon

Status

Awaiting decision New housing
Received
02 Oct 2024
New dwellings
1

Full Proposal

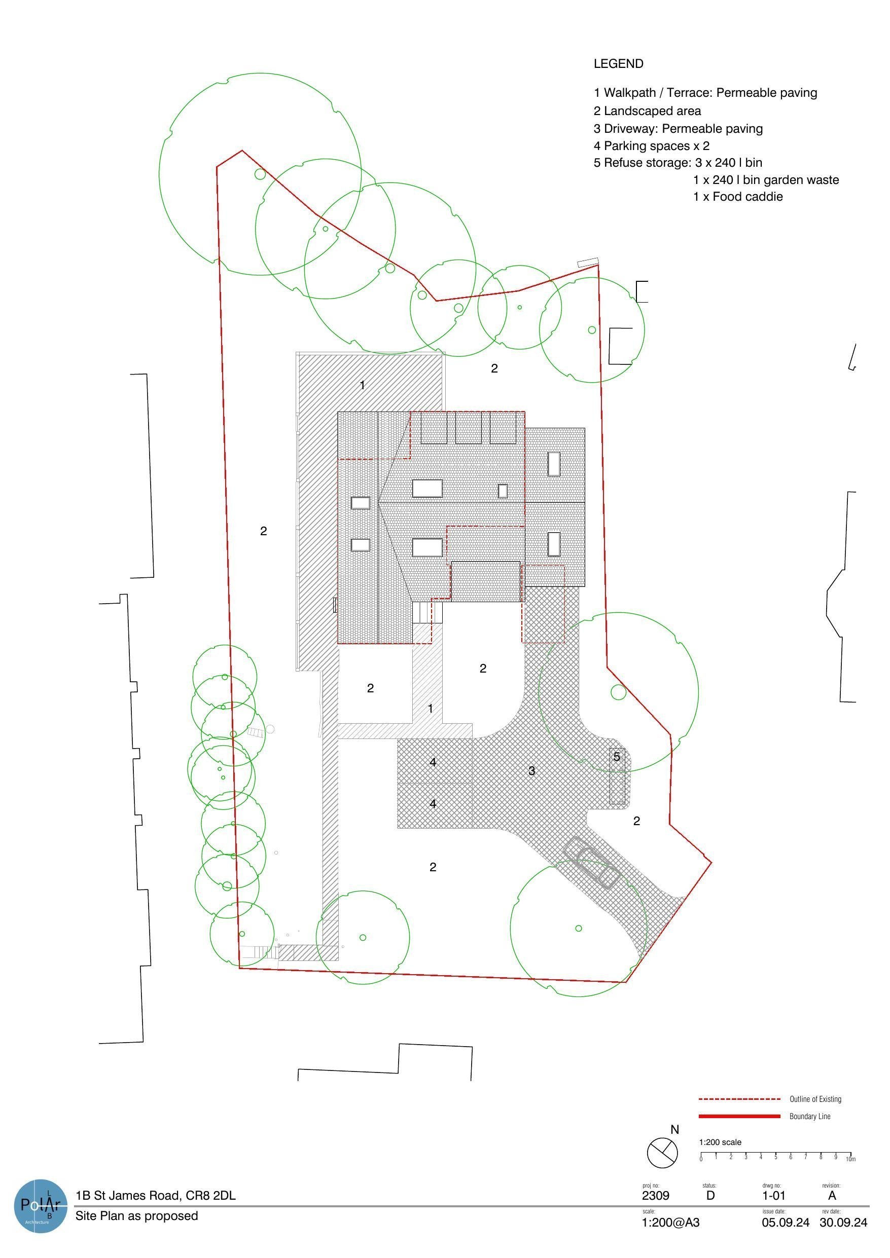
Demolition of existing house and detached garage. Erection of double storey detached house. Alteration to driveway and associated landscaping. Alterations include changes to land level and raised terrace. (Amended drawings and description)

Documents

APPLICATION FORM - WITHOUT PERSONAL DATA
Application Form
Not archived · Council Link
DESIGN AND ACCESS STATEMENT
Statements / Assessments
Not archived · Council Link
DOCUMENT ISSUE SHEET
Statements / Assessments
Not archived · Council Link
DRAINAGE AND SUDS STRATEGY
Statements / Assessments
Not archived · Council Link
EXISTING FIRST FLOOR PLAN
Drawing
Not archived · Council Link
EXISTING FRONT ELEVATION
Amended Drawings
Not archived · Council Link
EXISTING GROUND FLOOR PLAN
Drawing
Not archived · Council Link
EXISTING REAR ELEVATION
Amended Drawings
Not archived · Council Link
EXISTING ROOF PLAN
Drawing
Not archived · Council Link
EXISTING SIDE ELEVATION (C)
Amended Drawings
Not archived · Council Link
EXISTING SIDE ELEVATION (D)
Amended Drawings
Not archived · Council Link
Drawing
Archived · Council Link
FIRE STATEMENT
Statements / Assessments
Not archived · Council Link
PRELIMINARY BAT ROOST ASSESSMENT (PBRA) REPORT
Statements / Assessments
Not archived · Council Link
PROPOSED FIRST FLOOR PLAN
Drawing
Not archived · Council Link
PROPOSED GROUND FLOOR PLAN
Drawing
Not archived · Council Link
PROPOSED ROOF PLAN
Drawing
Not archived · Council Link
Drawing
Archived · Council Link
PROPSOED FRONT ELEVATION
Amended Drawings
Not archived · Council Link
PROPSOED REAR ELEVATION
Amended Drawings
Not archived · Council Link
PROPSOED SIDE ELEVATION (C)
Amended Drawings
Not archived · Council Link
PROPSOED SIDE ELEVATION (D)
Amended Drawings
Not archived · Council Link
SITE NOTICE NEIGHBOUR NOTIFICATION
Site Notices
Not archived · Council Link
THE LOCATION PLAN
Drawing
Not archived · Council Link
TREE CONSTRAINTS PLAN
Statements / Assessments
Not archived · Council Link
TREE PROTECTION PLAN
Statements / Assessments
Not archived · Council Link
TREE SCHEDULE
Statements / Assessments
Not archived · Council Link
TREE SURVEY, ARBORICULTURAL IMPACT ASSESSMENT AND ARBORICULTURAL METHOD STATEMEN
Statements / Assessments
Not archived · Council Link

Take Action

Make your voice heard. Authorities need to hear from people who support new homes.

✉️ Write Email in Support View on Council Portal