← Back to Croydon

Status

Awaiting decision New housing
Received
28 Nov 2024
New dwellings
24

Summary

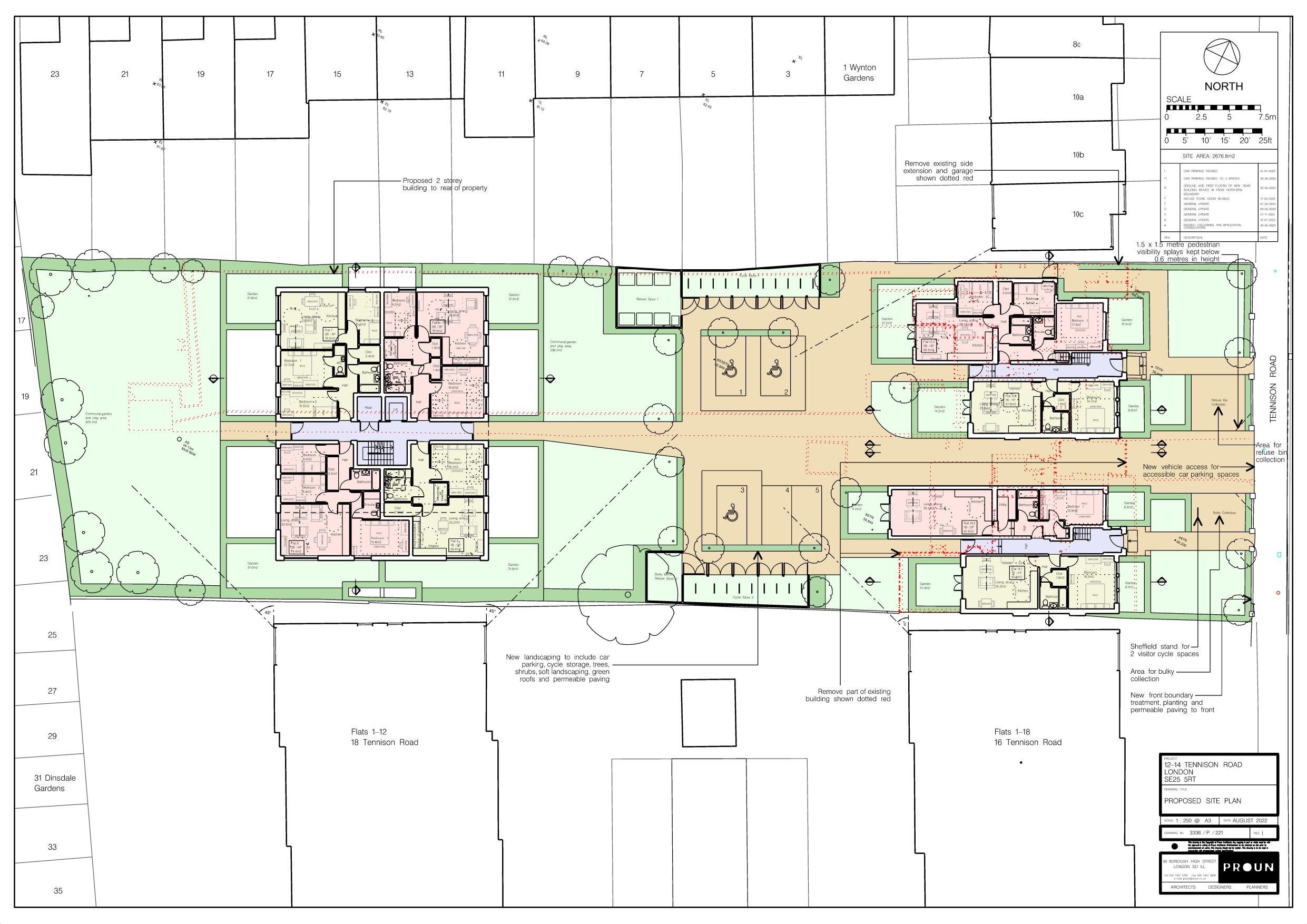
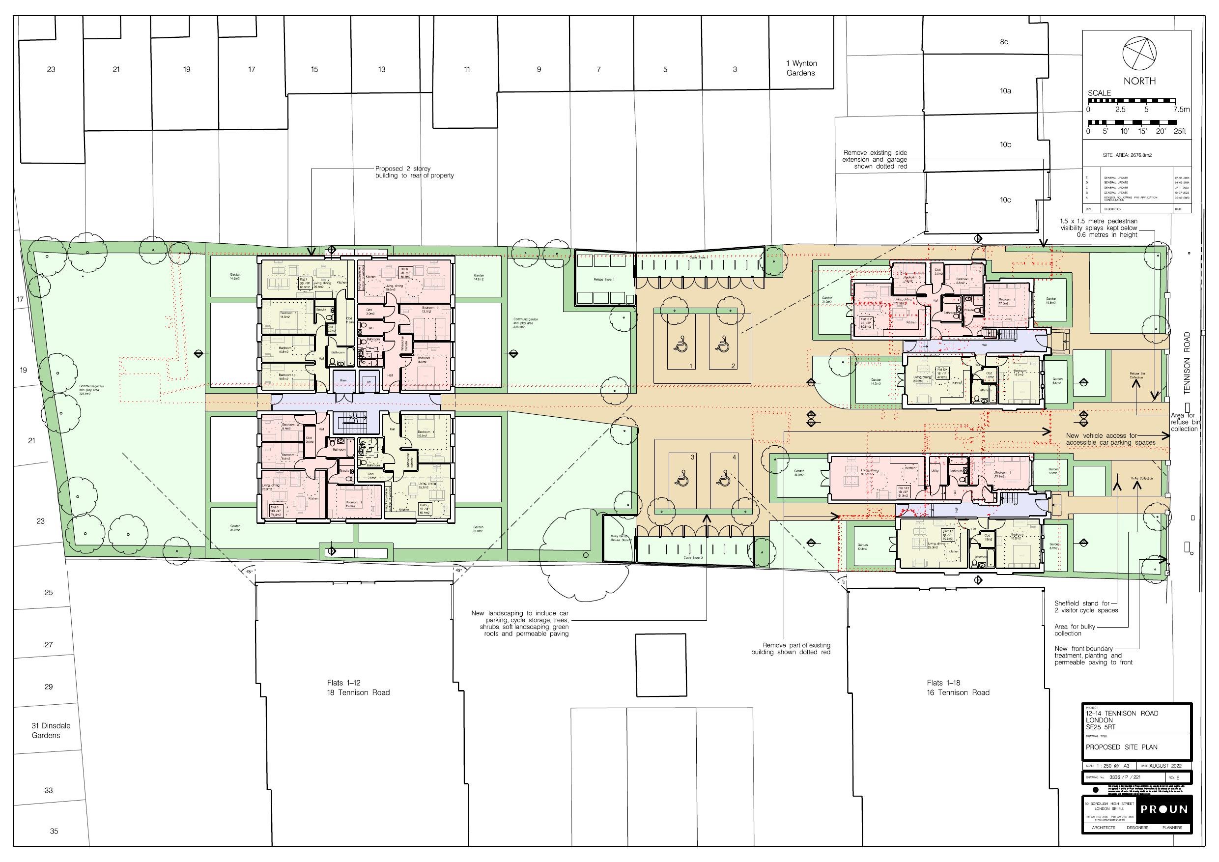
Extensions, conversion and new rear building to provide 24 residential flats with landscaping and parking.

Full Proposal

Erection of extensions and associated alterations to existing Large Houses of Multiple Occupation (HMOs) (Sui Generis Use Class) within nos.12 & no.14 Tennison Road and conversion to form 12no. flats (Use Class C3). Erection of new building to rear containing 12no. flats (Use Class C3) resulting in 24no. flats in total on site with associated landscaping, cycle parking, refuse storage facilities, accessible parking spaces and associated works (amended drawings).

Documents

_STATUTORY_BIODIVERSITY_METRIC_CALCULATION_TOOL
BackGround Papers
Not archived · Council Link
ACOUSTIC ASSESSMENT
Report
Not archived · Council Link
AIR QUALITY ASSESSMENT
Report
Not archived · Council Link
AMENDED APPLICATION FORM - PUBLIC COPY
Application Form
Not archived · Council Link
AMENDED PROPOSED REAR BUILDING - EAST & NORTH ELEVATIONS
Amended Drawings
Not archived · Council Link
AMENDED PROPOSED REAR BUILDING - FIRST FLOOR PLAN
Amended Drawings
Not archived · Council Link
AMENDED PROPOSED REAR BUILDING - GROUND FLOOR PLAN
Amended Drawings
Not archived · Council Link
AMENDED PROPOSED REAR BUILDING - LOWER GROUND FLOOR PLAN
Amended Drawings
Not archived · Council Link
AMENDED PROPOSED REAR BUILDING - ROOF PLAN
Amended Drawings
Not archived · Council Link
AMENDED PROPOSED REAR BUILDING - WEST & SOUTH ELEVATIONS
Amended Drawings
Not archived · Council Link
AMENDED PROPOSED SECTIONS FF AND GG
Amended Drawings
Not archived · Council Link
AMENDED PROPOSED SITE LAYOUT PLAN
Amended Drawings
Not archived · Council Link
APPRAISAL TOOL - INPUT SHEET 1
Report
Not archived · Council Link
BAT REPORT
Report
Not archived · Council Link
BCIS CONSTRUCTION DETAILS
Report
Not archived · Council Link
BIODIVERSITY METRIC CALCULATION TOOL
Report
Not archived · Council Link
BIODIVERSITY NET GAIN REPORT
Report
Not archived · Council Link
CONSTRUCTION COSTS ESTIMATES
Report
Not archived · Council Link
CYCLE AND REFUSE STORE 1 - ELEVATIONS
Amended Drawings
Not archived · Council Link
CYCLE AND REFUSE STORE 1 - FLOOR PLANS
Amended Drawings
Not archived · Council Link
CYCLE AND REFUSE STORE 2 - ELEVATIONS
Amended Drawings
Not archived · Council Link
CYCLE AND REFUSE STORE 2 - FLOOR PLANS
Amended Drawings
Not archived · Council Link
DAYLIGHT AND SUNLIGHT ASSESSMENT
Statements / Assessments
Not archived · Council Link
DEMOLITION EAST ELEVATION
Amended Drawings
Not archived · Council Link
DEMOLITION FIRST FLOOR PLANS
Amended Drawings
Not archived · Council Link
DEMOLITION GROUND FLOOR PLAN
Amended Drawings
Not archived · Council Link
DEMOLITION ROOF PLANS
Amended Drawings
Not archived · Council Link
DEMOLITION SECOND FLOOR PLANS
Amended Drawings
Not archived · Council Link
DEMOLITION WEST ELEVATION
Amended Drawings
Not archived · Council Link
DESIGN AND ACCESS STATEMENT
Statements / Assessments
Not archived · Council Link
EXISTING BASEMENT FLOOR PLAN
Drawing
Not archived · Council Link
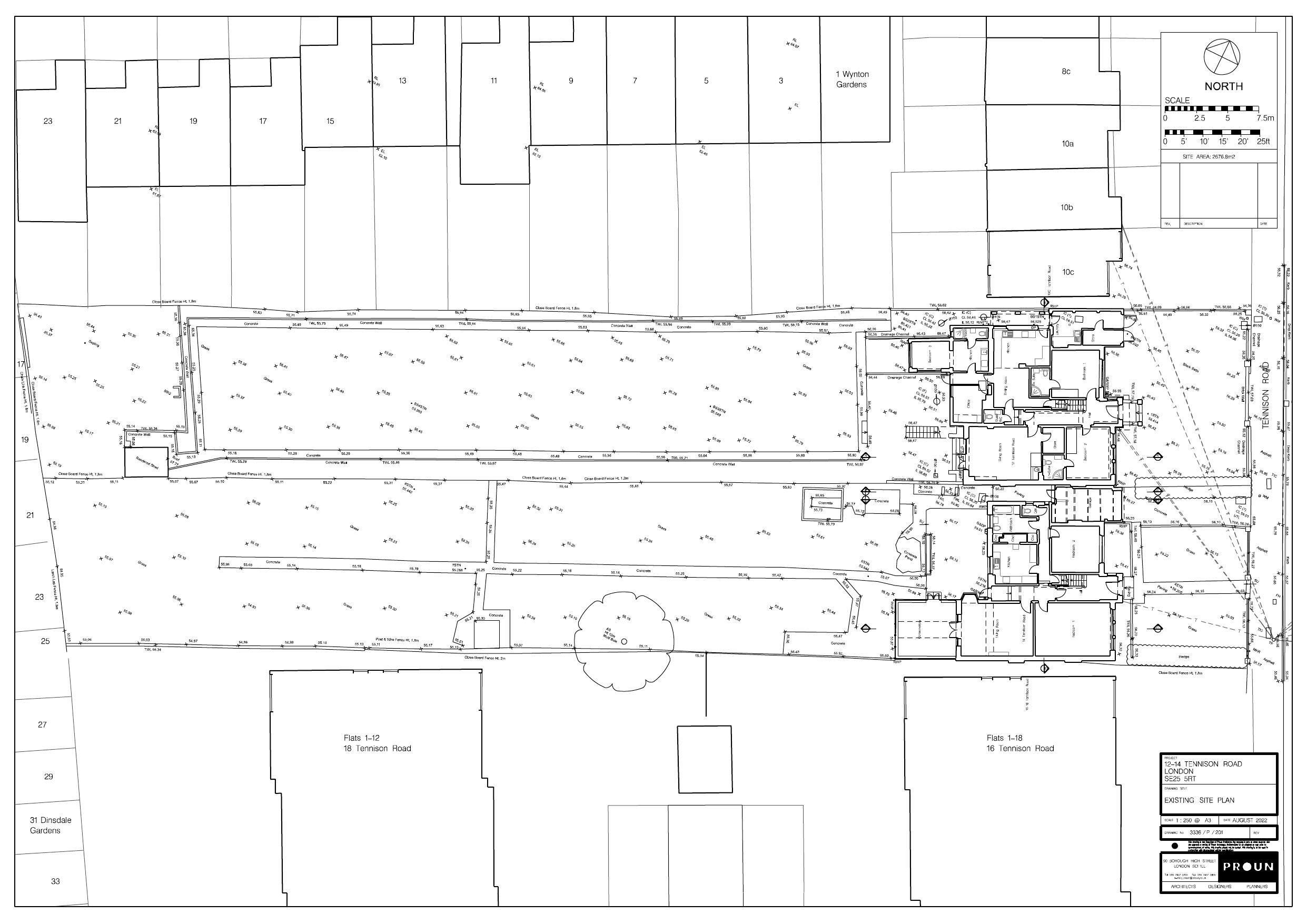
EXISTING BLOCK PLAN
Drawing
Not archived · Council Link
EXISTING EAST ELEVATION
Drawing
Not archived · Council Link
EXISTING FIRST FLOOR PLANS
Drawing
Not archived · Council Link
EXISTING GROUND FLOOR PLANS
Drawing
Not archived · Council Link
EXISTING LOCATION PLAN
Drawing
Not archived · Council Link
EXISTING NORTH ELEVATION
Drawing
Not archived · Council Link
EXISTING ROOF PLANS
Drawing
Not archived · Council Link
EXISTING SALES COMPARABLES
Report
Not archived · Council Link
EXISTING SECOND FLOOR PLANS
Drawing
Not archived · Council Link
EXISTING SECTION A-A
Drawing
Not archived · Council Link
EXISTING SECTION B-B
Drawing
Not archived · Council Link
EXISTING SECTION C-C
Drawing
Not archived · Council Link
EXISTING SECTION D-D
Drawing
Not archived · Council Link
EXISTING SECTION E-E
Drawing
Not archived · Council Link
Drawing
Archived · Council Link
EXISTING SOUTH ELEVATION
Drawing
Not archived · Council Link
EXISTING WEST ELEVATION
Drawing
Not archived · Council Link
FINANCIAL VIABILITY ASSESSMENT
Statements / Assessments
Not archived · Council Link
FIRE STATEMENT
Statements / Assessments
Not archived · Council Link
FLOOD RISK ASSESSMENT
Statements / Assessments
Not archived · Council Link
GENERAL ARRANGEMENT PLAN
Drawing
Not archived · Council Link
HCA APPRAISAL TOOL - INPUT SHEET 1
Report
Not archived · Council Link
HEALTH IMPACT ASSESSMENT
Report
Not archived · Council Link
HERITAGE STATEMENT
Statements / Assessments
Not archived · Council Link
MATERIALS SCHEDULE - INDICATIVE
Report
Not archived · Council Link
PLANNING STATEMENT
Statements / Assessments
Not archived · Council Link
PRE-APP RESPONSE
Statements / Assessments
Not archived · Council Link
PRELIMINARY ECOLOGICAL APPRAISAL
Report
Not archived · Council Link
PROPOSED 3D VIEWS
Drawing
Not archived · Council Link
PROPOSED BASEMENT FLOOR PLANS
Drawing
Not archived · Council Link
PROPOSED BLOCK PLAN
Drawing
Not archived · Council Link
PROPOSED EAST ELEVATION
Drawing
Not archived · Council Link
PROPOSED FIRST FLOOR PLANS
Drawing
Not archived · Council Link
PROPOSED GROUND FLOOR PLANS
Drawing
Not archived · Council Link
PROPOSED NORTH ELEVATION
Drawing
Not archived · Council Link
PROPOSED REAR BUILDING EAST & NORTH ELEVATIONS
Drawing
Not archived · Council Link
PROPOSED REAR BUILDING EAST AND NORTH ELEVATIONS
Amended Drawings
Not archived · Council Link
PROPOSED REAR BUILDING FIRST FLOOR PLAN
Drawing
Not archived · Council Link
PROPOSED REAR BUILDING GROUND FLOOR PLAN
Drawing
Not archived · Council Link
PROPOSED REAR BUILDING LOWER GROUND FLOOR PLAN
Drawing
Not archived · Council Link
PROPOSED REAR BUILDING ROOF PLAN
Drawing
Not archived · Council Link
PROPOSED REAR BUILDING SECTIONS F-F & G-G
Drawing
Not archived · Council Link
PROPOSED REAR BUILDING WEST & SOUTH ELEVATIONS
Drawing
Not archived · Council Link
PROPOSED REAR BUILDING WEST AND SOUTH ELEVATIONS
Amended Drawings
Not archived · Council Link
PROPOSED REFUSE & CYCLE STORE 1 PLANS
Drawing
Not archived · Council Link
PROPOSED REFUSE & CYCLE STORE 2 ELEVATIONS
Drawing
Not archived · Council Link
PROPOSED REFUSE & CYCLE STORE 2 PLANS
Drawing
Not archived · Council Link
PROPOSED ROOF PLANS
Drawing
Not archived · Council Link
PROPOSED SALES COMPARABLES
Report
Not archived · Council Link
PROPOSED SECOND FLOOR PLANS
Drawing
Not archived · Council Link
PROPOSED SECTION A-A
Drawing
Not archived · Council Link
PROPOSED SECTION B-B
Drawing
Not archived · Council Link
PROPOSED SECTION C-C
Drawing
Not archived · Council Link
PROPOSED SECTION D-D
Drawing
Not archived · Council Link
PROPOSED SECTION E-E
Drawing
Not archived · Council Link
PROPOSED SECTIONS FF AND GG
Amended Drawings
Not archived · Council Link
Amended Drawings
Archived · Council Link
Drawing
Archived · Council Link
Amended Drawings
Archived · Council Link
PROPOSED SOUTH ELEVATION
Drawing
Not archived · Council Link
PROPOSED WEST ELEVATION
Drawing
Not archived · Council Link
REFUSE & CYCLE STORE 1 ELEVATIONS
Drawing
Not archived · Council Link
REVISED FLOOD RISK ASSESSMENT
Report
Not archived · Council Link
REVISED FLOOD RISK ASSESSMENT
Report
Not archived · Council Link
SCHEDULE OF ACCOMMODATION
Report
Not archived · Council Link
SITE NOTICE NEIGHBOUR NOTIFICATION
Site Notices
Not archived · Council Link
STATEMENT OF COMMUNITY INVOLVEMENT
Other
Not archived · Council Link
SUSTAINABILITY & ENERGY ASSESSMENT
Report
Not archived · Council Link
SUSTAINABILITY APPRAISAL
Drawing
Not archived · Council Link
THE LOCATION PLAN
Drawing
Not archived · Council Link
TRANSPORT ASSESSMENT
Statements / Assessments
Not archived · Council Link
TYPICAL BALCONY DETAILS
Amended Drawings
Not archived · Council Link
UK HOUSING MARKET UPDATE - SAVILLS
Report
Not archived · Council Link
UPDATED DAYLIGHT & SUNLIGHT ASSESSMENT
Report
Not archived · Council Link
UPDATED FLOOD RISK ASSESSMENT
Report
Not archived · Council Link
VIABILITY ASSESSMENT FIGURES
Report
Not archived · Council Link

Take Action

Make your voice heard. Authorities need to hear from people who support new homes.

✉️ Write Email in Support View on Council Portal