← Back to Croydon

Status

Awaiting decision New housing
Received
12 May 2025
New dwellings
8

Summary

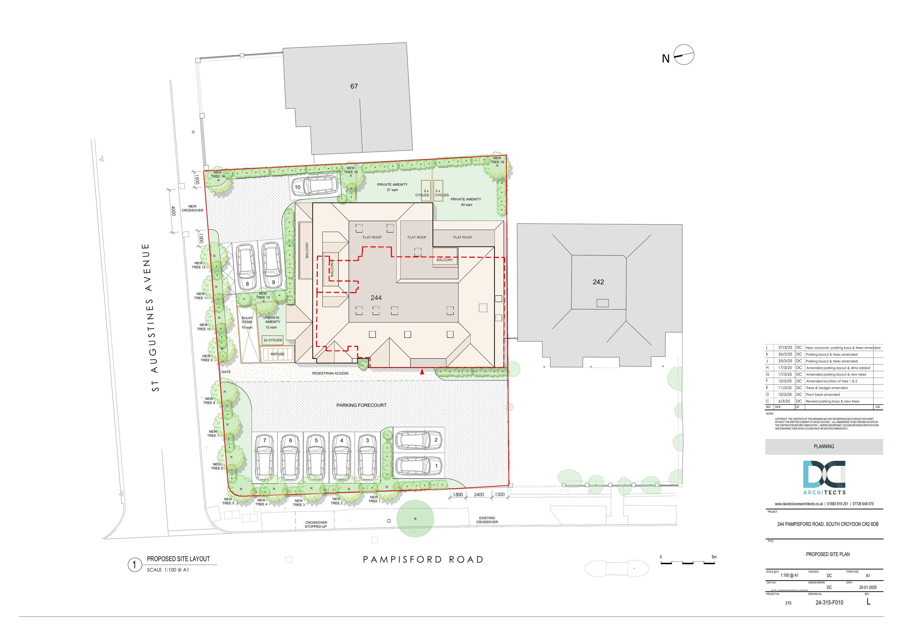
Alter and extend apartment building to provide eight apartments with associated landscaping.

Full Proposal

Alterations and extension to the existing residential apartment building to provide 8 no. apartments, with associated soft and hard landscaping.

Documents

APPLICATION FORM - WITHOUT PERSONAL DATA
Application Form
Not archived · Council Link
BIODIVERSITY METRIC CALCULATION TOOL
Statements / Assessments
Not archived · Council Link
DAYLIGHT OR SUNLIGHT ASSESSMENT
Statements / Assessments
Not archived · Council Link
DESIGN AND ACCESS STATEMENT
Statements / Assessments
Not archived · Council Link
ENERGY STATEMENT
Statements / Assessments
Not archived · Council Link
EXISTING & RETAINED FRONT ELEVATION
Drawing
Not archived · Council Link
FIRE STATEMENT
Statements / Assessments
Not archived · Council Link
FLOOD RISK ASSESSMENT
Statements / Assessments
Not archived · Council Link
FLOOR PLAN - EXISTING
Drawing
Not archived · Council Link
LANDSCAPING DETAILS
Drawing
Not archived · Council Link
PLANNING STATEMENT
Statements / Assessments
Not archived · Council Link
PRELIMINARY ECOLOGICAL APPRAISAL
Statements / Assessments
Not archived · Council Link
PROPOSED BUILDING SECTION
Amended Drawings
Not archived · Council Link
PROPOSED CYCLE STORE & REFUSE STOR
Statements / Assessments
Not archived · Council Link
PROPOSED CYCLE STORE & REFUSE STORE
Amended Drawings
Not archived · Council Link
PROPOSED FIRST FLOOR PLAN
Amended Drawings
Not archived · Council Link
PROPOSED FIRST FLOOR PLAN
Drawing
Not archived · Council Link
PROPOSED FLANK & REAR ELEVATION (SHEET 2OF2)
Drawing
Not archived · Council Link
PROPOSED FLANK & REAR ELEVATION (SHEET 2OF2)
Amended Drawings
Not archived · Council Link
PROPOSED FRONT & FLANK ELEVATION (SHEET 1OF2)
Amended Drawings
Not archived · Council Link
PROPOSED FRONT & FLANK ELEVATION (SHEET 1OF2)
Drawing
Not archived · Council Link
PROPOSED GROUND FLOOR PLAN
Amended Drawings
Not archived · Council Link
PROPOSED GROUND FLOOR PLAN
Drawing
Not archived · Council Link
PROPOSED LANDSCAPING PLA
Statements / Assessments
Not archived · Council Link
PROPOSED LANDSCAPING PLAN
Amended Drawings
Not archived · Council Link
PROPOSED SECOND FLOOR PLAN
Amended Drawings
Not archived · Council Link
PROPOSED SECOND FLOOR PLAN
Drawing
Not archived · Council Link
Amended Drawings
Archived · Council Link
Drawing
Archived · Council Link
PROPOSED STREET ELEVATION (PAMPISFORD ROAD)
Amended Drawings
Not archived · Council Link
SITE/BLOCK PLAN - EXISTING
Drawing
Not archived · Council Link
STREET SCENE/CONTEXT PLAN - PROPOSED
Drawing
Not archived · Council Link
STREET SCENE/CONTEXT PLAN - PROPOSED
Drawing
Not archived · Council Link
SWEPT PATHS
Additional Plans / Correspondence
Not archived · Council Link
TRANSPORT ASSESSMENT
Statements / Assessments
Not archived · Council Link

Take Action

Make your voice heard. Authorities need to hear from people who support new homes.

✉️ Write Email in Support View on Council Portal