← Back to Croydon

Status

Awaiting decision Change of use
Received
11 Aug 2025
New dwellings
2

Summary

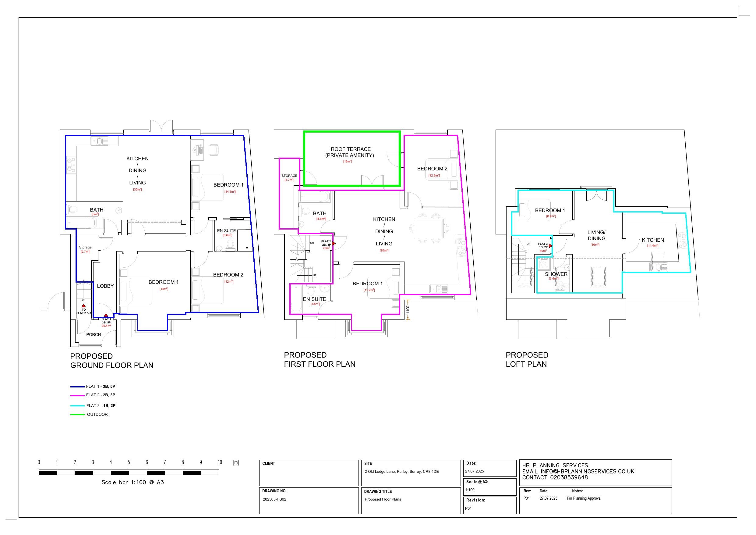
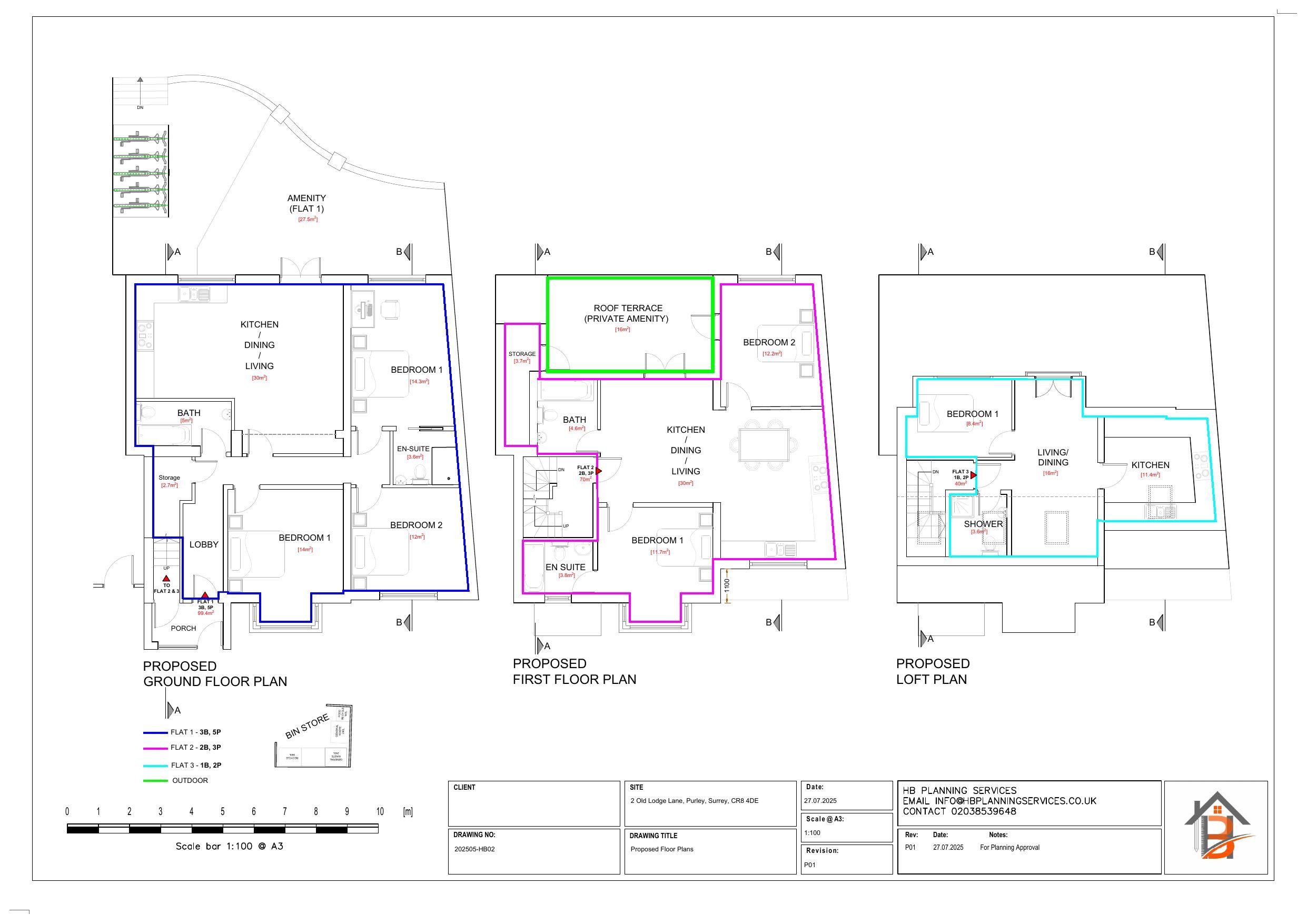
Conversion of existing dwelling to three self-contained flats with dormer, porch and rooflights.

Full Proposal

Alterations, conversion of existing dwellinghouse to provide 3x self-contained flats, erection of rear dormer and front porch extension, provision of 4x rooflights in front roofslope and associated cycle and refuse storage

Documents

APPLICATION FORM - WITHOUT PERSONAL DATA
Application Form
Not archived · Council Link
EXISTING AND PROPOSED ROOF PLANS
Drawing
Not archived · Council Link
EXISTING AND PROPOSED SECTIONS
Amended Drawings
Not archived · Council Link
EXISTING AND PROPOSED SECTIONS
Amended Drawings
Not archived · Council Link
EXISTING AND PROPOSED SECTIONS
Drawing
Not archived · Council Link
EXISTING AND PROPOSED SECTIONS
Drawing
Not archived · Council Link
EXISTING AND PROPOSED STREET SCENE
Amended Drawings
Not archived · Council Link
EXISTING ELEVATIONS
Amended Drawings
Not archived · Council Link
EXISTING ELEVATIONS
Drawing
Not archived · Council Link
EXISTING FLOOR PLANS
Amended Drawings
Not archived · Council Link
EXISTING FLOOR PLANS
Drawing
Not archived · Council Link
Amended Drawings
Archived · Council Link
FIRE SAFETY STRATEGY
Statements / Assessments
Not archived · Council Link
FLOOD RISK ASSESSMENT
Statements / Assessments
Not archived · Council Link
PLANNING STATEMENT
Statements / Assessments
Not archived · Council Link
PRE-APPLICATION ADVICE STATEMENT
Statements / Assessments
Not archived · Council Link
PROPOSED BLOCK PLAN
Drawing
Not archived · Council Link
PROPOSED ELEVATIONS
Amended Drawings
Not archived · Council Link
PROPOSED ELEVATIONS
Drawing
Not archived · Council Link
Amended Drawings
Archived · Council Link
Drawing
Archived · Council Link
Amended Drawings
Archived · Council Link
Amended Drawings
Archived · Council Link
Drawing
Archived · Council Link
Drawing
Archived · Council Link
SITE NOTICE NEIGHBOUR NOTIFICATION
Site Notices
Not archived · Council Link

Take Action

Make your voice heard. Authorities need to hear from people who support new homes.

✉️ Write Email in Support View on Council Portal