← Back to Croydon

Status

Awaiting decision New housing
Received
06 Oct 2025
New dwellings
1

Full Proposal

Erection of 1x 5 bedroom dwelling with integral garage, parking for 2 cars and associated cycle, refuse and landscaping located in rear garden of 8 Preston Road and fronting Grecian Crescent.

Documents

AMENDMENT : A SUMMARY OF THE ATTACHMENTS IN THE PROPOSAL
Drawing
Not archived · Council Link
AMENDMENT : APPLICATION FORM - WITHOUT PERSONAL DATA
Drawing
Not archived · Council Link
AMENDMENT : BLOCK PLAN OF THE SITE
Drawing
Not archived · Council Link
AMENDMENT : COMMUNITY INFRASTRUCTURE LEVY - COMPLETED FORM
Drawing
Not archived · Council Link
AMENDMENT : DELTA SUMMARY
Drawing
Not archived · Council Link
AMENDMENT : ELEVATION (REAR) - EXISTING
Drawing
Not archived · Council Link
AMENDMENT : FIRE STATEMENT
Drawing
Not archived · Council Link
AMENDMENT : FLOOD RISK ASSESSMENT
Drawing
Not archived · Council Link
AMENDMENT : HOW THE FEE WAS CALCULATED
Drawing
Not archived · Council Link
AMENDMENT : MIXED/COMBINED PLANS
Drawing
Not archived · Council Link
AMENDMENT : MIXED/COMBINED PLANS
Drawing
Not archived · Council Link
AMENDMENT : MIXED/COMBINED PLANS
Drawing
Not archived · Council Link
AMENDMENT : MIXED/COMBINED PLANS
Drawing
Not archived · Council Link
AMENDMENT : PHOTOGRAPHS AND PHOTOMONTAGES
Drawing
Not archived · Council Link
AMENDMENT : PROPOSAL
Drawing
Not archived · Council Link
AMENDMENT : SITE/BLOCK PLAN - EXISTING
Drawing
Not archived · Council Link
AMENDMENT : THE LOCATION PLAN
Drawing
Not archived · Council Link
APPLICATION FORM - WITHOUT PERSONAL DATA
Application Form
Not archived · Council Link
BLOCK PLAN OF THE SITE
Drawing
Not archived · Council Link
COMMUNITY INFRASTRUCTURE LEVY - COMPLETED FORM
Drawing
Not archived · Council Link
EXISTING
Drawing
Not archived · Council Link
EXISTING ELEVATIONS
Drawing
Not archived · Council Link
EXISTING ELEVATIONS
Drawing
Not archived · Council Link
FIRE STATEMENT
Drawing
Not archived · Council Link
FIRE STATEMENT
Statements / Assessments
Not archived · Council Link
FLOOD RISK ASSESSMENT
Drawing
Not archived · Council Link
FLOOD RISK ASSESSMENT
Statements / Assessments
Not archived · Council Link
PHOTOGRAPHS AND PHOTOMONTAGES
Drawing
Not archived · Council Link
POLLARDED YEW
Other
Not archived · Council Link
PROPOSED BLOCK PLAN
Drawing
Not archived · Council Link
PROPOSED BLOCK PLAN OF THE SITE
Drawing
Not archived · Council Link
PROPOSED BOUNDARY
Drawing
Not archived · Council Link
PROPOSED DRAWINGS
Drawing
Not archived · Council Link
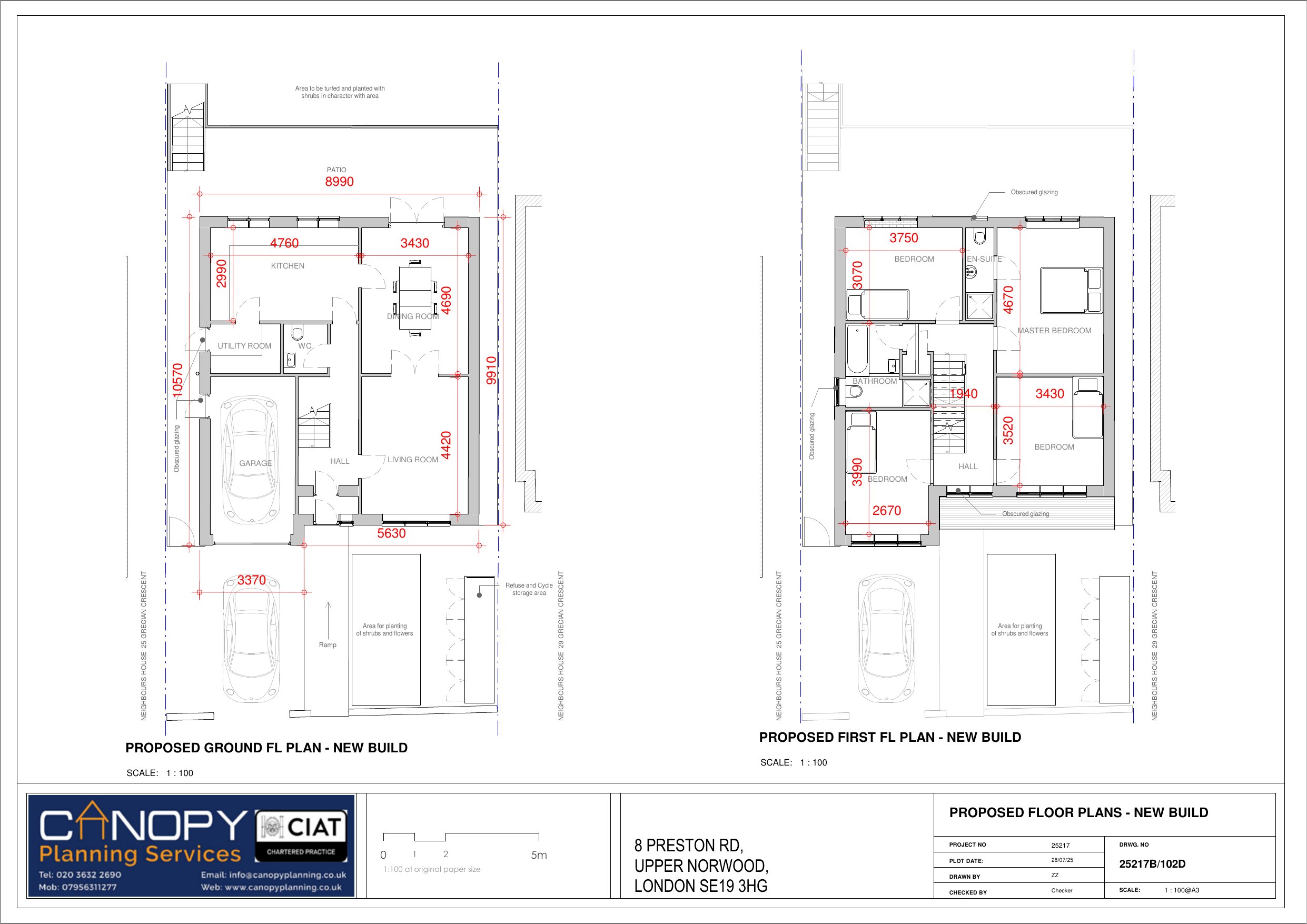
PROPOSED GROUND AND FIRST FLOOR
Drawing
Not archived · Council Link
PROPOSED OS AND BLOCK PLAN
Drawing
Not archived · Council Link
Drawing
Archived · Council Link
REFUSE CYCLE AND PARKING
Drawing
Not archived · Council Link
REFUSE CYCLE AND PARKING
Additional Plans / Correspondence
Not archived · Council Link
SITE NOTICE
Photo's
Not archived · Council Link
SITE NOTICE NEIGHBOUR NOTIFICATION
Site Notices
Not archived · Council Link
SITE NOTICES
Photo's
Not archived · Council Link
SITE/BLOCK PLAN - EXISTING
Drawing
Not archived · Council Link
THE LOCATION PLAN
Drawing
Not archived · Council Link
TREE SURVEY
Additional Plans / Correspondence
Not archived · Council Link
YES TREE
Photo's
Not archived · Council Link

Take Action

Make your voice heard. Authorities need to hear from people who support new homes.

✉️ Write Email in Support View on Council Portal