← Back to Croydon

Status

Awaiting decision Change of use
Received
08 Dec 2025
New dwellings
0

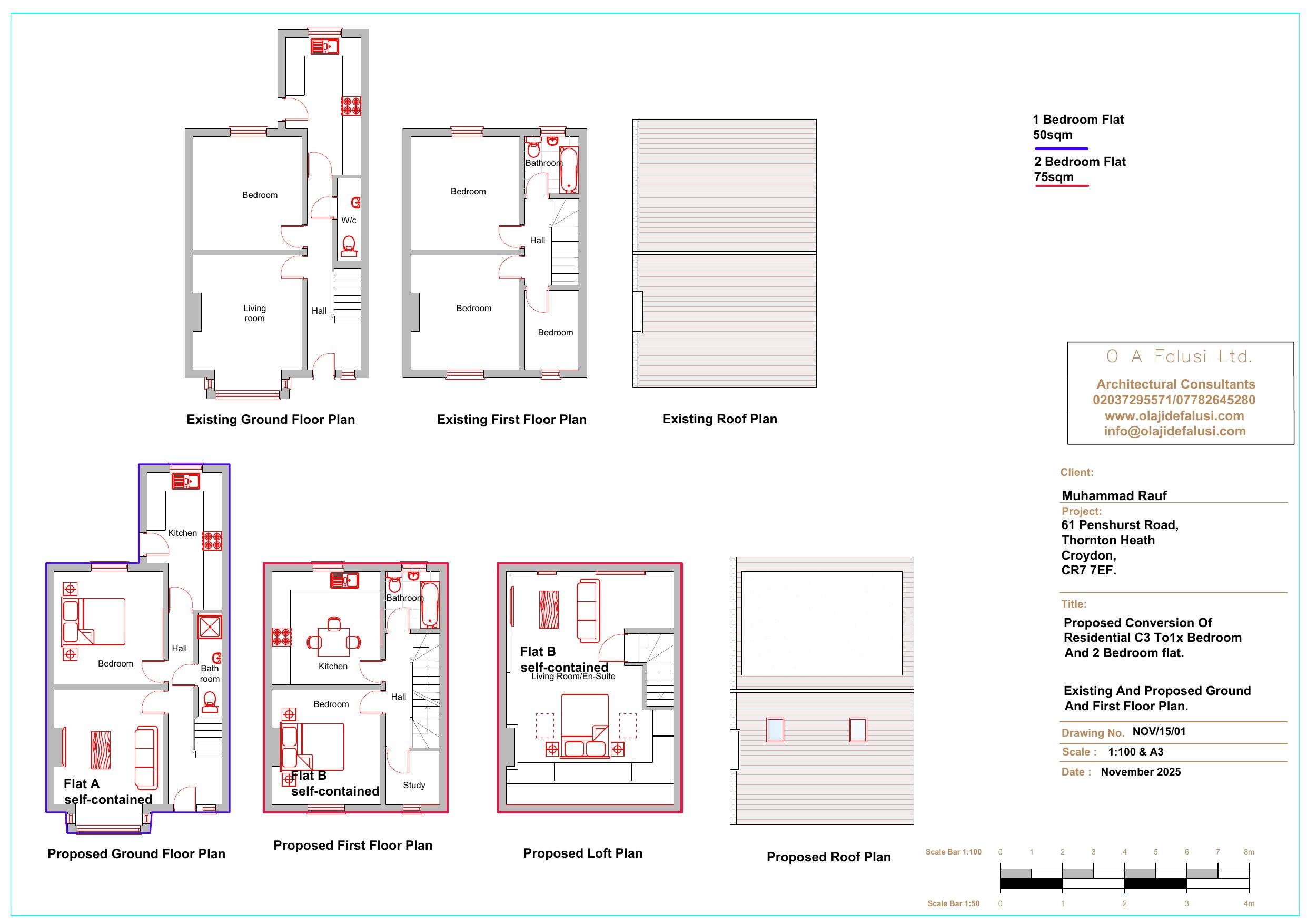
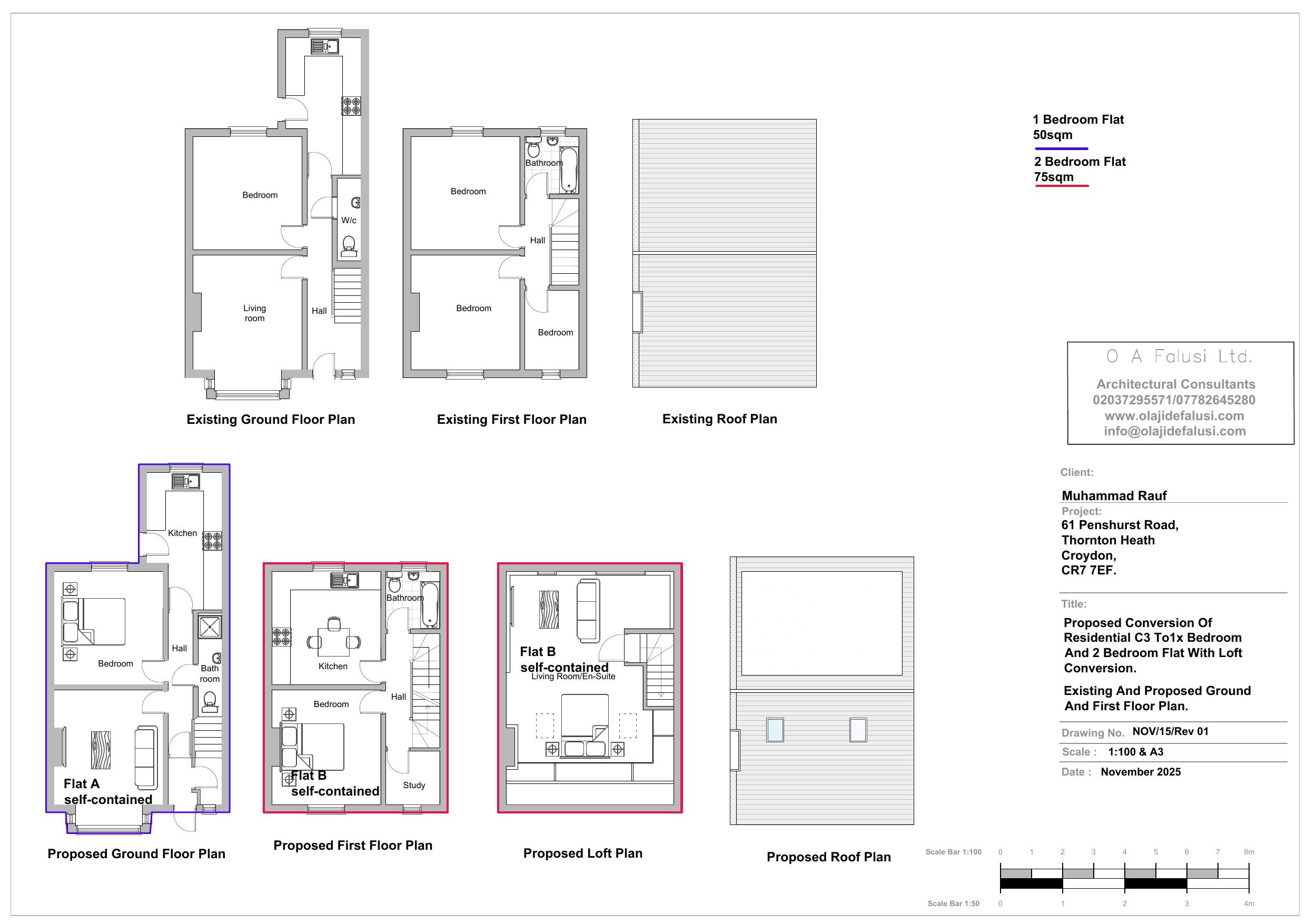
Full Proposal

Conversion to form 2 flats, alterations and erection of dormer extension on the rear roof slope

Documents

AMENDED - BLOCK PLAN
Amended Drawings
Not archived · Council Link
AMENDED - LOCATION PLAN
Amended Drawings
Not archived · Council Link
APPLICATION FORM - WITHOUT PERSONAL DATA
Application Form
Not archived · Council Link
DESIGN AND ACCESS STATEMENT
Statements / Assessments
Not archived · Council Link
EXISTING BLOCK PLAN
Drawing
Not archived · Council Link
EXISTING ELEVATIONS
Drawing
Not archived · Council Link
FIRE STRATEGY STATEMENT
Statements / Assessments
Not archived · Council Link
FLOOD RISK ASSESSMENT
Statements / Assessments
Not archived · Council Link
PROPOSED ELEVATIONS
Drawing
Not archived · Council Link
SUPERSEDED - AMENDED - BLOCK PLAN
Amended Drawings
Not archived · Council Link
SUPERSEDED - AMENDED - BLOCK PLAN
Amended Drawings
Not archived · Council Link
SUPERSEDED - PROPOSED BLOCK PLAN
Drawing
Not archived · Council Link
SUPERSEDED - THE LOCATION PLAN
Drawing
Not archived · Council Link

Take Action

Make your voice heard. Authorities need to hear from people who support new homes.

✉️ Write Email in Support View on Council Portal