← Back to Croydon

Status

Awaiting decision New housing
Received
19 Dec 2025
New dwellings
1

Full Proposal

Erection of a two-storey dwelling (with lower ground cycle and refuse storage) with associated parking and landscaping

Documents

APPLICATION FORM - WITHOUT PERSONAL DATA
Application Form
Not archived · Council Link
DESIGN AND ACCESS STATEMENT
Statements / Assessments
Not archived · Council Link
Drawing
Archived · Council Link
EXISTING STREET ELEVATION
Drawing
Not archived · Council Link
FIRE STATEMENT
Statements / Assessments
Not archived · Council Link
FLOOD RISK ASSESSMENT
Statements / Assessments
Not archived · Council Link
PLANNING STATEMENT
Statements / Assessments
Not archived · Council Link
PROPOSED ELEVATION - FRONT
Drawing
Not archived · Council Link
PROPOSED ELEVATION - REAR
Drawing
Not archived · Council Link
PROPOSED ELEVATION - SIDE (NORTH)
Drawing
Not archived · Council Link
PROPOSED ELEVATION - SIDE (SOUTH)
Drawing
Not archived · Council Link
PROPOSED FLOOR PLAN- FIRST FLOOR
Drawing
Not archived · Council Link
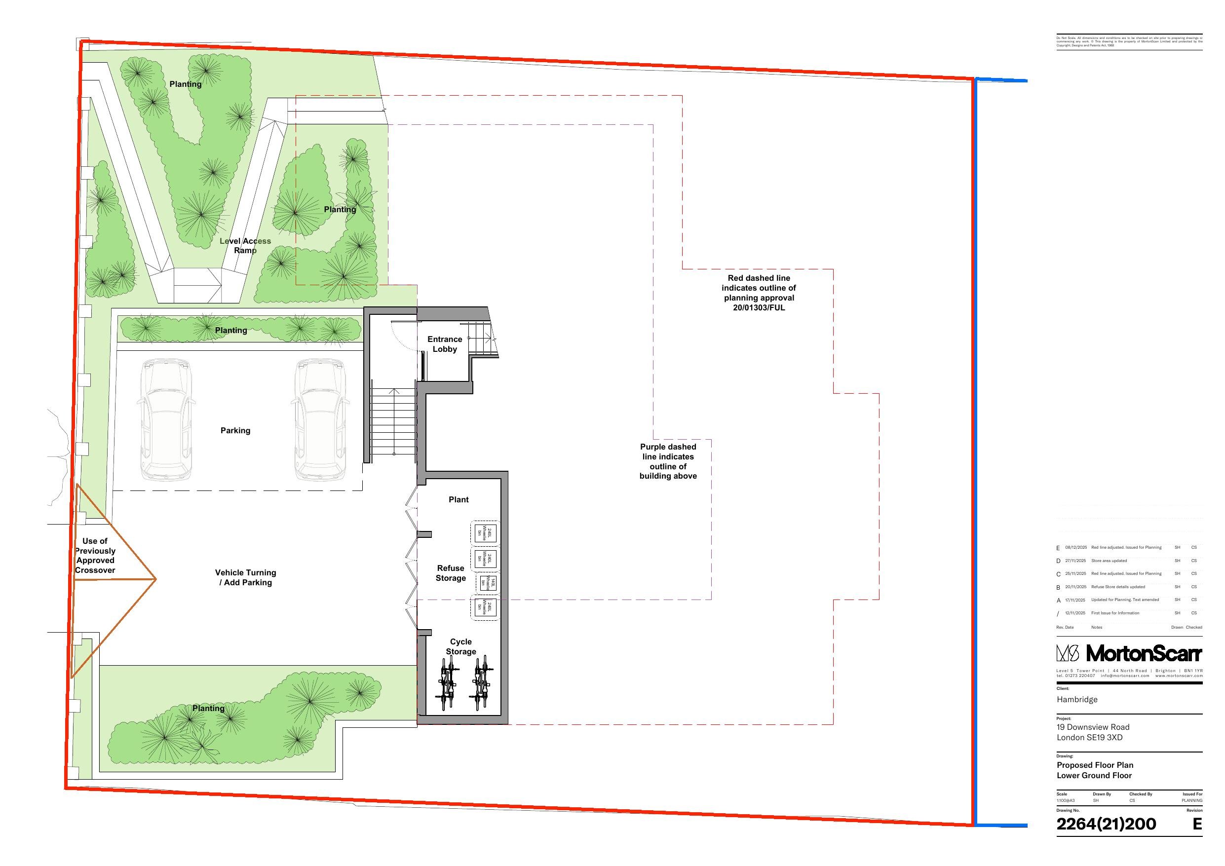
PROPOSED FLOOR PLAN- LOWER GROUND
Drawing
Not archived · Council Link
PROPOSED FLOOR PLAN- UPPER GROUND FLOOR
Drawing
Not archived · Council Link
PROPOSED LOWER GROUND FLOOR
Drawing
Not archived · Council Link
PROPOSED ROOF PLAN
Plans
Not archived · Council Link
Drawing
Archived · Council Link
Drawing
Archived · Council Link
PROPOSED STREET SCENE
Drawing
Not archived · Council Link
SITE NOTICE NEIGHBOUR NOTIFICATION
Site Notices
Not archived · Council Link
THE LOCATION PLAN
Drawing
Not archived · Council Link
TRANSPORT ASSESSMENT
Drawing
Not archived · Council Link
TREE PROTECTION PLAN
Statements / Assessments
Not archived · Council Link
TREE SURVEY
Statements / Assessments
Not archived · Council Link
Additional Plans / Correspondence
Archived · Council Link
URBAN GREEN FACTOR INFO
Drawing
Not archived · Council Link

Take Action

Make your voice heard. Authorities need to hear from people who support new homes.

✉️ Write Email in Support View on Council Portal