← Back to Croydon

Status

Awaiting decision Change of use
Received
Last month
New dwellings
4

Full Proposal

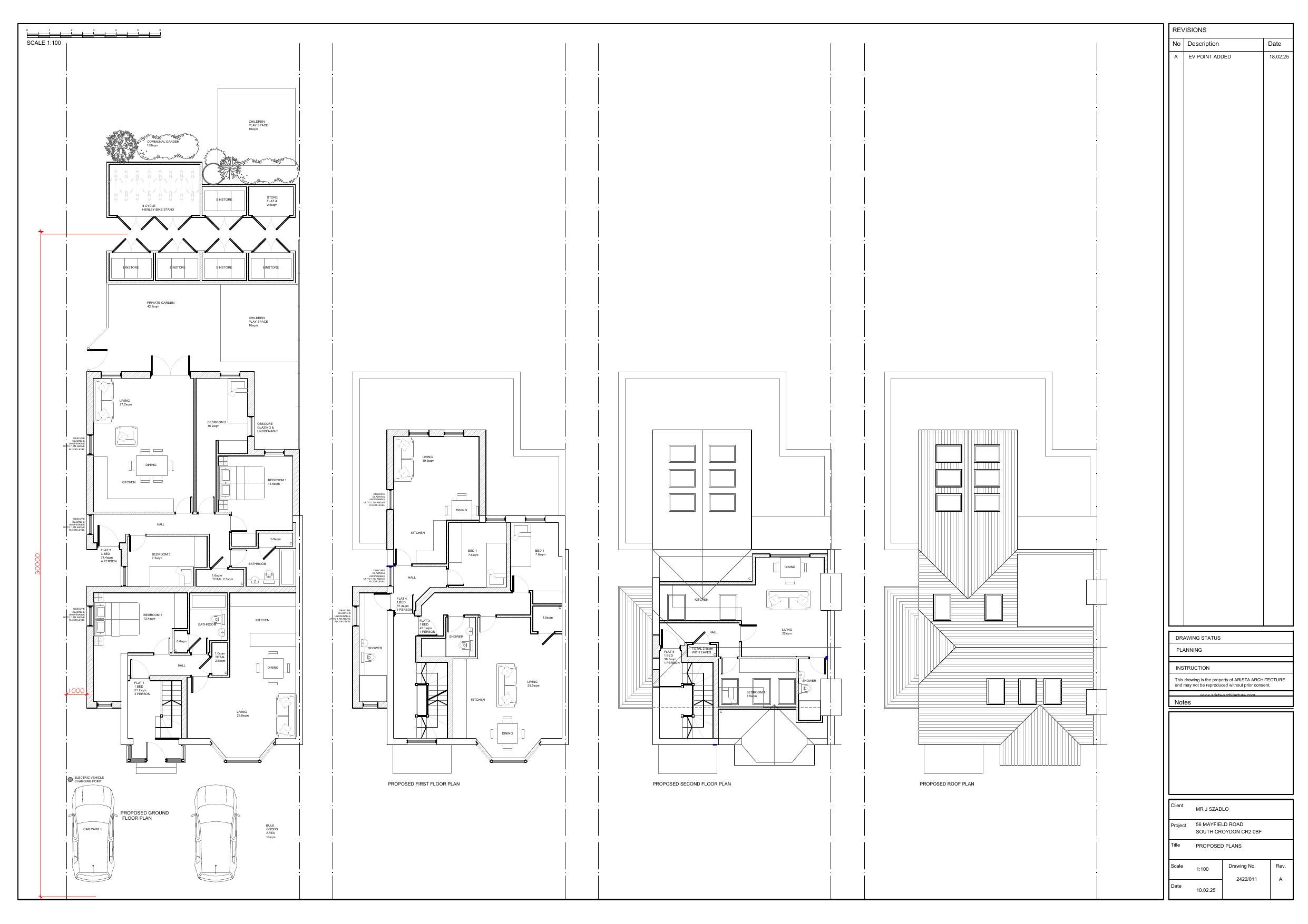
Alterations, conversion of existing dwelling to form 1x 3-bedroom and 4x 1-bedroom flats, erection of part single/two storey rear extension, two-storey side extension, enlargement of rear roof dormer, provision of additional rooflights and windows, provision of associated vehicle parking including extension of vehicle crossover, and cycle and refuse storage.

Documents

APPLICATION FORM - WITHOUT PERSONAL DATA
Application Form
Not archived · Council Link
EXISTING ELEVATIONS AND SECTION
Drawing
Not archived · Council Link
EXISTING FLOOR PLANS
Drawing
Not archived · Council Link
FIRE STATEMENT
Statements / Assessments
Not archived · Council Link
FLOOD RISK ASSESSMENT
Statements / Assessments
Not archived · Council Link
LOCATION PLAN AND BLOCK PLAN
Drawing
Not archived · Council Link
PLANNING STATEMENT
Statements / Assessments
Not archived · Council Link
PROPOSED ELEVATIONS
Drawing
Not archived · Council Link
Drawing
Archived · Council Link

Take Action

Make your voice heard. Authorities need to hear from people who support new homes.

✉️ Write Email in Support View on Council Portal