← Back to Dacorum Borough Council

Status

Awaiting final decision New housing
Received
11 Feb 2025
New dwellings
1

Summary

Demolish two barns; construct new self-build dwelling with store and garage.

Full Proposal

Demolition of two barns, construction of new self build dwelling and new store and garage

Documents

Existing Plan
Archived · Council Link
Amended proposed elevations_barn 01
Proposed Plan
Not archived · Council Link
Amended proposed elevations_barn 02
Proposed Plan
Not archived · Council Link
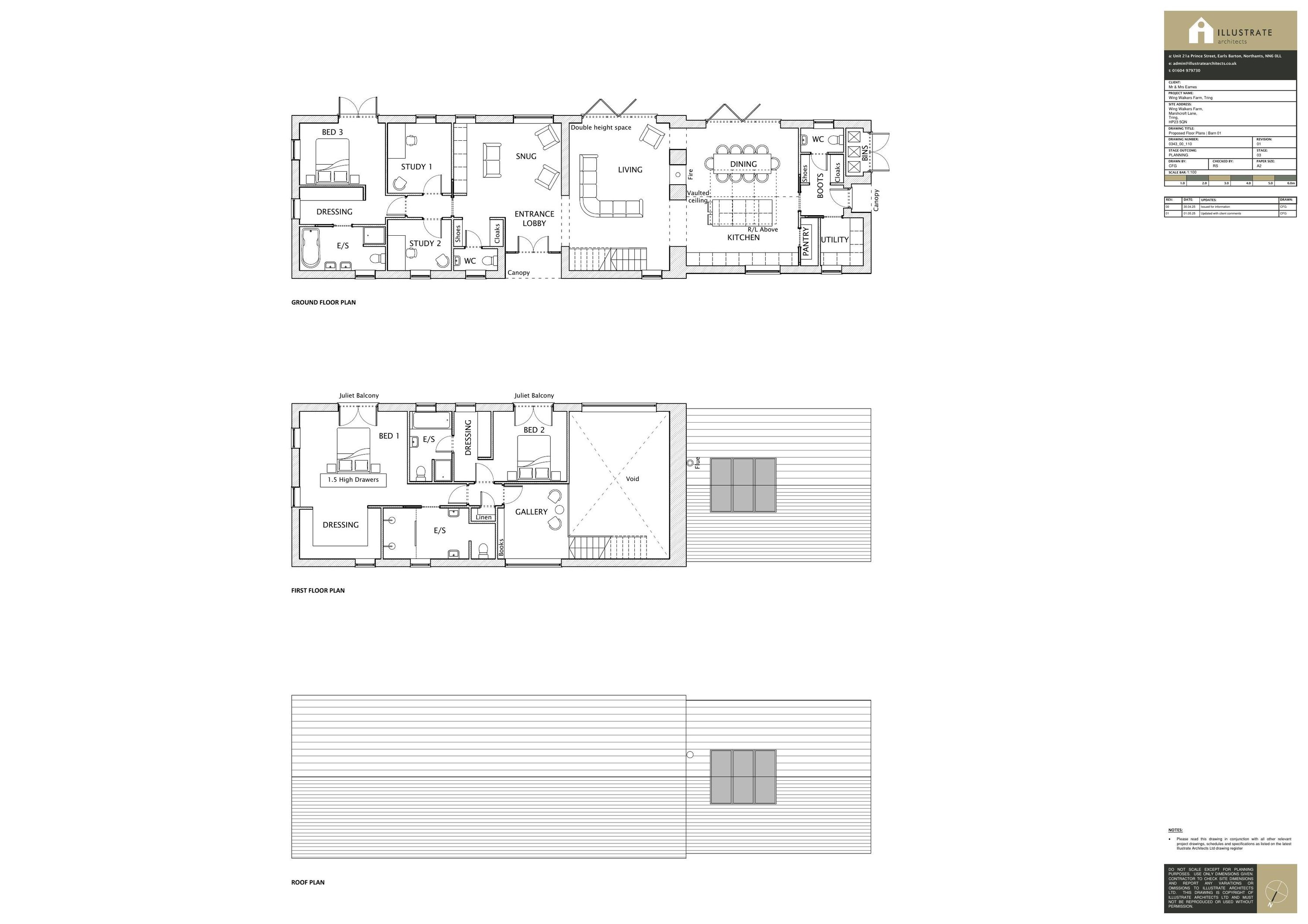
Proposed Floor Plans
Archived · Council Link
Proposed Floor Plans
Archived · Council Link
Amended proposed site elevations & sections
Proposed Plan
Not archived · Council Link
Proposed Plan
Archived · Council Link
Site Location Plan
Archived · Council Link
Applicationformredacted
Application Form Redacted
Not archived · Council Link
Barn a house proposed elevations
Superseded Plans and Drawings
Not archived · Council Link
Superseded Plans and Drawings
Archived · Council Link
Barn b elevations existing
Existing Elevations
Not archived · Council Link
Barn b existing elevations
Existing Elevations
Not archived · Council Link
Barn b garages elevations
Superseded Plans and Drawings
Not archived · Council Link
Barn b garages proposed roof and floor plans
Superseded Plans and Drawings
Not archived · Council Link
Bng technical note
Additional Information
Not archived · Council Link
Environmental and community protection comment
Consultee Comment
Not archived · Council Link
Environmental and community protection comment
Consultee Comment
Not archived · Council Link
Superseded Plans and Drawings
Archived · Council Link
House existing plan and elevations
Existing Plans
Not archived · Council Link
Location plan
Superseded Plans and Drawings
Not archived · Council Link
Natural england full response
Consultee Comment
Not archived · Council Link
Planning statement final 4 07.02
Planning Statement
Not archived · Council Link
Superseded Plans and Drawings
Archived · Council Link
Stage 1, tier 1 preliminary risk assessment
Contamination Report
Not archived · Council Link
Swepth path analysis
Additional Information
Not archived · Council Link
Transport note
Traffic Survey/Statement
Not archived · Council Link

Take Action

Make your voice heard. Authorities need to hear from people who support new homes.

✉️ Write Email in Support View on Council Portal