← Back to Dacorum Borough Council

Status

Awaiting final decision New housing
Received
24 Feb 2025
New dwellings
2

Summary

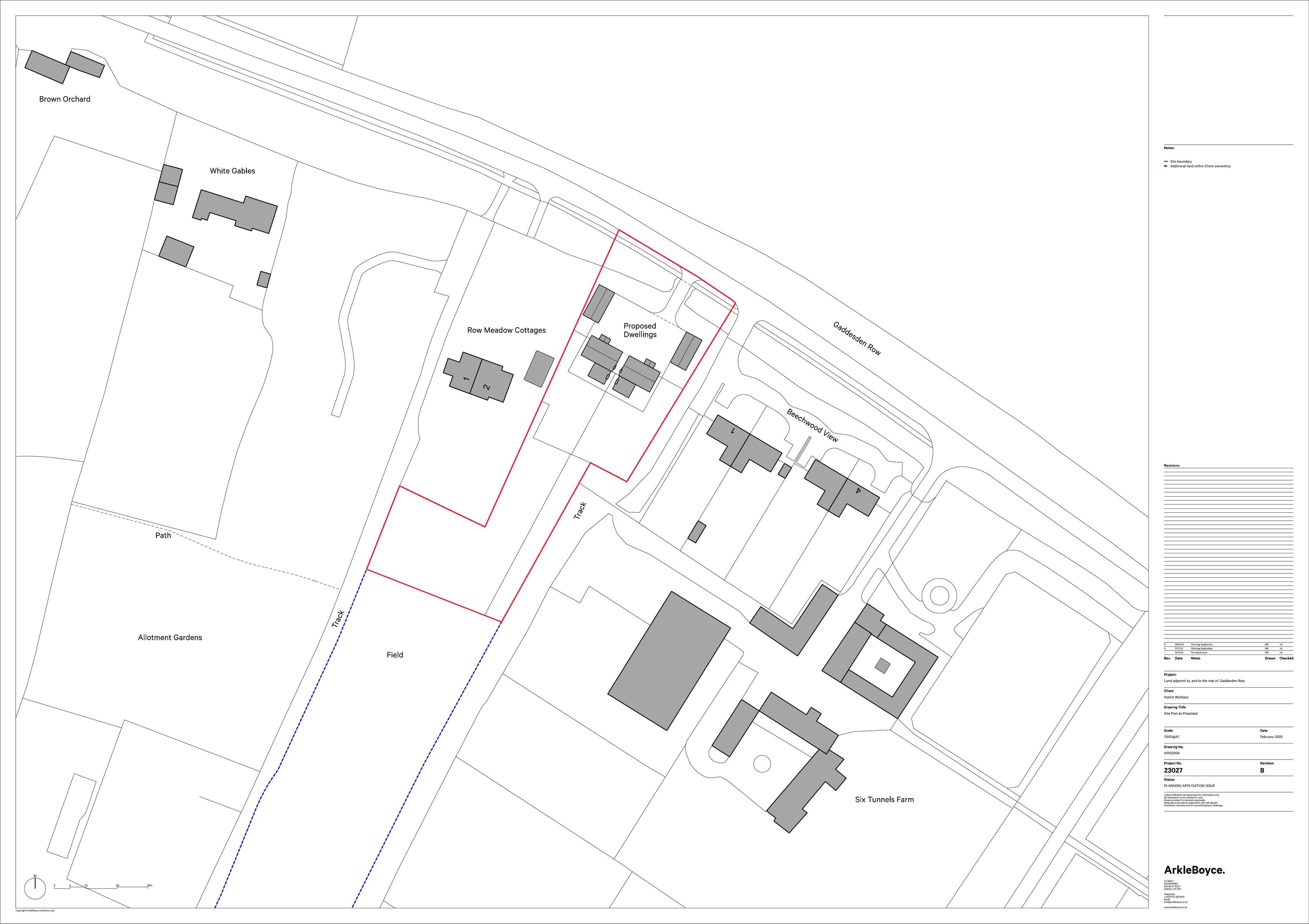
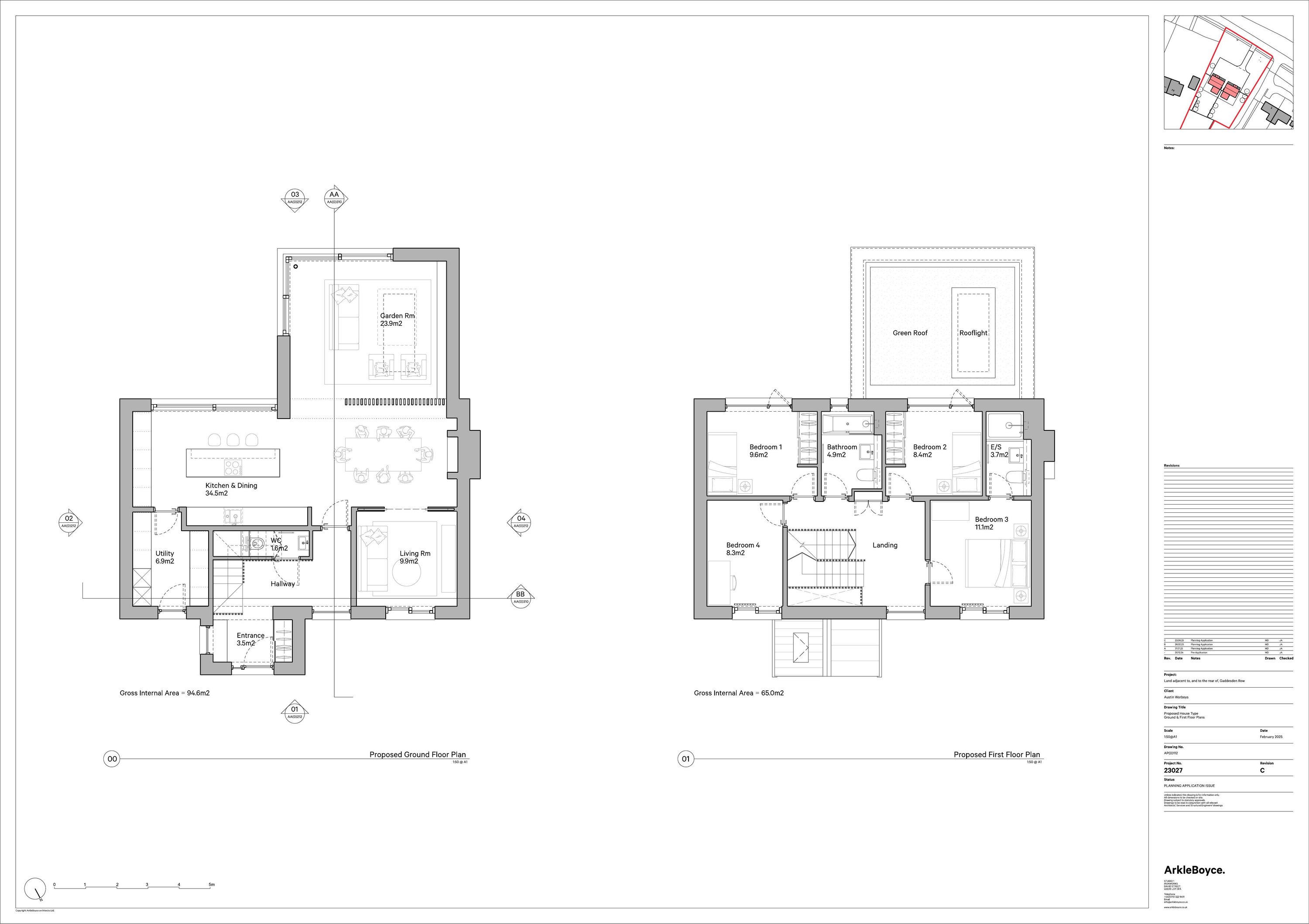
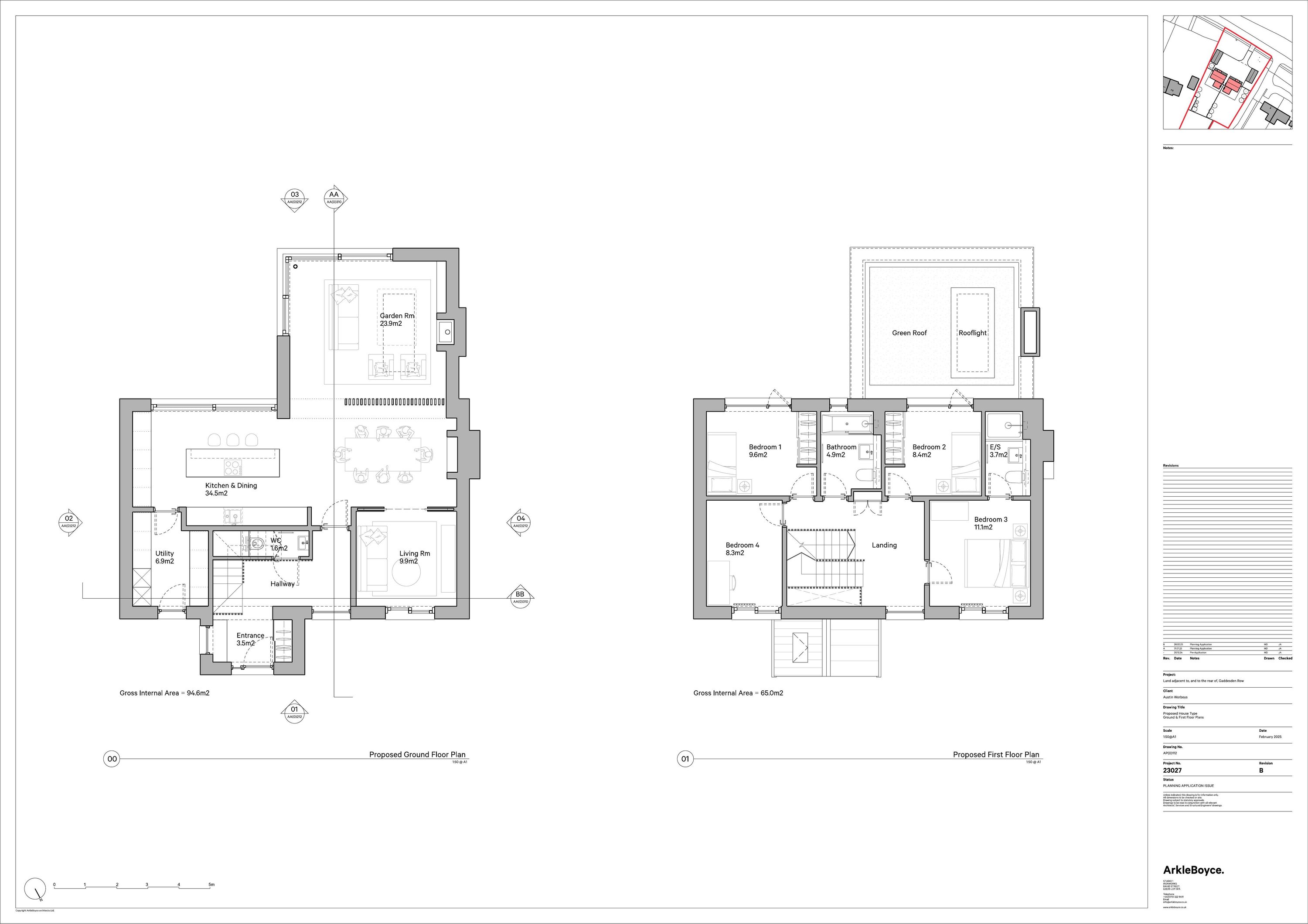
Construction of two detached residential dwellings.

Full Proposal

Construction of two new-build, detached residential dwellings.

Documents

Amended proposed elevations
Proposed Elevations
Not archived · Council Link
Amended proposed floor and roof plans
Proposed Floor Plans
Not archived · Council Link
Proposed Floor Plans
Archived · Council Link
Amended proposed sections
Section Plans
Not archived · Council Link
Amended proposed site elevations
Proposed Elevations
Not archived · Council Link
Site & Other Plans
Archived · Council Link
Amended proposed site/roof
Proposed Plan
Not archived · Council Link
Amended site location proposed
Site Location Plan
Not archived · Council Link
Application form redacted
Application Form Redacted
Not archived · Council Link
Arboricultural report
Arboriculturial Study
Not archived · Council Link
Bng metric
Biodiversity metric calculation tool
Not archived · Council Link
Bng metric pdf
Biodiversity metric calculation tool
Not archived · Council Link
Bng plan
Biodiversity gain plan
Not archived · Council Link
Design and access statement
Design & Access Statement
Not archived · Council Link
Draft hra appropriate assessment
Additional Information
Not archived · Council Link
Site & Other Plans
Archived · Council Link
Location plan
Site Location Plan
Not archived · Council Link
Planning statement
Planning Statement
Not archived · Council Link
Preliminary ecological appraisal
Ecological Survey
Not archived · Council Link
Proposed elevations
Superseded Plans and Drawings
Not archived · Council Link
Proposed floor and roof plans
Superseded Plans and Drawings
Not archived · Council Link
Superseded Plans and Drawings
Archived · Council Link
Proposed garage plan
Superseded Plans and Drawings
Not archived · Council Link
Proposed sections
Superseded Plans and Drawings
Not archived · Council Link
Proposed site elevations
Superseded Plans and Drawings
Not archived · Council Link
Superseded Plans and Drawings
Archived · Council Link
Proposed site/roof
Superseded Plans and Drawings
Not archived · Council Link
Site location proposed
Superseded Plans and Drawings
Not archived · Council Link
Transport statement
Transport Assessment/Statement
Not archived · Council Link

Take Action

Make your voice heard. Authorities need to hear from people who support new homes.

✉️ Write Email in Support View on Council Portal