← Back to Dacorum Borough Council

Status

Awaiting final decision Industrial
Received
10 Mar 2025
New dwellings
0

Summary

Demolition and redevelopment for B8 storage/distribution with ancillary offices, parking, servicing and landscaping.

Full Proposal

Demolition of existing buildings and structures, and redevelopment of site for storage or distribution (Use Class B8) purposes, with ancillary offices and associated parking, servicing, access arrangements, landscaping and other associated works.

Documents

Agent's comments for highways authority
Additional Information
Not archived · Council Link
Appendix 3 avr photomontages
Additional Information
Not archived · Council Link
Application form redacted
Application Form Redacted
Not archived · Council Link
Arboricultural report
Additional Information
Not archived · Council Link
Bat report
Bat Report
Not archived · Council Link
Biodiversity statement & metric assessment
Superseded Plans and Drawings
Not archived · Council Link
Bng metric
Biodiversity metric calculation tool
Not archived · Council Link
Bng metric excel
Superseded Plans and Drawings
Not archived · Council Link
Bng metric pdf
Superseded Plans and Drawings
Not archived · Council Link
Bng statement
Biodiversity statement
Not archived · Council Link
Commercial and economic assessment
Economic Statement
Not archived · Council Link
Design and access statement
Superseded Plans and Drawings
Not archived · Council Link
Design and access statement
Design & Access Statement
Not archived · Council Link
Design and access statement v.2
Superseded Plans and Drawings
Not archived · Council Link
Drainage strategy - dated june 2025
Additional Information
Not archived · Council Link
Drainage strategy by onn point civil engineering
Amended Information
Not archived · Council Link
Existing analysis assessment
Additional Information
Not archived · Council Link
Existing and proposed scheme section analysis
Amended Plans and Drawings
Not archived · Council Link
Existing and proposed scheme section analysis
Amended Plans and Drawings
Not archived · Council Link
Existing elevations
Existing Elevations
Not archived · Council Link
Existing elevations
Existing Elevations
Not archived · Council Link
Existing Plans
Archived · Council Link
Green belt openness statement
Additional Information
Not archived · Council Link
Habitat regulations assessment
Additional Information
Not archived · Council Link
Hilliers garden centre - technical note addendum
Additional Information
Not archived · Council Link
Hilliers garden centre - transport technical note
Additional Information
Not archived · Council Link
Landscape and visual appraisal
Additional Information
Not archived · Council Link
Landscape masterplan
Additional Plans
Not archived · Council Link
Phase 1 contaminated land assessment
Additional Information
Not archived · Council Link
Planning statement
Planning Statement
Not archived · Council Link
Preliminary ecological appraisal
Additional Information
Not archived · Council Link
Proposed analysis assessment
Superseded Plans and Drawings
Not archived · Council Link
Proposed and existing site sections-1
Superseded Plans and Drawings
Not archived · Council Link
Proposed and existing site sections-1
Superseded Plans and Drawings
Not archived · Council Link
Proposed and existing street scene
Superseded Plans and Drawings
Not archived · Council Link
Proposed and existing street scene
Superseded Plans and Drawings
Not archived · Council Link
Proposed and existing streetscene
Amended Plans and Drawings
Not archived · Council Link
Proposed and existing streetscene
Amended Plans and Drawings
Not archived · Council Link
Proposed bin and cycle stores
Proposed Floor Plans
Not archived · Council Link
Proposed elevations and section elevation
Amended Plans and Drawings
Not archived · Council Link
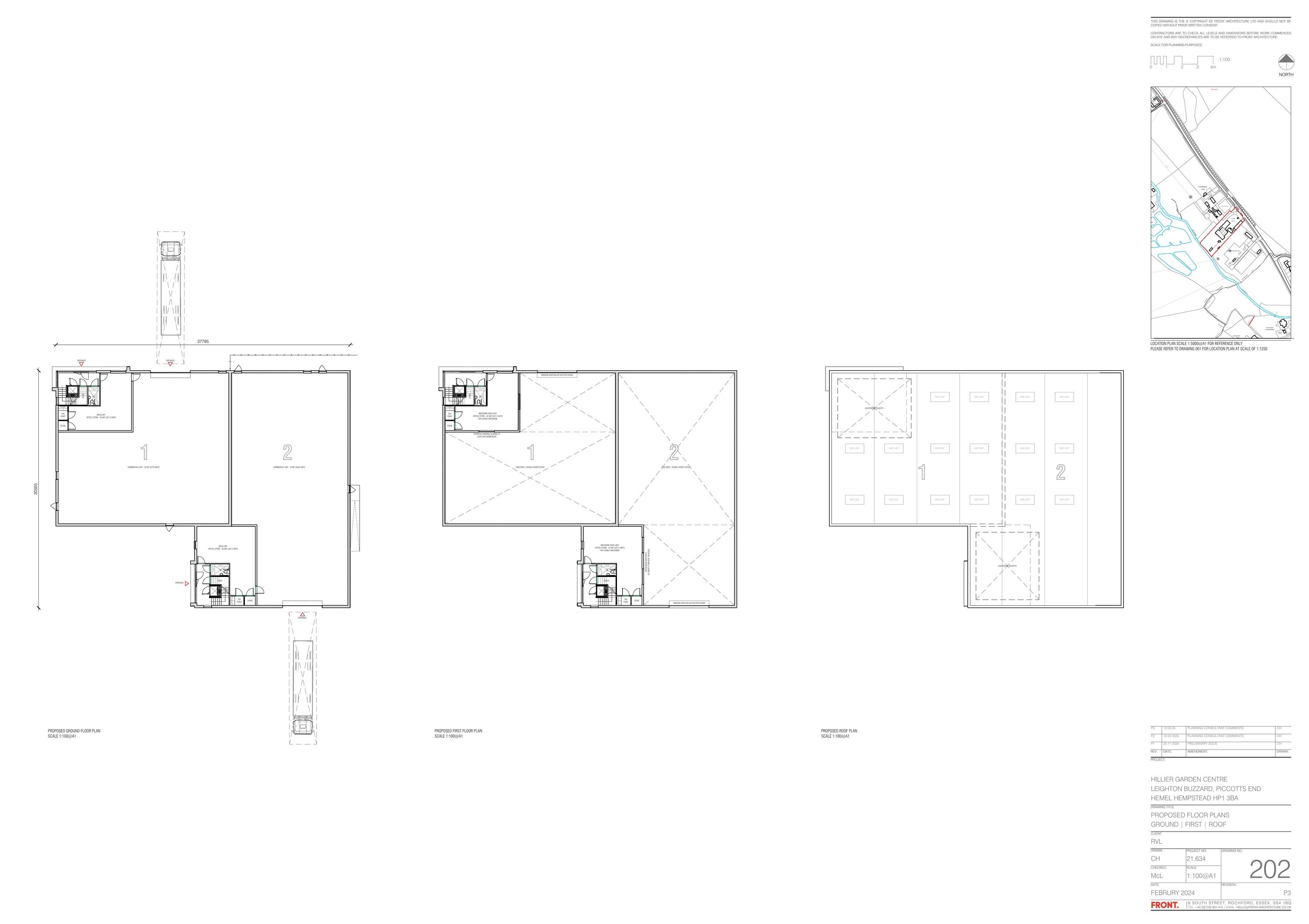
Proposed Floor Plans
Archived · Council Link
Proposed layout and footprint analysis
Amended Plans and Drawings
Not archived · Council Link
Proposed sections and elevations
Superseded Plans and Drawings
Not archived · Council Link
Superseded Plans and Drawings
Archived · Council Link
Amended Plans and Drawings
Archived · Council Link
Revised technical note by onn point civil engineering
Amended Information
Not archived · Council Link
Site Location Plan
Archived · Council Link
Statement of community engagement
Statement of Community Involvement
Not archived · Council Link
Sustainability and energy statement
Additional Information
Not archived · Council Link
Sustainable drainage assessment
Superseded Plans and Drawings
Not archived · Council Link
Swept path analysis
Swept Path Analysis
Not archived · Council Link
Transport technical note
Superseded Plans and Drawings
Not archived · Council Link
Tree survey plan
Additional Plans
Not archived · Council Link
Tree survey plan north
Additional Plans
Not archived · Council Link
Tree survey plan south
Additional Plans
Not archived · Council Link

Take Action

Make your voice heard. Authorities need to hear from people who support new homes.

✉️ Write Email in Support View on Council Portal