← Back to Dacorum Borough Council

Status

With planning case officer New housing
Received
29 Apr 2025
New dwellings
10

Summary

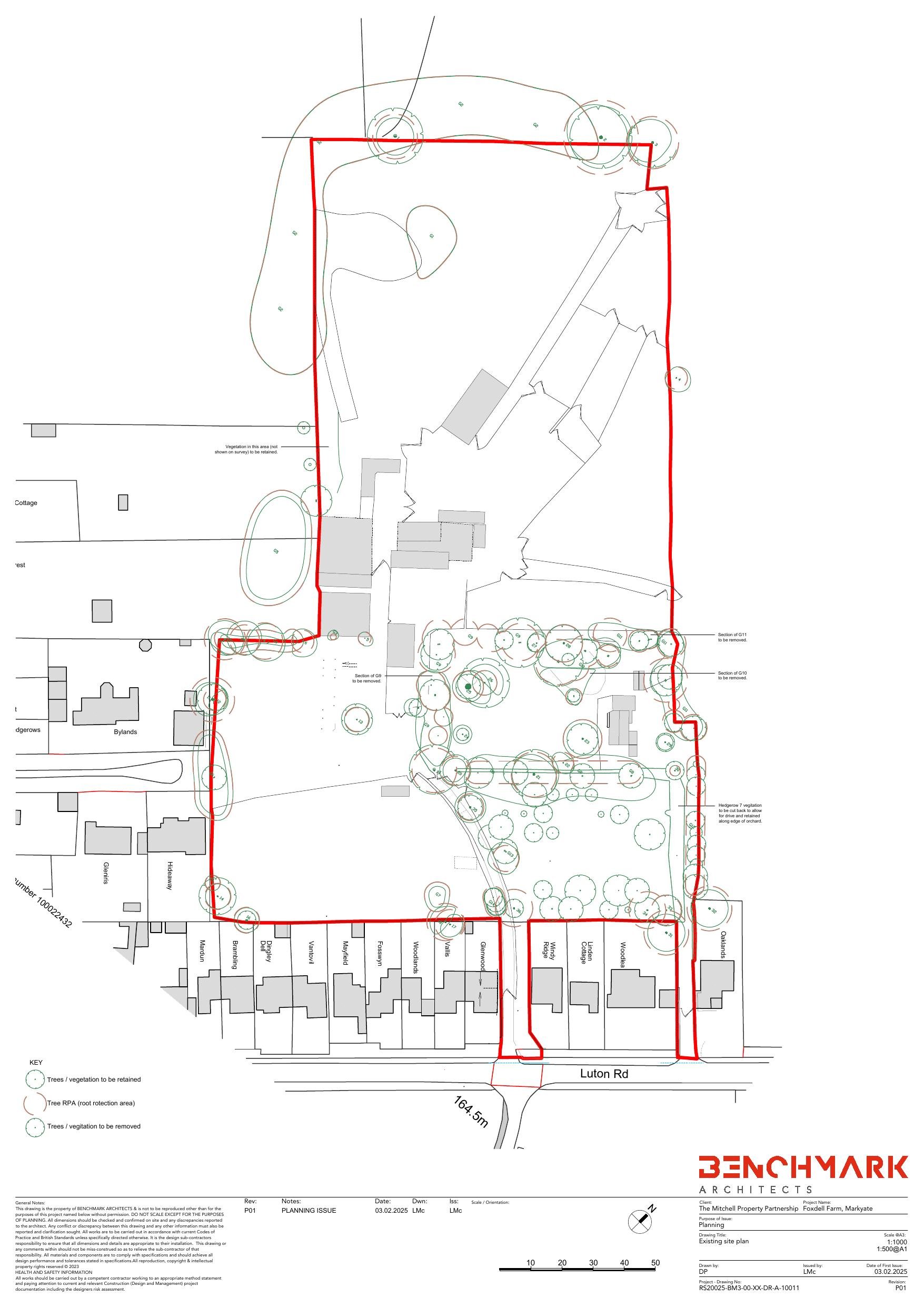
Demolish buildings and redevelop site for ten residential dwellings with access and landscaping.

Full Proposal

Demolition of commercial and equestrian buildings and farmhouse, and redevelopment for residential development of 10 dwellings with access, landscaping and associated works

Documents

5house type c-5bed
Proposed Floor Plans
Not archived · Council Link
Application form
Amended Plans and Drawings
Not archived · Council Link
Applicationformredacted
Superseded Plans/Documents
Not archived · Council Link
Biodiversity gain plan
Biodiversity gain plan
Not archived · Council Link
Biodiversity metric calculation tool
Biodiversity metric calculation tool
Not archived · Council Link
Biodiversity Survey & Report
Biodiversity Survey & Report
Not archived · Council Link
Biodiversity Survey & Report
Biodiversity Survey & Report
Not archived · Council Link
Certificate b
Additional Information
Not archived · Council Link
Cgi 1 aerial
Photos Online
Not archived · Council Link
Cgi 2 street view
Photos Online
Not archived · Council Link
Cgi 3 field view
Photos Online
Not archived · Council Link
Demolition plan
Additional Plans
Not archived · Council Link
Design & Access Statement
Design & Access Statement
Not archived · Council Link
Drainage Strategy
Drainage Strategy
Not archived · Council Link
Ecological Survey
Ecological Survey
Not archived · Council Link
Ecology comment
Consultee Comment
Not archived · Council Link
Existing elevations
Existing Elevations
Not archived · Council Link
Existing first floor plans
Existing Floor Plans
Not archived · Council Link
Existing ground floor plans
Existing Floor Plans
Not archived · Council Link
Flood risk assessment and drainage strategy rev 02
Superseded Plans and Drawings
Not archived · Council Link
Flood risk assessment and drainage strategy rev 05
Amended Plans and Drawings
Not archived · Council Link
House type a - 3 bed
Proposed Elevations
Not archived · Council Link
House type a -4b elevations plot 7
Proposed Elevations
Not archived · Council Link
House type a- 3 bed
Proposed Floor Plans
Not archived · Council Link
House type b -4b elevations plot 4
Proposed Elevations
Not archived · Council Link
House type b- 4bed
Proposed Floor Plans
Not archived · Council Link
House type b-4b elevations
Proposed Elevations
Not archived · Council Link
House type c - 5b elevations
Proposed Elevations
Not archived · Council Link
House type c -5b ga roof plan
Roof Plan
Not archived · Council Link
House type c- 5b elevations
Proposed Elevations
Not archived · Council Link
Internal visibility assessment
Amended Plans and Drawings
Not archived · Council Link
Landscape strategy c
Landscaping Plan
Not archived · Council Link
Landscaping Plan
Landscaping Plan
Not archived · Council Link
Natural england full response
Consultee Comment
Not archived · Council Link
Phase i geo environmental desk study
Additional Information
Not archived · Council Link
Planning Statement
Planning Statement
Not archived · Council Link
Block Plan of the Site
Archived · Council Link
Block Plan of the Site
Archived · Council Link
Proposed site section a-a.
Section Plans
Not archived · Council Link
Proposed site section b-b
Section Plans
Not archived · Council Link
Proposed site section c-c
Section Plans
Not archived · Council Link
Block Plan of the Site
Archived · Council Link
Location Plan
Archived · Council Link
Sustainability Appraisal
Sustainability Appraisal
Not archived · Council Link
Swept path analysis estate car
Amended Plans and Drawings
Not archived · Council Link
Swept path analysis fire tender
Amended Plans and Drawings
Not archived · Council Link
Swept path analysis refuse
Amended Plans and Drawings
Not archived · Council Link
Transport Assessment/Statement
Transport Assessment/Statement
Not archived · Council Link
Tree retention plan
Additional Plans
Not archived · Council Link
Tree Survey
Tree Survey
Not archived · Council Link
Type key plan
Additional Plans
Not archived · Council Link
Visibility assessment
Additional Information
Not archived · Council Link
Visibility assessment
Amended Plans and Drawings
Not archived · Council Link

Take Action

Make your voice heard. Authorities need to hear from people who support new homes.

✉️ Write Email in Support View on Council Portal