← Back to Dacorum Borough Council

Status

Decided New housing
Received
13 May 2025
New dwellings
2

Summary

Construction of two new dwellings with amenity space and parking.

Full Proposal

Use of land for residential purposes and the construction of two dwellings, associated amenity space and parking

Documents

Application form redacted
Application Form Redacted
Not archived · Council Link
Bng metric excel
Biodiversity metric calculation tool
Not archived · Council Link
Bng metric pdf
Biodiversity metric calculation tool
Not archived · Council Link
Bng post-development plan
Additional Plans
Not archived · Council Link
Bng pre-development plan
Additional Plans
Not archived · Council Link
Covering letter
Additional Information
Not archived · Council Link
Cs29 checklist
Additional Information
Not archived · Council Link
Ful - withdrawn (decision notice)
Decision Notice
Not archived · Council Link
Planning design and access statement
Design & Access Statement
Not archived · Council Link
Proposed block plan
Block Plan of the Site
Not archived · Council Link
Proposed elevations plot 01
Proposed Elevations
Not archived · Council Link
Proposed elevations plot 02
Proposed Elevations
Not archived · Council Link
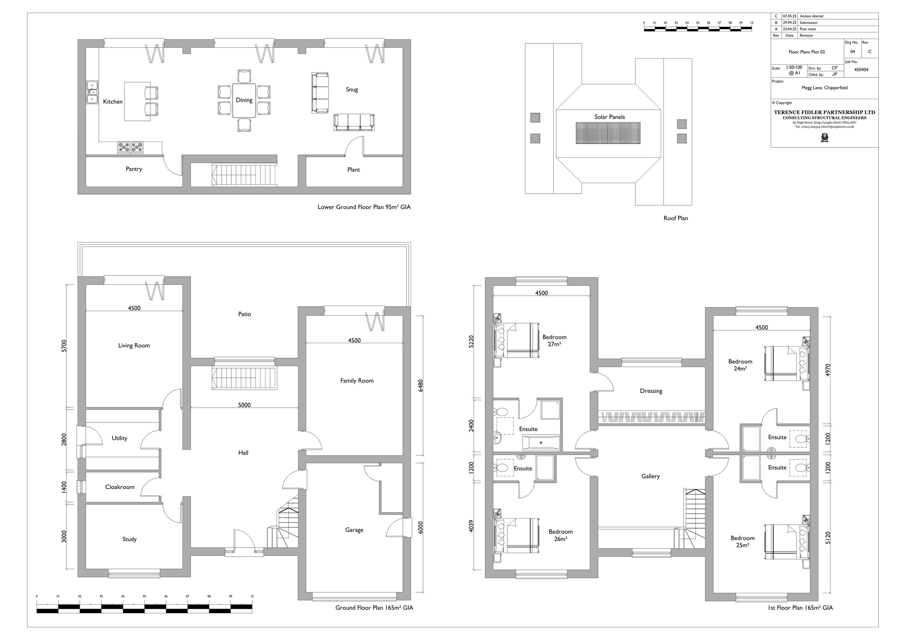
Proposed Floor Plans
Archived · Council Link
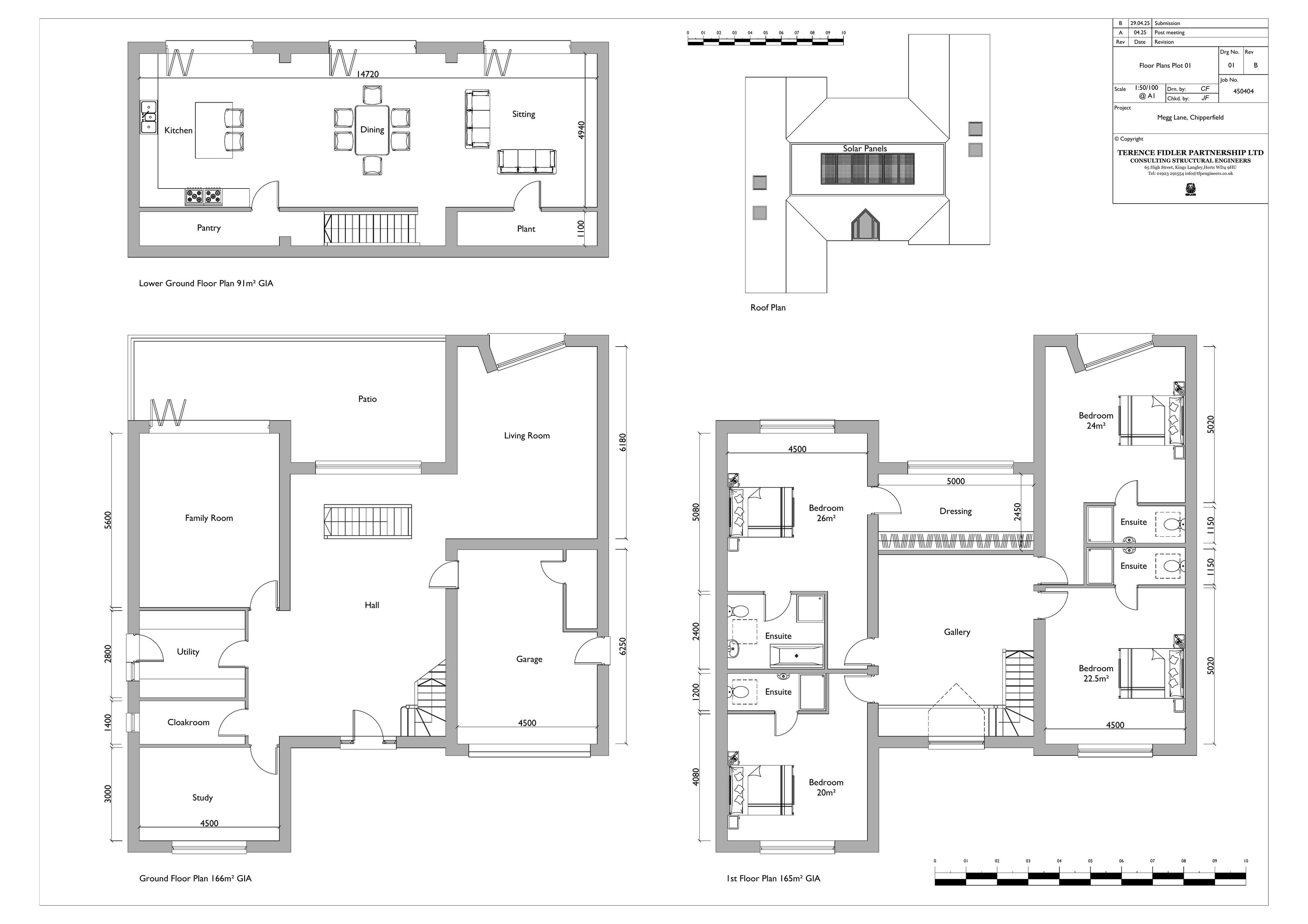
Proposed Floor Plans
Archived · Council Link
Proposed site layout
Site & Other Plans
Not archived · Council Link
Proposed street scene
Proposed Elevations
Not archived · Council Link
Site Location Plan
Archived · Council Link
Transport technical note
Transport Assessment/Statement
Not archived · Council Link

Take Action

Make your voice heard. Authorities need to hear from people who support new homes.

✉️ Write Email in Support View on Council Portal