← Back to Dacorum Borough Council

Status

With planning case officer New housing
Received
16 May 2025
New dwellings
1

Summary

Demolition and construction of a single-family dwelling.

Full Proposal

Demolition of existing building and construction of single family dwelling.

Documents

Application form redacted
Application Form Redacted
Not archived · Council Link
Existing elevations
Existing Elevations
Not archived · Council Link
Existing floor plans
Existing Floor Plans
Not archived · Council Link
Existing floor plans
Existing Floor Plans
Not archived · Council Link
Heritage statement
Heritage Statement
Not archived · Council Link
Planning statement
Planning Statement
Not archived · Council Link
Proposed elevations
Proposed Elevations
Not archived · Council Link
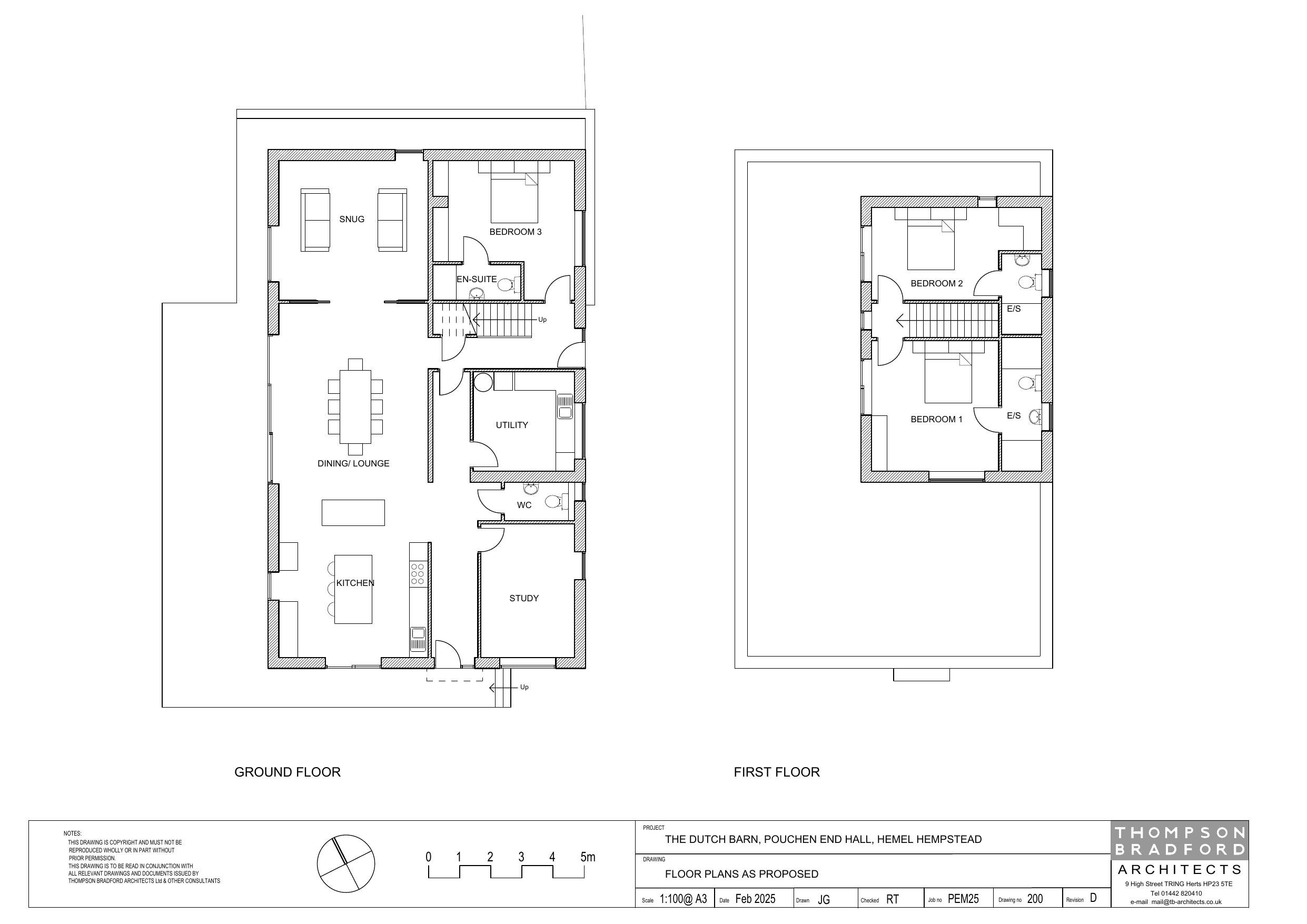
Proposed Floor Plans
Archived · Council Link
Site Location Plan
Archived · Council Link
Written scheme of investigation for archaeological monitoring and recording
Additional Information
Not archived · Council Link

Take Action

Make your voice heard. Authorities need to hear from people who support new homes.

✉️ Write Email in Support View on Council Portal