← Back to Dacorum Borough Council

Status

Decided New housing
Received
22 Aug 2025
New dwellings
2

Summary

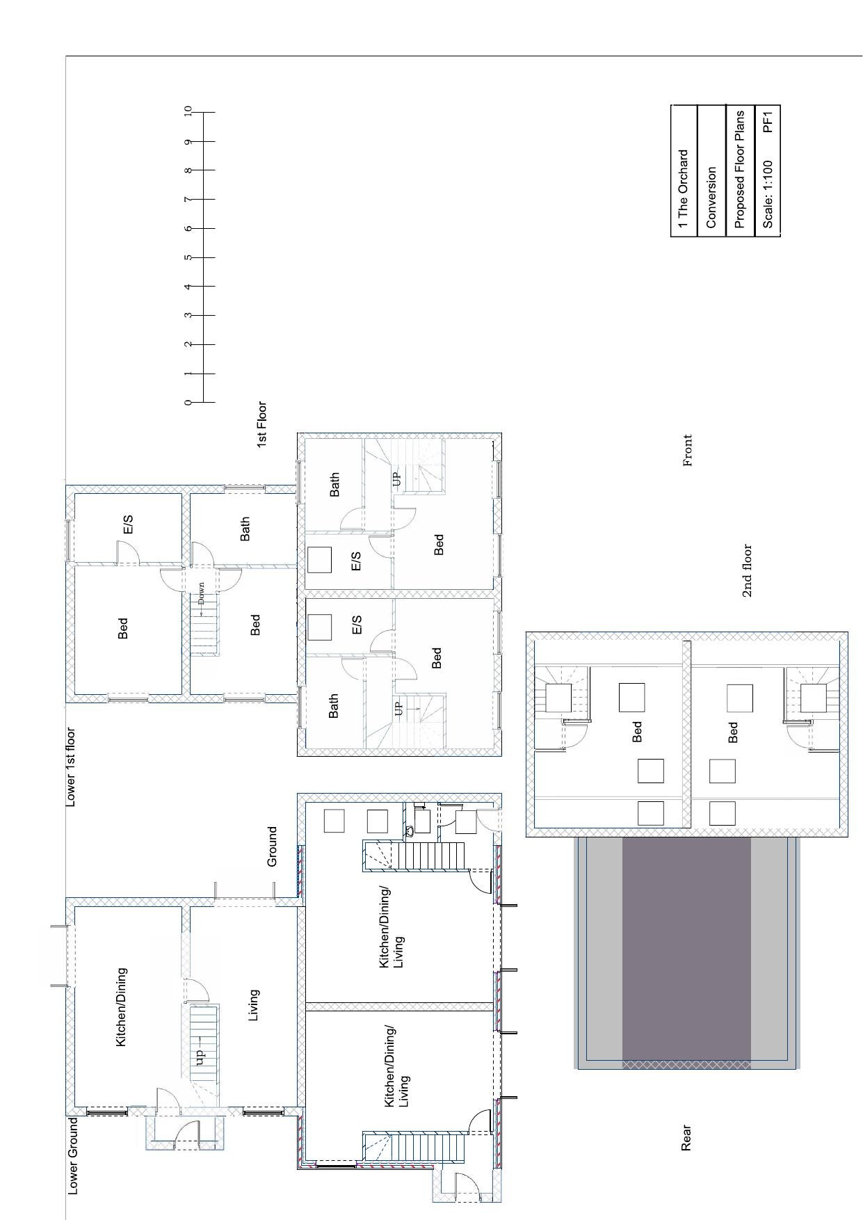
Porch addition and subdivision of existing dwelling to create three dwellings.

Full Proposal

Addition of porch and converting existing dwelling into three dwellings.

Documents

Amenity for old rear garden (applicant response to inspector)
Additional Plans
Not archived · Council Link
Application form
Application Form
Not archived · Council Link
Design and access statement
Design & Access Statement
Not archived · Council Link
Existing elevations
Existing Elevations
Not archived · Council Link
Site & Other Plans
Archived · Council Link
Floor plans
Existing Floor Plans
Not archived · Council Link
Hardstanding/green area of neighbours
Additional Information
Not archived · Council Link
Image of cars/parking
Additional Information
Not archived · Council Link
Image of hardstanding/green area of neighbours
Additional Information
Not archived · Council Link
Info re cars/parking
Additional Information
Not archived · Council Link
Location plan
Site Location Plan
Not archived · Council Link
Out - refusal (decision notice)
Decision Notice
Not archived · Council Link
Privacy for old front garden (applicant response to inspector)
Additional Plans
Not archived · Council Link
Proposed elevations
Proposed Elevations
Not archived · Council Link
Proposed Floor Plans
Archived · Council Link
Proposed Floor Plans
Archived · Council Link
Site & Other Plans
Archived · Council Link
Reply to appeal
Additional Information
Not archived · Council Link
Road frontage info
Additional Information
Not archived · Council Link
Statement of case
Additional Information
Not archived · Council Link
Subdivision of garden (applicant response to inspector)
Additional Information
Not archived · Council Link
Swept path analysis
Additional Plans
Not archived · Council Link
Upload delegated report
Delegated Report
Not archived · Council Link

Take Action

Make your voice heard. Authorities need to hear from people who support new homes.

✉️ Write Email in Support View on Council Portal