← Back to Dacorum Borough Council

Status

Awaiting final decision New housing
Received
05 Nov 2025
New dwellings
1

Full Proposal

Demolition of existing storage buildings and redevelopment with a self-build dwelling and ancillary garage store/workshop

Documents

Applicationformredacted
Application Form Redacted
Not archived · Council Link
Design & Access Statement
Design & Access Statement
Not archived · Council Link
Site Location Plan
Archived · Council Link
Location Plan
Location Plan
Not archived · Council Link
Planning Statement
Planning Statement
Not archived · Council Link
Proposed Elevations
Proposed Elevations
Not archived · Council Link
Proposed floor plan and elevations
Plans/Drawings
Not archived · Council Link
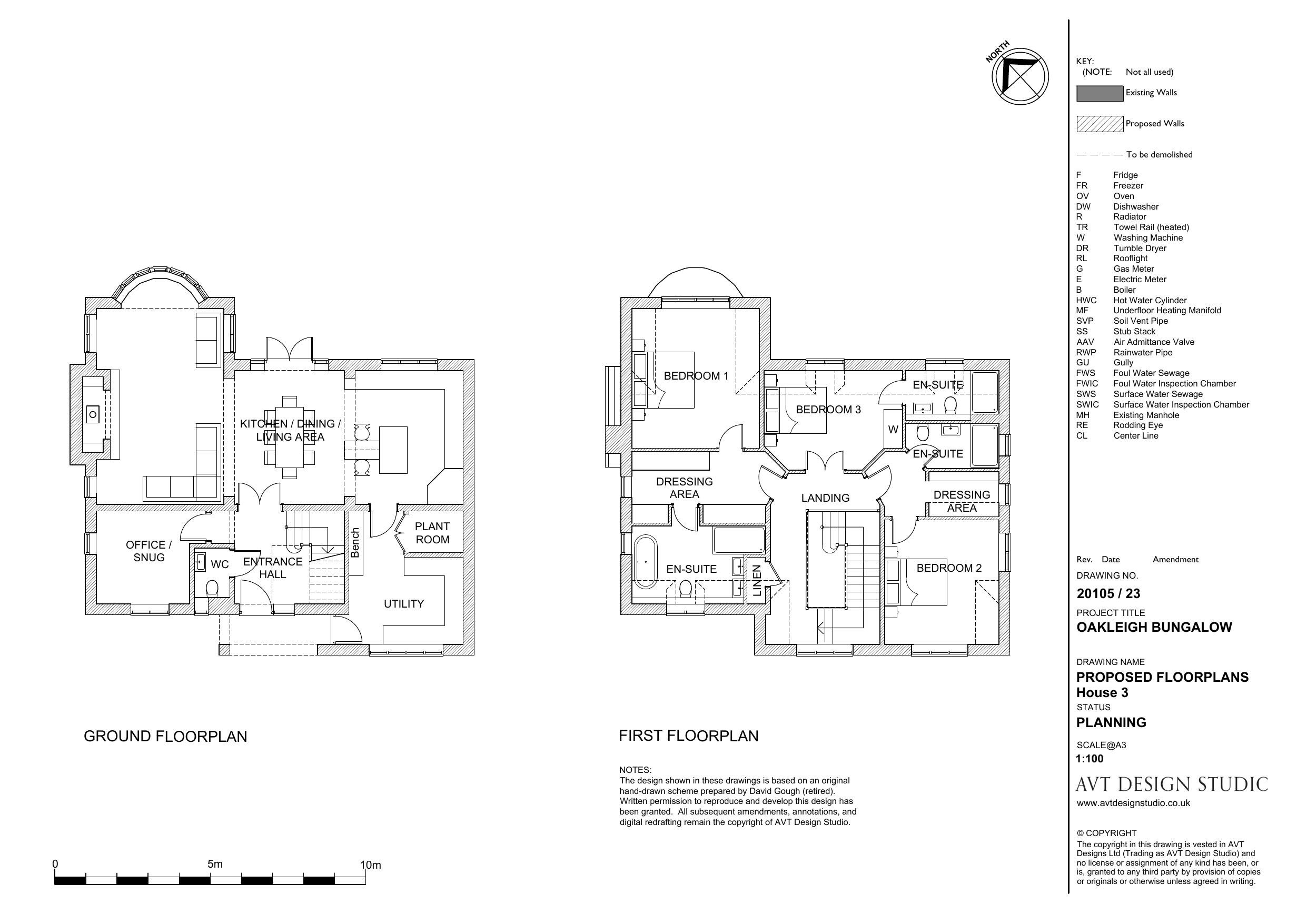
Proposed Floor Plans
Archived · Council Link
Site & Other Plans
Archived · Council Link
Site & Other Plans
Archived · Council Link
Updated ecology assessment
Ecological Survey
Not archived · Council Link

Take Action

Make your voice heard. Authorities need to hear from people who support new homes.

✉️ Write Email in Support View on Council Portal