← Back to Dacorum Borough Council

Status

With planning case officer New housing
Received
10 Nov 2025
New dwellings
1

Full Proposal

Construction of one dwelling and associated works.

Documents

Amended proposed elevations
Proposed Elevations
Not archived · Council Link
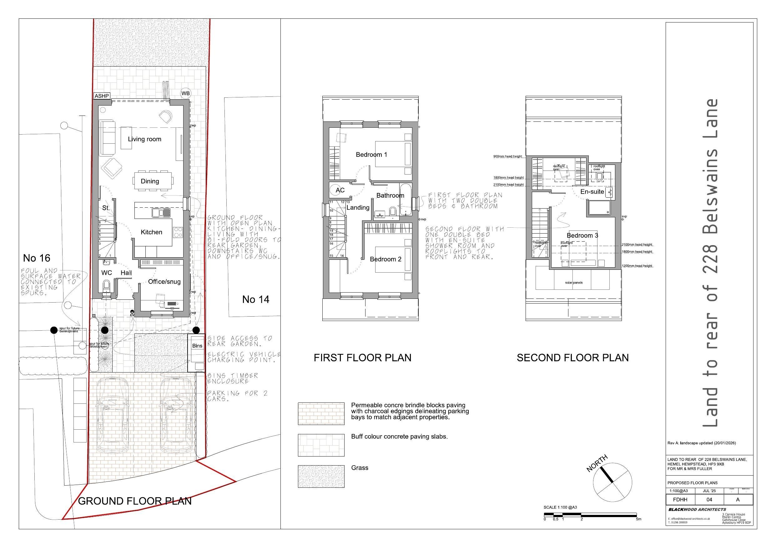
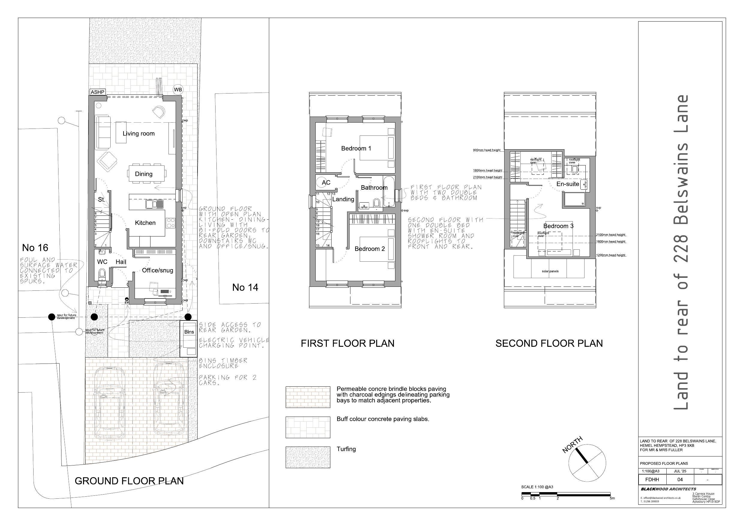
Proposed Floor Plan
Archived · Council Link
Applicationformredacted
Application Form Redacted
Not archived · Council Link
Biodiversity net gain assesment
Biodiversity Survey & Report
Not archived · Council Link
Das
Design & Access Statement
Not archived · Council Link
Defra statutory biodiversity metric - 228 belswains lane hp3 9xb - v1 - 42696759
Biodiversity metric calculation tool
Not archived · Council Link
Existing Plan
Archived · Council Link
Full converted version
Biodiversity metric calculation tool
Not archived · Council Link
Location plan
Site Location Plan
Not archived · Council Link
Preliminary ecological appraisal
Biodiversity Survey & Report
Not archived · Council Link
Proposed block plan
Block Plan of the Site
Not archived · Council Link
Proposed elevations
Superseded Plans and Drawings
Not archived · Council Link
Superseded Plans and Drawings
Archived · Council Link
Proposed landscape plan
Landscaping Plan
Not archived · Council Link
Proposed street scene and section
Street Scene
Not archived · Council Link
Unilateral undertaking - new dwelling draft
Unilateral Undertaking (Redacted - Published)
Not archived · Council Link

Take Action

Make your voice heard. Authorities need to hear from people who support new homes.

✉️ Write Email in Support View on Council Portal