← Back to Dacorum Borough Council

Status

With planning case officer Listed building
Received
11 Nov 2025
New dwellings
5

Full Proposal

Conversion of the Listed Building, The Swan from commercial to residential use, as 3x 2 bed units and the development of 2x 2 bed properties on adjoining land, including car parking and landscaping.

Documents

Application form redacted
Application Form Redacted
Not archived · Council Link
Arboricultural impact assessment report
Arboriculturial Study
Not archived · Council Link
Baseline habitat map
Baseline onsite habitat map/plan (Pre-development)
Not archived · Council Link
Biodiversity gain plan v3
Biodiversity gain plan
Not archived · Council Link
Biodiversity metric v3
Biodiversity metric calculation tool
Not archived · Council Link
Bng metric pdf
Biodiversity metric calculation tool
Not archived · Council Link
Condition assessment sheets
Biodiversity Survey & Report
Not archived · Council Link
Cover letter
Additional Information
Not archived · Council Link
Design and access statement
Design & Access Statement
Not archived · Council Link
Existing and proposed north east elevations the swan
Elevation Plans
Not archived · Council Link
Existing and proposed north west elevations the swan
Elevation Plans
Not archived · Council Link
Existing and proposed south east elevations the swan
Elevation Plans
Not archived · Council Link
Existing and proposed south west elevations the swan
Elevation Plans
Not archived · Council Link
Existing basement and ground floor plans
Existing Floor Plans
Not archived · Council Link
Existing first floor and roof plan
Existing Floor Plans
Not archived · Council Link
Site & Other Plans
Archived · Council Link
Existing street scene elevations
Street Scene
Not archived · Council Link
Heritage statement
Heritage Statement
Not archived · Council Link
Planning statement
Planning Statement
Not archived · Council Link
Post development habitat map v3
Onsite habitat map/plan (Post-development)
Not archived · Council Link
Proposed boundary treatments
Additional Plans
Not archived · Council Link
Proposed elevations - coach house
Proposed Elevations
Not archived · Council Link
Proposed elevations - the barn
Proposed Elevations
Not archived · Council Link
Proposed first floor and roof plan - the swan
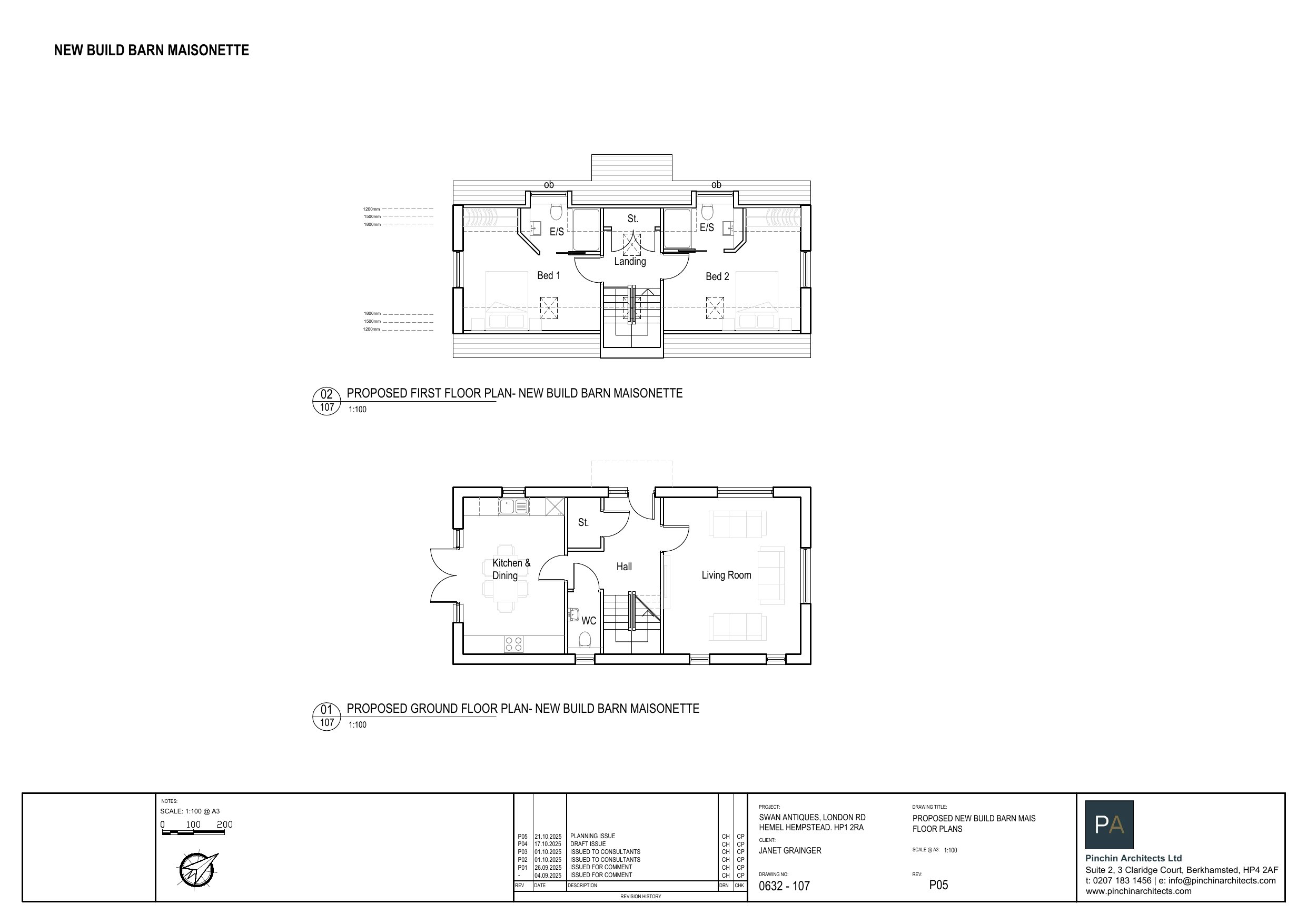
Proposed Floor Plans
Not archived · Council Link
Proposed Floor Plans
Archived · Council Link
Proposed Floor Plans
Archived · Council Link
Proposed landscape plan
Landscaping Plan
Not archived · Council Link
Site & Other Plans
Archived · Council Link
Proposed street scene
Street Scene
Not archived · Council Link
Prposed ground floor plan - the swan
Proposed Floor Plan
Not archived · Council Link
Site Location Plan
Archived · Council Link
Transport statement
Transport Assessment/Statement
Not archived · Council Link

Take Action

Make your voice heard. Authorities need to hear from people who support new homes.

✉️ Write Email in Support View on Council Portal