← Back to Dacorum Borough Council

Status

With planning case officer New housing
Received
05 Dec 2025
New dwellings
1

Full Proposal

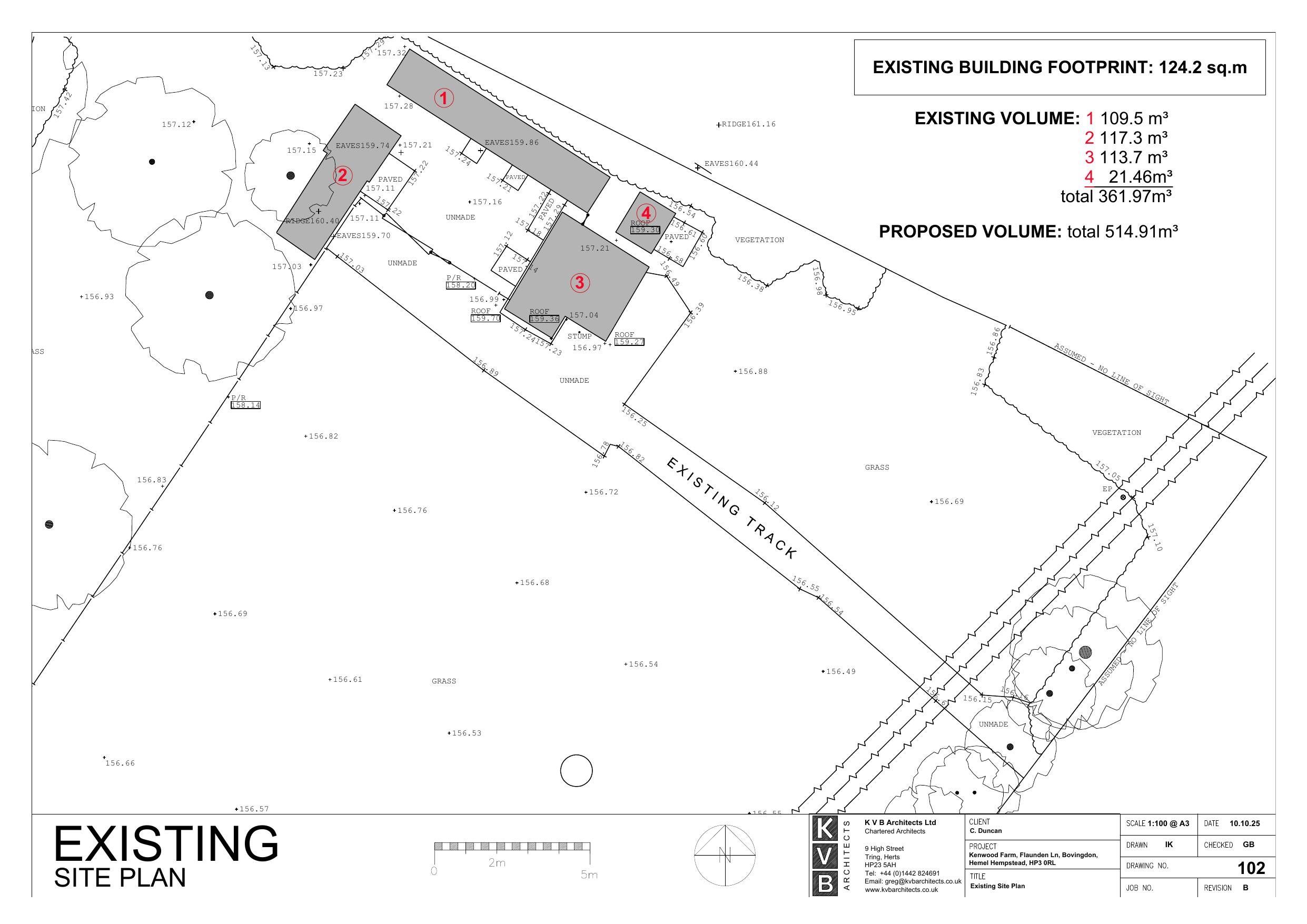
Construction of 2 bedroom detached dwelling with associated landscaping and access, following demolition of the stables

Documents

Application Form
Application Form
Not archived · Council Link
Biodiversity metric calculation tool
Biodiversity metric calculation tool
Not archived · Council Link
Bng report
Biodiversity gain plan
Not archived · Council Link
Conservation and design comments
Consultee Comment
Not archived · Council Link
D&a dec 2025 v1
Design & Access Statement
Not archived · Council Link
Ecological survey
Ecological Survey
Not archived · Council Link
Site & Other Plans
Archived · Council Link
Site & Other Plans
Archived · Council Link
Ground floor plan
Proposed Floor Plans
Not archived · Council Link
Impact plan
Arboriculturial Study
Not archived · Council Link
Loft plan
Proposed Floor Plans
Not archived · Council Link
Proposed elevations
Proposed Elevation
Not archived · Council Link
Proposed roof plan
Roof Plan
Not archived · Council Link
Proposed section
Section Plans
Not archived · Council Link
Proposed shows access
Site & Other Plans
Not archived · Council Link
Site & Other Plans
Archived · Council Link
Proposed visibility splay
Proposed Plan
Not archived · Council Link
Tree report
Arboriculturial Study
Not archived · Council Link

Take Action

Make your voice heard. Authorities need to hear from people who support new homes.

✉️ Write Email in Support View on Council Portal