← Back to Dacorum Borough Council

Status

With planning case officer Change of use
Received
23 Dec 2025
New dwellings
0

Full Proposal

Conversion and minor extensions to existing stable to create annexe dwelling and merging of existing annexe back into principal house.

Documents

2025.018 brickwall cottage heritage planning statement v.3 final 12.25
Planning Statement
Not archived · Council Link
Application form redacted
Application Form Redacted
Not archived · Council Link
Brickwall cottage - biodiversity checklist
Biodiversity Survey & Report
Not archived · Council Link
Brickwall cottage - ecology letter
Superseded Plans and Drawings
Not archived · Council Link
Cover sheet
Superseded Plans and Drawings
Not archived · Council Link
Design and access part 1 of 2
Superseded Plans and Drawings
Not archived · Council Link
Design and access part 2 of 2
Superseded Plans and Drawings
Not archived · Council Link
Design and access statement
Amended Information
Not archived · Council Link
Existing elevation 01 and 03
Superseded Plans and Drawings
Not archived · Council Link
Existing elevations 01 and 03
Amended Plans and Drawings
Not archived · Council Link
Existing elevations 02 and 04
Superseded Plans and Drawings
Not archived · Council Link
Existing elevations 02 and 04
Amended Plans and Drawings
Not archived · Council Link
Existing ground floor plan
Superseded Plans and Drawings
Not archived · Council Link
Existing ground floor plan
Amended Plans and Drawings
Not archived · Council Link
Existing roof plan
Amended Plans and Drawings
Not archived · Council Link
Existing roof plan
Superseded Plans and Drawings
Not archived · Council Link
Amended Plans and Drawings
Archived · Council Link
Superseded Plans and Drawings
Archived · Council Link
Plan list
Amended Plans and Drawings
Not archived · Council Link
Proposed elevation 01-03
Amended Plans and Drawings
Not archived · Council Link
Proposed elevation 02-04
Amended Plans and Drawings
Not archived · Council Link
Proposed elevations 01 and 03
Superseded Plans and Drawings
Not archived · Council Link
Proposed elevations 02 and 04
Superseded Plans and Drawings
Not archived · Council Link
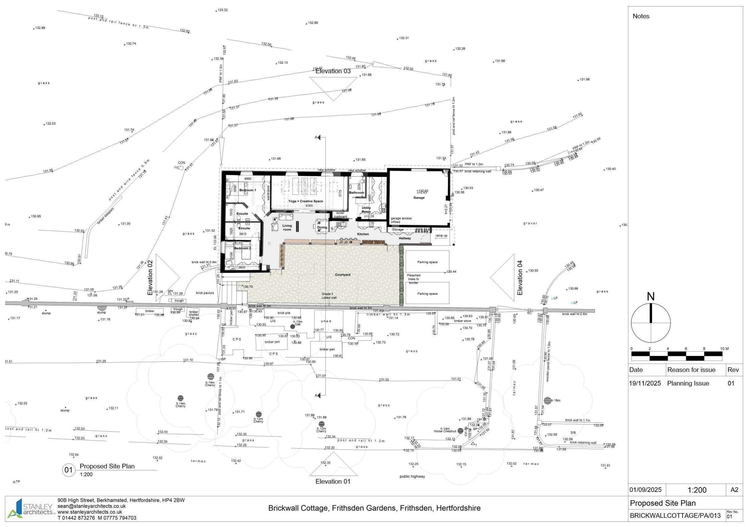
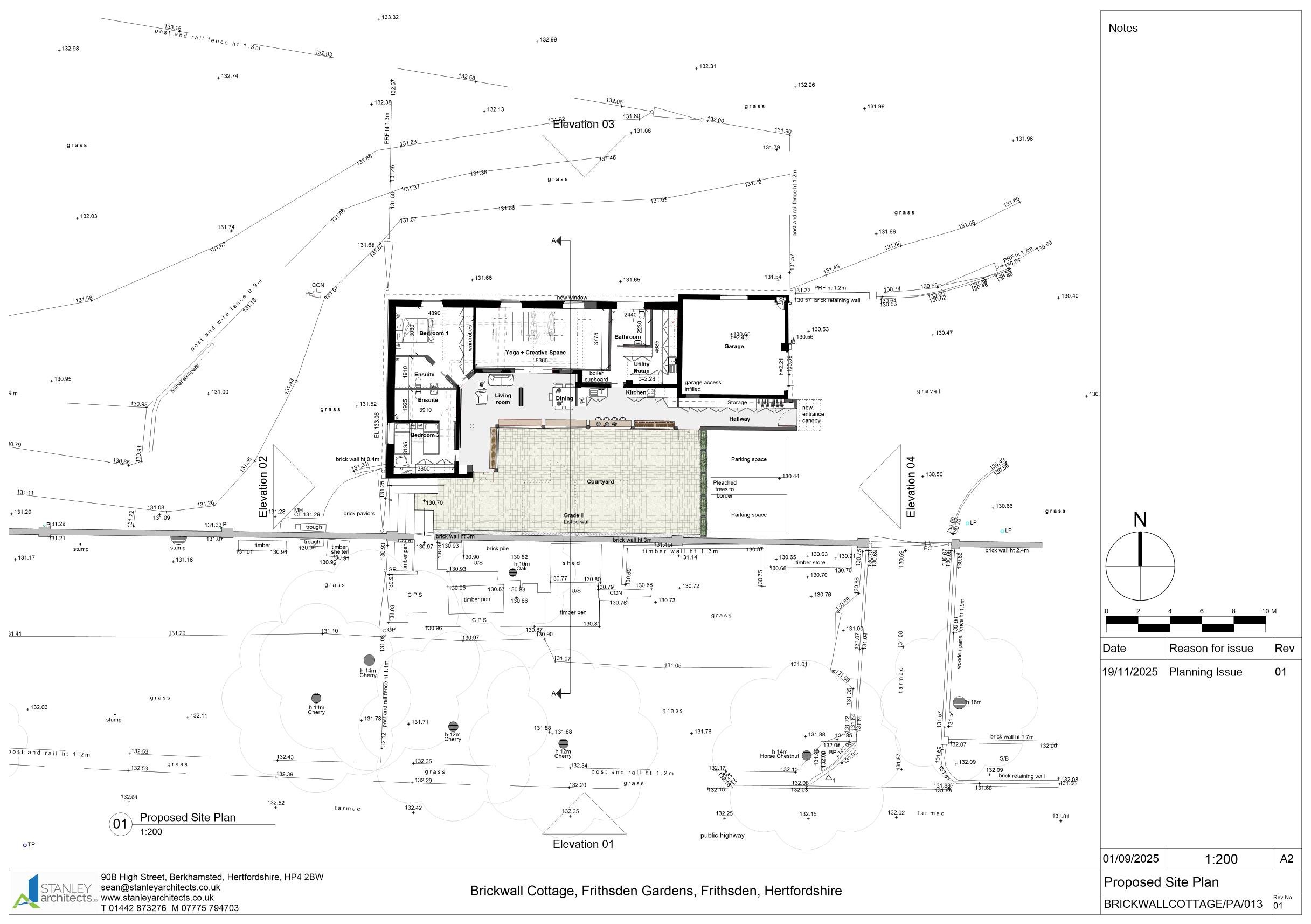
Proposed ground floor plan
Superseded Plans and Drawings
Not archived · Council Link
Proposed ground floor plan
Amended Plans and Drawings
Not archived · Council Link
Proposed roof plan
Amended Plans and Drawings
Not archived · Council Link
Proposed roof plan
Superseded Plans and Drawings
Not archived · Council Link
Proposed section
Superseded Plans and Drawings
Not archived · Council Link
Proposed section aa
Amended Plans and Drawings
Not archived · Council Link
Amended Plans and Drawings
Archived · Council Link
Superseded Plans and Drawings
Archived · Council Link
Amended Plans and Drawings
Archived · Council Link
Superseded Plans and Drawings
Archived · Council Link

Take Action

Make your voice heard. Authorities need to hear from people who support new homes.

✉️ Write Email in Support View on Council Portal