← Back to Dacorum Borough Council
Status
With planning case officer
Change of use
Full Proposal
Change of use from equestrian to residential; demolition of existing stables, removal of manege and construction of 1no. dwelling house within landscaped grounds and the creation of new dedicated access.
Documents
Application form redacted
Application Form Redacted
Bng ecology
Ecological Survey
Bng metric
Biodiversity metric calculation tool
Book1_analysis
Additional Information
Book2_previous designs & planning
Additional Information
Book3_proposal
Additional Information
Book4_principles
Additional Information
Cover letter
Additional Information
Ecological appraisal
Ecological Survey
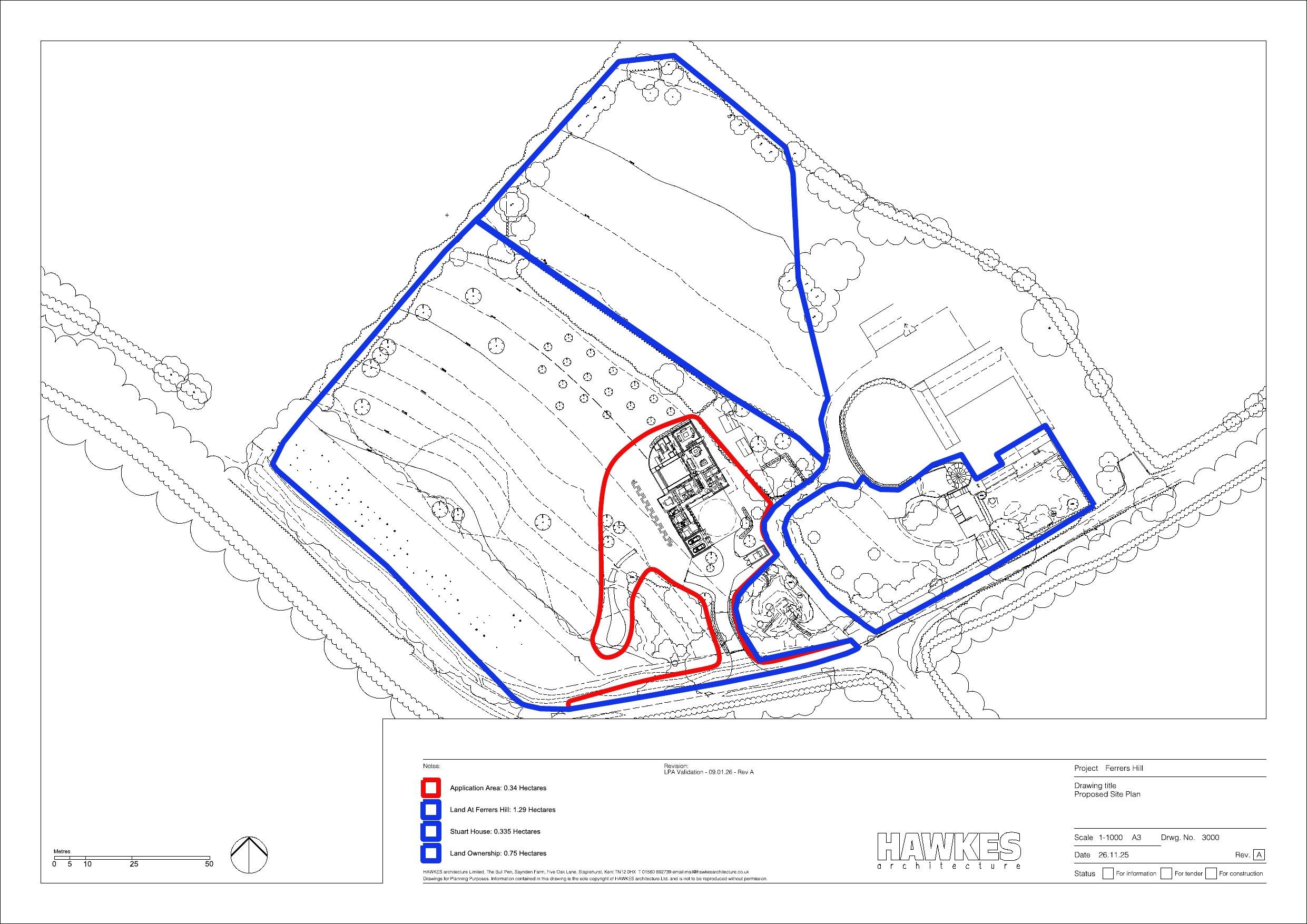
Existing site block plan
Site and Block Plans
Existing stable elevation
Existing Elevations
Existing stable elevation
Existing Elevations
Existing store elevation
Existing Elevations
Heritage statement
Heritage Statement
Landscape and habitat establishment schedule
Landscaping Details
Landscape and visual impact assessment
Visual Impact Assessment
Landscape masterplan
Landscaping Details
Planning statement
Planning Statement
Proposed basement plan
Proposed Floor Plan
Proposed ground floor plan
Proposed Floor Plan
Proposed maintenance store elevations
Proposed Elevations
Proposed north east elevation
Proposed Elevations
Proposed north west elevation
Proposed Elevations
Proposed roof plan
Roof Plan
Proposed section aa
Section Plans
Proposed section bb
Section Plans
Proposed section cc
Section Plans
Proposed section dd
Section Plans
Proposed site block plan
Site and Block Plans
Proposed south east elevation
Proposed Elevations
Proposed south west elevation
Proposed Elevations
Suds strategy
Drainage Strategy
Technical note on access
Additional Information
Tree survey and impact assessment
Tree Survey
Take Action
Make your voice heard. Authorities need to hear from people who support new homes.