← Back to Dacorum Borough Council

Status

With planning case officer Change of use
Received
29 days ago
New dwellings
0

Full Proposal

Change of use of dwelling house from C3 to C2 as a children's home by no more than 3 children from ages 11-18 under the care of care staff.

Documents

Application form redacted
Application Form Redacted
Not archived · Council Link
Cover letter
Additional Information
Not archived · Council Link
Existing elevations
Existing Elevations
Not archived · Council Link
Existing floor plans
Existing Floor Plans
Not archived · Council Link
Location plan
Site Location Plan
Not archived · Council Link
Proposed elevations
Proposed Elevations
Not archived · Council Link
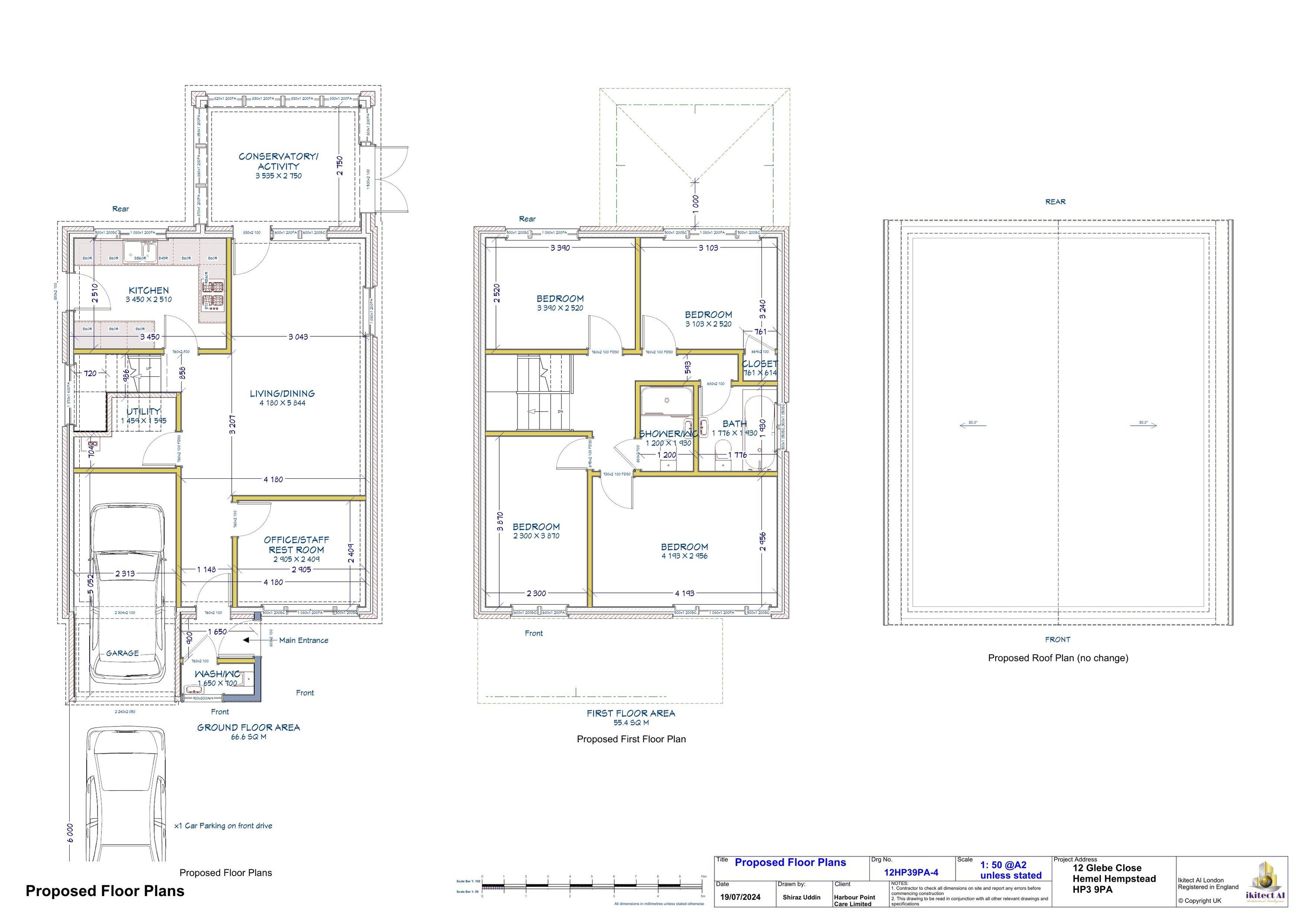
Proposed Floor Plans
Archived · Council Link
Site and Block Plans
Archived · Council Link

Take Action

Make your voice heard. Authorities need to hear from people who support new homes.

✉️ Write Email in Support View on Council Portal